Installation Manual

1. Information on these installation instructions

These installation instructions are an integral part of the FENECON Industrial L electrical energy storage system and must be kept in its immediate vicinity and accessible to personnel at all times.
Personnel must have carefully read and understood these installation and service instructions before starting any work.

1.1. Manufacturer

FENECON GmbH
Gewerbepark 6
94547 Iggensbach
Deutschland

Phone +49 (0) 9903 6280 0
Fax +49 (0) 9903 6280 909
E-mail: service@fenecon.de
Website: www.fenecon.de

1.2. About these instructions

© FENECON GmbH, 2025
All rights reserved.

Reprinting, even in part, is only permitted with the permission of FENECON GmbH.

1.3. Version/revision of this manual

Table 1. Version/revision
Version/revision Change to the installation instructions Date Name

V0

First draft

23/05/2023

FENECON GmbH

V1

Adoption to docs.fenecon.de

10/04/2025

FENECON PM

1.4. Symbol conventions

Table 2. Symbol conventions — Signal words
This signal word indicates an imminent danger. If this danger is not avoided, it will result in death or serious injury.
This signal word indicates a possible danger. If this danger is not avoided, it can lead to death or serious injury.
This signal word indicates a potentially dangerous situation. If this dangerous situation is not avoided, it may result in minor or moderate injury.
This signal word indicates actions to prevent damage to property. Observing these instructions prevents damage to or destruction of the system.
Supplementary information

1.5. Structure of warning notices

If observed, warnings protect against possible personal injury and damage to property. The signal word to classifies the magnitude of danger.

Warnings are structured according to the SAFE method:

Table 3. SAFE method
Signal word Meaning

S

Signal word: (DANGER, WARNING, CAUTION or NOTICE)

A

Type and source of danger:
Description of the hazard and the cause of the hazard.

F

Consequence:
Description of the possible consequences for humans, animals and the environment that may result from the hazard.

E

Event:
Recommendations on how hazards can be avoided.

Source of the danger
Possible consequences of non-compliance.

  • Measures to avoid/Prohibitions.

inverter rack full
Figure 1. Inverter rack — General view

2. Scope of delivery

2.1. Standard parts

Item Description Amount Item no.

01

Spring washer D10.2

72

ZUI012

02

Disc washer D10.5

154

ZUI029

03

Hexagon nut M10

76

ZUI128

04

Hexagon head bolt, fully threaded M10 x 30

48

ZUS133

05

Hexagon head bolt, fully threaded M10 x 25

24

ZUS088

06

Screw, flattened, hexagon socket M6 x 10

28

ZUS302

07

Spring washer D8.1

32

ZUS056

08

Disc washer D8.4

64

ZUS162

09

Hexagon nut M8

32

ZUI006

10

Hexagon head bolt, fully threaded M8 x 22

32

ZUS789

11

Bolt anchor HST3-R M16 x 135 35/15

12

ZUS791

12

EJOT self-drilling screw JT6-6-5.5

40

ZUS792

13

Cylinder head bolt with hexagon socket M10 x 80

4

ZUS790

14

Hexagon head bolt, fully threaded M10 x 18

2

ZUS788

15

Cable duct 200 x 50

4

KAI057

16

Earth circuit connector

1

ZUS787

ZUI012
ZUI029
ZUS128
ZUS133

72 x ZUI012

154 x ZUI029

76 x ZUS128

48 x ZUS133

ZUS088
ZUS302
ZUS056
ZUS162

24 x ZUS088

28 x ZUS302

32 x ZUS056

64 x ZUS162

ZUI006
ZUS789
ZUS791
ZUS792

32 x ZUI006

32 x ZUS789

12 x ZUS791

40 x ZUS792

ZUS790
ZUS788
KAI057
ZUS787

4 x ZUS790

2 x ZUS788

4 x KAI057

1 x ZUS787

2.2. Components

Pos. Description Amount Item no.

17

Steel frame 01

3

GE1 (ZUI997)

18

Steel frame 02

4

GE2 (ZUI997)

19

Steel frame 03

2

GE3 (ZUI997)

20

Lid 01

8

DE1 (ZUI997)

21

Cover 02

4

DE2 (ZUI997)

22

Cover 03

4

DE3 (ZUI997)

23

Sheet metal roof 01

2

DB1 (ZUI997)

24

Sheet metal roof 02

2

DB2 (ZUI997)

25

T-shaped connector 01

2

PE1 (ZUI997)

26

T-shaped connector 02

2

PE2 (ZUI997)

GE1
GE2
GE3

3 x GE1

4 x GE2

2 x GE3

DE1
DE2
DE3

8 x DE1

4 x DE2

4 x DE3

DB1
DB2
PE1

2 x DB1

2 x DB2

2 x PE1

PE2

2 x PE2

3. Assembly

3.1. Residual risks

Danger to life due to fire or explosion
Fire caused by flammable or explosive material near the device may result in serious injury

  • Do not install the device in potentially explosive atmospheres or in the vicinity of highly flammable substances.

Property damage caused by gases that react aggressively to surfaces in conjunction with weather-related humidity.

  • The housing of the device can be severely damaged by gases in conjunction with weather-related humidity. (e. g. ammonia, sulphur).

    1. If the device is exposed to gases, it must be installed in a visible location.

    2. Carry out regular visual inspections.

    3. Remove moisture from the housing immediately.

    4. Ensure sufficient ventilation at the installation site.

    5. Remove soiling immediately, especially from ventilation systems.

→ In the event of non-compliance, material damage to the device is not covered by the warranty.

Access by maintenance personnel in case of service

  • Additional costs arising from unfavorable structural or installation conditions will be charged to the customer.

3.2. Foundation

  • We recommend preparing a foundation on site for the assembly of the inverter rack.

  • This foundation must be designed by the customer, taking into account the statics.

  • Please refer to the following image for the connection drilling diagrams.

drill markings
Figure 2. Drilling pattern

3.3. Ground anchor

We recommend fastening the inverter rack using ground anchors. Please use the enclosed ground anchors (list item 11 in the parts list: ZUS791).
(Hilti bolt anchor HST3-R M16 x 135 35/15 #2105876)
Please also observe the manufacturer’s setting instructions.

Please also note the torque of the bolt anchor (ZUS791).
The recommended torque is 110 Nm.

anchor bolts
Figure 3. Bolt anchor — Instructions

3.4. Assembly of the inverter rack

Step 1:

You need:

Description Amount Item no.

Bolt anchor HST3-R M16 x 135 35/15

8

ZUS791

Steel frame 01

2

GE1 (ZUI997)

  • Anchor the first two frame elements to the foundation.

  • Use 4 pieces of ZUS971 (list item 11) for each stand.

  • Observe the specified torque of the bolt anchor: 110 Nm.

GE1 mounting
Figure 4. Assembly — Inverter rack — GE1

Step 2:

You need:

Description Amount Item no.

Spring washer D10.2

8

ZUI012

Disc washer D10.5

16

ZUI029

Hexagon nut M10

8

ZUS128

Hexagon head bolt, fully threaded M10 x 30

8

ZUS133

Steel frame 03

1

GE3 (ZUI997)

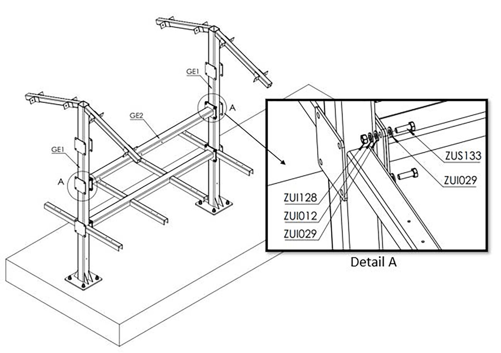
  • Bolt the frame element GE3 to the frame elements GE1 on both sides.

  • Use the components in "Detail A" of image GE3, GE1 (detailed view).

  • Observe the permissible torque: 50 Nm.

GE1 mounting detail
Figure 5. Assembly — Inverter rack — GE3, GE1 Detailed view

Step 3:

You need:

Description Amount Item no.

Spring washer D10.2

8

ZUI012

Disc washer D10.5

16

ZUI029

Hexagon nut M10

8

ZUS128

Hexagon head bolt, fully threaded M10 x 30

8

ZUS133

Steel frame 02

1

GE2 (ZUI997)

  • Bolt the frame element GE2 to the frame element GE1.

  • Use the components in "Detail A" of image GE2, GE1.

  • Caution: Attach the frame element GE2 so that the U-profile is positioned with the opening facing downwards.

  • Observe the permissible torque: 50 Nm.

GE1 mounting detail 2
Figure 6. Assembly — Inverter rack — GE2, GE1 (detailed view)

Step 4:

You need:

Description Amount Item no.

Spring washer D10.2

8

ZUI012

Disc washer D10.5

16

ZUI029

Hexagon nut M10

8

ZUS128

Hexagon head bolt, fully threaded M10 x 30

8

ZUS133

Steel frame 03

1

GE2 (ZUI997)

  • Bolt the frame element GE2 to the frame elements GE1.

  • Use the components in "Detail A" of image GE2-2, GE1.

  • Caution: Attach the frame element GE2 so that the U-profile is positioned with the opening facing up.

  • Observe the permissible torque: 50 Nm.

GE1 mounting detail 3
Figure 7. Assembly — Inverter rack — GE2-2, GE1 (detailed view)

Step 5:

You need:

Description Amount Item no.

Spring washer D10.2

4

ZUI012

Disc washer D10.5

8

ZUI029

Hexagon nut M10

4

ZUS128

Hexagon head bolt, fully threaded M10 x 25

4

ZUS088

Cover 02

2

DE2 (ZUI997)

Cover 03

2

DE3 (ZUI997)

  • Bolt the roof elements DE2 and DE3 to the frame element GE1.

  • To do this, use the components in "Detail A" of image DE2-DE3, GE1.

  • Please also note the components in "Detail A" and the permissible torque: 50 Nm.

GE1 mounting detail 4
Figure 8. Assembly — Inverter rack — DE2-DE3, GE1 (detailed view)

Step 6:

You need:

Description Amount Item no.

Spring washer D10.2

4

ZUI012

Disc washer D10.5

8

ZUI029

Hexagon nut M10

4

ZUS128

Hexagon head bolt, fully threaded M10 x 25

4

ZUS088

Cover 01

4

DE1 (ZUI997)

  • Bolt the roof elements DE1 to the frame element GE1.

  • To do this, use the components in "Detail A" of image DE1, GE1.

  • Observe the permissible torque: 50 Nm.

GE1 mounting detail 5
Figure 9. Assembly — Inverter rack — DE1, GE1 (detailed view)

Step 7:

You need:

Description Amount Item no.

Steel frame 01

1

GE1 (ZUI997)

Bolt anchor HST3-R M16 x 135 35/15

4

ZUS791

  • Place the third frame element on the foundation and anchor it.

  • Use the "Detail A" components of image Third GE1 for this.

  • Please refer to the section ground anchor of these installation instructions and the specified torque of the bolt anchor: 110 Nm.

Final GE1 element
Figure 10. Assembly — Inverter rack — Third GE1 (detailed view)

Step 8:

You need:

Description Amount Item no.

Spring washer D10.2

8

ZUI012

Disc washer D10.5

16

ZUI029

Hexagon nut M10

8

ZUS128

Hexagon head bolt, fully threaded M10 x 30

8

ZUS133

Steel frame 03

1

GE3 (ZUI997)

  • Bolt the frame element GE3 to the frame element GE1.

  • Use the components in "Detail A" of image GE3-2, GE1.

  • Please also note the assembly of the components in "Detail A" and the permissible torque: 50 Nm.

GE3 installation
Figure 11. Assembly — Inverter rack — GE3-2, GE1 (detailed view)

Step 9:

You need:

Description Amount Item no.

Spring washer D10.2

8

ZUI012

Disc washer D10.5

16

ZUI029

Hexagon nut M10

8

ZUS128

Hexagon head bolt, fully threaded M10 x 30

8

ZUS133

Hexagon head bolt, fully threaded M10 x 25

8

ZUS088

Steel frame 02

1

GE2 (ZUI997)

  • Bolt the frame element GE2 to the frame element GE1.

  • Use the components in "Detail A" of image GE2-3, GE1.

  • Caution: Attach the frame element GE2 so that the U-profile is positioned with the opening facing downwards.

  • Observe the permissible torque: 50 Nm.

GE2 installation
Figure 12. Assembly — Inverter rack — GE2-3, GE1 (detailed view)

Step 10:

You need:

Description Amount Item no.

Spring washer D10.2

8

ZUI012

Disc washer D10.5

16

ZUI029

Hexagon nut M10

8

ZUS128

Hexagon head bolt, fully threaded M10 x 30

8

ZUS133

Hexagon head bolt, fully threaded M10 x 25

8

ZUS088

Steel frame 02

1

GE2 (ZUI997)

  • Bolt the frame element GE2 to the frame element GE1.

  • Use the components in "Detail A" of image GE2-4, GE1.

  • Caution: Attach the frame element GE2 so that the U-profile is positioned with the opening facing up.

  • Observe the permissible torque: 50 Nm.

GE1 GE2 connection
Figure 13. Assembly — Inverter rack — GE2-4, GE1 (detailed view)

Step 11:

You need:

Description Amount Item no.

Spring washer D10.2

4

ZUI012

Disc washer D10.5

8

ZUI029

Hexagon nut M10

4

ZUS128

Hexagon head bolt, fully threaded M10 x 25

4

ZUS088

Cover 01

4

DE1 (ZUI997)

  • Bolt the roof elements DE1 to the frame element GE1.

  • To do this, use the components in "Detail A" of image DE1-2, GE1.

  • Observe the permissible torque: 50 Nm.

DE1 GE1 installation
Figure 14. Assembly — Inverter rack — DE1-2, GE1 (detailed view)

Step 12:

You need:

Description Amount Item no.

Spring washer D10.2

4

ZUI012

Disc washer D10.5

8

ZUI029

Hexagon nut M10

4

ZUS128

Hexagon head bolt, fully threaded M10 x 25

4

ZUS088

  • Bolt the roof elements DE1 to the frame element GE1.

  • To do this, use the components in "Detail A" of image DE1-3, GE1.

  • Observe the permissible torque: 50 Nm.

DE1 GE1 installation 2
Figure 15. Assembly — Inverter rack — DE1-3, GE1 (detailed view)

Step 13:

You need:

Description Amount Item no.

EJOT self-drilling screw JT6-6-5.5

10

ZUS792

Sheet metal roof 01

2

DB1 (ZUI997)

  • Screw the sheet metal roofs DB1 to the steel structure.

  • Please only screw the bottom row tight.

DB1 installation
Figure 16. Assembly — Inverter rack — Sheet metal roof DB1

Step 14:

You need:

Description Amount Item no.

EJOT self-drilling screw JT6-6-5.5

30

ZUS792

Sheet metal roof 02

2

DB2 (ZUI997)

  • Screw the sheet metal roofs DB2 to the steel structure.

  • We recommend sealing the overlapping and sealing seams with silicone (transparent) on site.

DB2 installation
Figure 17. Assembly — Inverter rack — Sheet metal roofs DB2

3.5. Assembly of the inverters

You need:

Description Amount Item no.

Spring washer D8.1

4

ZUS056

Disc washer D8.4

8

ZUS162

Hexagon nut M8

4

ZUI006

Hexagon head bolt, fully threaded M8 x 22

4

ZUS789

Please note:

The mounting plate is included in the scope of delivery of the inverter. Please refer to the complete delivery for the supplied inverters and mounting plates.

KACO mounting plate installation
Figure 18. Mounting plate — KACO

For the further installation steps of the inverters, please refer to the description in the manufacturer’s manual under the following link (from page 16):

3.6. Assembly of the cable ducts

You need:

Description Amount Item no.

Screw flattened, hexagon socket M6 x 10

28

ZUS302

Cable duct 200 x 50

4

KAI057

cable channel installation
Figure 19. Assembly — Cable ducts

3.7. Assembly of the earth circuit connector

You need:

Description Amount Item no.

Earth circuit connector

1

ZUS787

T-shaped connector 01

2

PE1 (ZUI997)

T-shaped connector 02

2

PE2 (ZUI997)

Disc washer D10.5

8

ZUI029

Hexagon nut M10

4

ZUS128

Cylinder head bolt with hexagon socket M10 x 80

4

ZUS790

Hexagon head bolt, fully threaded M10 x 18

2

ZUS788

  • Mount the potential equalization rail to the bracket as shown in the image earth circuit connector.

    • Observe the permissible torque: 20 Nm.

PE rail
Figure 20. Earth circuit connector
PE rail installation
Figure 21. Assembly — Earth circuit connector