FENECON Automatic Off-Grid Switch (AVU)

Version:2025.1.1

1. About these instructions

Personnel must have carefully read and understood these installation and service instructions before starting any work.

1.1. Manufacturer

FENECON GmbH
Gewerbepark 6
94547 Iggensbach
Germany

Phone: +49 (0) 9903 6280 0
Fax: +49 (0) 9903 6280 909
E-mail: service@fenecon.de
Internet: www.fenecon.de

1.2. Formal information on installation and service instructions

© FENECON GmbH, 2025

All rights reserved.

Reprinting, even in part, is only permitted with the permission of FENECON GmbH.

1.3. Version/revision

Table 1. Version/revision
Version/Revision Change Date Name

2022.8.1

Draft creation

03/08/2022

FENECON

2022.9.1

Revision draft

05/09/2022

FENECON

2022.11.1

Completion of the instructions

15/11/2022

FENECON

2023.1.1

Revision of the instructions

27/01/2023

FENECON

2023.4.1

Revision of the instructions

12/04/2023

FENECON

2023.9.1

Revision of the instructions/adaptation of RCDs

08/09/2023

FENECON

2025.1.1

Revision, pictograms/safety instructions

28/01/2025

FENECON MR

1.4. Symbol conventions

Table 2. Symbol conventions
This symbol indicates an imminent danger. If this danger is not avoided, it can lead to death or serious injury.
This symbol indicates a potentially dangerous situation. If this dangerous situation is not avoided, it may result in minor or moderate injury.
This symbol indicates a warning. Failure to observe this warning may result in damage and/or destruction of the system.
This symbol indicates a note. It is recommended that the note be observed.

1.5. Structure of warning notices

Warning notices protect against possible personal injury and damage to property if observed. The magnitude of the danger is classified by the signal word.

Source of the danger
Possible consequences of non-compliance

  • Measures for avoidance/prohibitions

Danger sign
The danger sign indicates warnings that warn of personal injury.

Source of danger
The source of danger indicates the cause of the hazard.

Possible consequences of non-compliance
The possible consequences of ignoring the warning are e. g. crushing, burns or other serious injuries.

Measures/prohibitions
Measures/prohibitions include actions that must be taken to avoid a hazard (e. g. stop the drive) or that are prohibited to avoid a hazard.

1.6. Terms and abbreviations

The following terms and abbreviations are used in the assembly and service instructions:

Table 3. Terms and abbreviations
Term/Abbreviation Meaning

AC

Alternating Current

AVU

Automatic off-grid switch

BMS

Battery Management System

DC

Direct Current

EMS

Energy Management System

Energy Meter

Electricity meter for the inverter at the grid connection point

IBN

Commissioning

GCP

Grid connection point

PE

Protective earth conductor

VDE

German Association for Electrical, Electronic & Information Technologies

Widget

Component of FENECON Online Monitoring

2. Safety

2.1. Intended use

The automatic off-grid switch is a supplement to the electrical energy storage system.
It ensures automated, independent and all-pole switching of the entire household consumption from the mains supply to the emergency power output of the inverter (and back when the mains supply is restored). Manual switching from outside is also possible.

The compliant grid disconnection still takes place in the inverter. The automatic off-grid switch is used exclusively for switching the consumer loads.

2.2. Qualification of staff

The system must only be installed and maintained by qualified personnel.

2.2.1. Qualified electricians

Qualified electricians include persons who

  • are able to carry out work on electrical systems due to their technical training, knowledge and experience, including knowledge of all relevant standards and regulations.

  • have been commissioned and trained by the operator to carry out work on electrical systems.

  • are familiar with how the automatic off-grid switch works.

  • recognize hazards and prevent them by taking appropriate protective measures.

2.2.2. Service staff

Service personnel includes manufacturer personnel or specialist personnel instructed and authorized by FENECON GmbH who must be requested by the operator to work on the system (e. g. assembly, repair, maintenance, etc.).

2.3. General information about the automatic off-grid switch

  • Only qualified electricians are allowed to install the automatic off-grid switch and make cable connections.

  • The automatic off-grid switch must only be used under the specified conditions (see Technical data AVU-63-16).

  • Do not immerse the unit in water, moisten it or touch it with wet hands.

  • Maintain clearances to water sources.

  • Keep the automatic off-grid switch away from children and animals.

  • The automatic off-grid switch can cause electric shock and burns due to short-circuit currents.

  • Keep the automatic off-grid switch away from heat sources.

  • Do not use the automatic off-grid switch if color changes or mechanical damage are detected during assembly, normal operation and/or storage.

  • Do not set up or use the automatic off-grid switch near open flames, heaters or high-temperature sources.

  • The heat can cause insulation to melt.

  • Do not throw or drop the unit.

  • Read and adhere to the instructions for installation and operation in order to avoid damage due to incorrect operation.

  • Do not step on the unit.

2.3.1. Installation, operation and maintenance

Always observe the following safety instructions when installing, operating or maintaining the automatic off-grid switch:

  • Installation/maintenance work and making cable connections must only be carried out by qualified electricians.

  • Place on a dry, insulating mat and do not wear any metal objects (e. g. watches, rings and necklaces) during maintenance work/operation.

  • Use insulated tools and wear personal protective equipment (PPE).

  • Live contacts with a potential difference must not touch each other.

  • Measure the battery voltage with a multimeter and ensure that the output voltage is 0 V in Off Mode.

  • If an abnormality is detected, switch off the device immediately.

  • Only continue the maintenance work after the causes of the anomaly have been removed.

2.3.2. Fire protection

  • Do not expose the unit to direct sunlight.

  • Avoid contact with conductive objects (e. g. wires).

3. Technical data AVU-63-16

3.1. General

Table 4. Technical data — Automatic off-grid switch
Description Value/dimension

Installation /
Ambient conditions

Ingress Protection

IP20

Installation site

Indoor

Operating altitude above sea level

≤ 2,000 m

Surge category (OVC)

||

Protection class

I (PE protective conductor)

Max. Humidity

95 %

Installation/operating temperature

-5 °C to +45 °C

Grid connection

L1, L2, L3, N, PE

Fuse protection grid connection

63 A

Residual current monitoring

Observe requirements depending on installation location

Rated frequency

50 Hz to 60 Hz

Output voltage AC

400 V

Max. mains operation current

63 A

Suitable network configurations

TN-S and TT

Consumer connection

L1, L2, L3, N

Emergency power operation

Apparent power emergency power operation

10,000 VA

Max. Current emergency power supply operation

16.5 A

Network configuration emergency power mode

TN-S

Switchover times

Mains failure > Emergency power supply operation: approx. 3 s
Emergency power supply operation > Mains operation: approx. 3 s

Certification/guideline

System conformity

CE

General

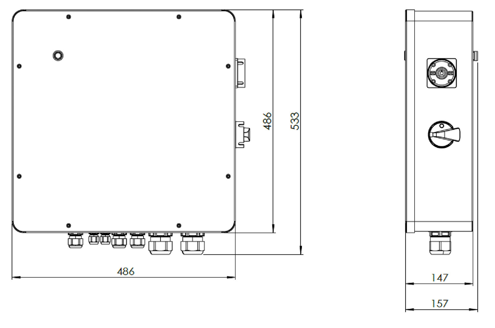
Width | Depth | Height in mm

486 | 147 | 486

Weight, approx.

16 kg

Degree of soiling

2

Mechanical force/impact resistance

IK8

3.2. Dimensions

The dimensions are given in mm.

image006
Image 1. Automatic off-grid switch — Dimensions

3.3. Terminal assignment

3.3.1. Interior layout overview

image007
Image 2. Internal layout — Automatic off-grid switch
Table 5. Internal layout — Automatic off-grid switch
List item Description

1

3-phase monitoring relay — incl. neutral monitoring

2

DIN rail power supply unit 12 V/DC; 4.5 A; 54 W

3

3 x fuse terminals (incl. fuse) + 1 x feed-through terminal

4

Circuit breaker: C6; 1-pole

5

Circuit breaker: C25; 4-pole

6

Gave motorized changeover switch (automatic off-grid switch)

7

Optional: FENECON Home 10 Energy Meter

8

Continuity series terminals for the power supply of the energy meter

9

Continuity terminal blocks Internal power supply (12 V)

10

Continuity terminal blocks for connecting to the relay — for LED status query

11

Continuous terminal blocks for the power supply to the EMS box

12

Continuous terminal blocks for connecting to the inverter — OnGrid/grid

13

Continuous terminal blocks for connecting to the inverter — OffGrid/emergency power

14

Continuous terminal blocks for grid connection

15

Continuous terminal blocks for connecting to consumer loads

3.3.2. Detailed terminal assignment

image008
Image 3. Detailed terminal assignment — Automatic off-grid switch
Table 6. Detailed terminal assignment — Automatic off-grid switch
Position Description

X16

Optional: Supply FENECON Home 10 energy meter

X12

12 V DC

X10

Relay Status

X6

AC supply EMS box

X4

Inverter Grid

X5

Inverter Off-Grid

X1

Grid connection

X7

Consumer connection

4. General description

The automatic off-grid switch is a supplement to an electrical energy storage system. The unit allows for an unrestricted supply of the consumer loads with max. 43 kW or 63 A in parallel mains operation.
The automatic off-grid switch ensures automated, independent switching of the entire household consumption from the grid supply to the emergency power output of the inverter and back when the grid is restored. Manual switching is also possible. For the installation of the storage system, please follow the instructions of the respective system found here: docs.fenecon.de/en!

The compliant grid disconnection still takes place in the inverter. The automatic off-grid switch is used exclusively for switching the consumer loads.

4.1. System structure

image009
Image 4. System — Schematic representation with optional components

5. Assembly preparation

5.1. Scope of delivery

The following items are included in the scope of delivery.

Table 7. Scope of delivery — Automatic off-grid switch
Image Amount Description
image010

1

Automatic off-grid switch

image011

1

Wall installation bracket

lens head bolt

2

Bolts for wall mount

screw and anchor

4

Screws M6 x 67 mm and screw anchor 8 x 60 mm for wall mounting

washer kit photo

1

Nut, body washer and spring washer for earthing

filler plug avu

2

Filler plug for unused cable feed-throughs

operating manual

1

Assembly and operating instructions

5.2. Tools required

The following tools are required for assembly of the system components:

Table 8. Tools required
Image Description Image Description
pencil

Pencil

spirit level

Spirit level

power drill

Impact drill or
cordless screwdriver

screw drivers

Screwdriver set

folding rule

Meter stick

side cutter

Side cutter

allen key

Allen key, 3 mm

flat spanner

Flat spanners

crimping tool

Crimping tool

multimeter

Multimeter

gripping pliers

Pliers for cable glands

protective eyewear photo

Protective eyewear

protective footwear

Safety footwear

dust mask photo

Dust mask

rubber mallet

Rubber mallet

vacuum cleaner

Vacuum cleaner

wire stripper

Wire stripper

protective gloves

Protective gloves

torque wrench

Torque wrench

stripping knife

Stripping knife

The tool is not included in the scope of delivery.

6. Assembly — Automatic Off-grid Switch

Before installation, carefully check whether the packaging and the product are damaged and whether all accessories listed in the scope of delivery are included. In the event that accessories are missing or damaged, contact the manufacturer/dealer.

6.1. Safety instructions

Electric shock from live parts
Death or serious injury to the body and limbs due to electric shock when touching live cables connected to the system.

  • Before starting work, disconnect the automatic off-grid switch from the power supply and secure it against being switched on again.

  • Wait at least 5 minutes after switching off before starting work on the inverter.

  • Observe the safety instructions of FENECON GmbH.

  • Do not touch any exposed live parts or cables.

  • Do not pull the terminal strip with connected DC conductors out of the slot under consumer load.

  • Wear suitable personal protective equipment for all work.

Fire and explosion
Death or serious injury to body and limbs due to fire or explosion; in the event of a fault, an ignitable gas mixture may be produced inside the inverter. Switching operations in this condition can cause a fire inside the product or tripped an explosion.

  • In the event of a fault, do not carry out any direct actions on the electrical energy storage system.

  • Ensure that unauthorized persons do not have access to the electrical energy storage system.

  • Disconnect the battery modules from the inverter via the DC fuse on the battery tower.

  • Switch off the AC miniature circuit breaker or, if it has already tripped, leave it switched off and secure it against being switched on again.

  • Only carry out work on the inverter (e.g. troubleshooting, repair work) with personal protective equipment for handling hazardous substances (e.g. protective gloves, eye and face protection and respiratory protection).

Arcs due to short-circuit currents
Death or serious injury to the body and limbs due to burns caused by heat development and electric arcs due to short-circuit currents of the battery modules

  • Before carrying out any work on the battery modules, de-energize the battery modules.

  • Comply with all safety instructions from the battery manufacturer.

Destruction of a measuring device due to overvoltage
Death or serious injury to the body and limbs due to electric shock when touching a live meter housing: An overvoltage can damage a meter and cause a voltage to be applied to the meter housing.

  • Only use measuring devices with an input voltage range of at least 600 V or higher.

Non-intended use
If the product is used in a manner not defined by the manufacturer, the device’s protection measures may be impaired.

Weight of the automatic off-grid switch
Injuries to the body and limbs due to crushing when falling during transportation or assembly of the automatic off-grid switch

  • Transport and lift the automatic off-grid switch carefully.

  • Note the weight of the automatic off-grid switch and its center of gravity.

  • Wear suitable personal protective equipment for all work on the automatic off-grid switch.

Sand, dust and moisture
Ingress of sand, dust and moisture can damage the unit and impair its function.

  • Only open the unit if the humidity is within the limit values and the environment is free of sand and dust.

Electrostatic charge
Touching electronic components can damage or destroy the unit via electrostatic discharge.

  • Ground yourself before touching a component.

Cleaning agents
The use of cleaning agents can damage the automatic off-grid switch and parts of the automatic off-grid switch.

  • Clean the automatic off-grid switch and all its parts with only a cloth moistened with pure water.

The installation must only be carried out by a qualified electrician.
Installation or intervention in the power supply system can lead to very serious injuries or a fatal electric shock.

  • Connection or installation must only be carried out by qualified personnel/qualified electricians in a de-energized state!

  • It is essential to check that there is no voltage!

  • Always observe the accident prevention regulations (in Germany: UVV) and VDE regulations!

6.2. Pictograms

Pictograms on the system indicate dangers, prohibitions and instructions. Illegible or missing pictograms must be replaced by new ones.

Table 9. Pictograms
Pictogram Meaning Description
W012

Warning of dangerous electrical voltage

Pictogram on the enclosure, and marking of components which do not clearly show that they contain electrical equipment which may be the cause of a risk of electric shock.

W001

General warning sign

W026

Battery charging hazard warning

Pictogram on housing and marking of components that do not clearly indicate that they contain electrical equipment that may give rise to a battery charging hazard.

P003

No open flames; fire, open sources of ignition and smoking prohibited

Pictogram on the enclosure and marking of components that do not clearly indicate that they contain electrical equipment that may present a risk of open flames, fire, open sources of ignition and smoking.

grounding

Protective earthing symbol

electro bin

Separate collection of electrical and electronic equipment

M002

Note instructions

M014

Wear protective headgear

M008

Wear protective footwear

M009

Wear protective gloves

CE logo

CE mark

recycle

Product is recyclable.

6.3. Operating materials/equipment

6.3.1. Electrolyte solution of the battery modules

  • Electrolyte solution is used in the battery modules (lithium iron phosphate).

  • The electrolyte solution in the battery modules is a clear liquid and has a characteristic odor of organic solvents.

  • The electrolyte solution is flammable.

  • The electrolyte solution in the battery modules is corrosive.

  • Contact with electrolyte solution can cause severe burns to the skin and damage to the eyes.

  • Do not inhale the vapors.

  • If the electrolyte solution is swallowed, induce vomiting.

  • Leave the contaminated area immediately after inhaling vapors.

  • Eye and skin contact with leaked electrolyte solution must be avoided.

    • After skin contact: Immediately wash skin thoroughly with neutralizing soap and consult a doctor if skin irritation persists.

    • After eye contact: Immediately flush eye(s) with running water for 15 minutes and seek medical advice.

Delayed treatment can cause serious damage to health.

6.3.2. Electrical equipment

  • Work on electrical equipment may only be carried out by qualified electricians.

  • The five safety rules must be observed for all work on electrical components:

    1. Disconnect.

    2. Secure against restarting.

    3. Check that there is no voltage.

    4. Earth and short-circuit.

    5. Cover or shield neighboring live parts.

  • Maintenance work may only be carried out by trained specialist personnel (service personnel).

  • Before starting work, carry out visual checks for insulation and housing damage.

  • The system must never be operated with faulty or non-operational electrical connections.

  • To avoid damage, lay supply lines without crushing and shearing points.

  • Only insulated tools may be used for maintenance on uninsulated conductors and terminals.

  • Switch cabinets (e. g. inverter housing) must always be kept locked. Only authorized personnel with appropriate training and safety instructions (e. g. service personnel) should be allowed access.

  • Observe the inspection and maintenance intervals for electrical components specified by the manufacturer.

  • To avoid damage, lay supply lines without crushing and shearing points

  • If the power supply is disconnected, specially marked external circuits may still be live!

  • Some equipment (e. g. inverters) with an electrical intermediate circuit can still carry dangerous residual voltages for a certain time after disconnection. Before starting work on these systems, check that they are voltage-free.

6.4. Personal protective equipment

Depending on the work carried out on the system, wear PPE (personal protective equipment):

  • Protective footwear

  • Protective gloves, cut-resistant if necessary

  • Protective eyewear

  • Protective headgear

6.5. Spare and wear parts

The use of spare and wear parts from third-party manufacturers can lead to risks. Only original parts or spare and wear parts approved by the manufacturer may be used. The instructions for spare parts must be observed. Further information can be found in the wiring diagram.

Further information must be requested from the manufacturer.

6.6. IT security

FENECON energy storage systems and their applications communicate and operate without internet connection. The individual system components (inverters, batteries, etc.) are not directly connected to the internet or accessible from the internet. Sensitive communications via the internet are processed exclusively via certificate-based TLS encryption.

Access to the programming levels is not barrier-free and is accessible at different levels depending on the qualifications of the operating personnel. Safety-relevant program changes require additional verification.

FENECON processes energy data of European customers exclusively on servers in Germany and these are subject to the data protection regulations applicable in this country.

The software used is checked using automated tools and processes established during development in order to keep it up to date and to rectify security-relevant vulnerabilities at short notice. Updates for FEMS are provided free of charge for life.

6.7. Installation conditions and clearances at the installation site

image038
Image 5. Clearances at the installation site

Installation conditions

  • The wall must be stable enough for mounting the automatic off-grid switch and must not be flammable.

  • The room should be permanently ventilated.

  • Maintain a clearance of at least 300 mm above the automatic off-grid switch.

  • Maintain a clearance of at least 300 mm below the automatic off-grid switch (cable ducts are not measured here).

  • Maintain a clearance of at least 1000 mm from the front of the automatic off-grid switch.

  • Keep at least 100 mm clearance to the left of the automatic off-grid switch.

  • Maintain a clearance of at least 400 mm to the right of the automatic off-grid switch.

6.8. Wall mounting

Proceed as follows to install the automatic off-grid switch on a wall:

Assembly of the wall bracket

image039
  1. To attach the automatic off-grid switch, drill 8 mm holes for the enclosed screw anchors according to the specified dimensions.

image040
  1. Attach the wall bracket to the wall. Anchors and screws are included for this purpose. Always check the condition of the wall to see whether the screw anchors can be used.

image041 042
  1. Hang the automatic off-grid switch on the wall bracket using the bracket on the back.

  2. Then secure on the left-hand side using the bolts provided.

image043
  1. Loosen the eight bolts on the front and remove the cover (Torx T20).

7. Electrical installation

7.1. Overview of the connections

image044
Image 6. Overview of the connections
Table 10. Components of the general overview
List item Description

1

Bi-directional meter from the energy supplier

2

Earth circuit connector or earthing connection

3

Fuse protection of the consumer loads with RCD type A and suitable MCBs

4

Consumer loads/emergency loads

5

EMS box connection (uninterruptible) (AC supply to the EMS box)

6

Automatic off-grid switch (AVU)

7

Inverter

8

External status signal

9

Grid

10

Optional: FENECON Home 10-Energy meter (energy flow direction meter)

Between positions 1 and 6:

  • In addition, the currently valid national regulations and the specifications of the relevant grid operator must be observed. (If an RCD is required by the grid operator, an RCD type A with a tripping current of 300 mA is recommended; at 30 mA, unwanted shutdowns may occur).

  • The currently valid national regulations, the specifications of the associated grid operator and the manufacturer’s specifications must be complied with.

Optional earthing connection:
Depending on the network configuration, earthing can be done via the supply cable or through the earth circuit connector.

7.2. Connection between the individual components

7.2.1. Connection of the mains input and the consumer loads

image045
Image 7. AC connection grid and consumer load
Table 11. Components for AC connection and consumer load (not included)
List item Description

1

Meter cabinet with bi-directional meter

2

Earthing connection or earth circuit connector
T-shaped connector with meter cabinet and sub-distribution board (1 x 16 mm2 each)

3

Clamping point in the meter cabinet for connection cable to the automatic off-grid switch (5 x 16 mm2)

4

Connection point in the automatic off-grid switch (X7 & X1)

5

Consumer load on the fuse box or sub-distribution board with type A RCD & MCB
Automatic off-grid switch connection cable (4 x 16 mm2) + external earthing wire (1 x 16 mm2)

7.2.2. Connection to the inverter

image046
Image 8. AC connection — Inverter
Table 12. Components for the inverter connection (not included in the scope of delivery)
List item Description

1

Inverter

X4

Grid connection inverter to X4 (on-grid) (5 x 4 mm2)

X5

Emergency power connection inverter to X5 (OFF-Grid) (5 x 4 mm2)

7.2.3. Connection to the EMS box

image047
Image 9. AC supply to the EMS box
Table 13. Components — EMS box connection (not included in the scope of delivery)
List item Description

1

EMS box (AC connection)

X6

Connection AC supply EMS box to X6 (3 x 1.5 mm2)

7.2.4. Energy meter connection without external generators

image048
Image 10. Energy meter in the automatic off-grid switch
Table 14. Components for the SmartMeter connection (optional)
List item Description

1

Grid

2

Bi-directional meter from energy supplier

3

Power supply from energy meter X16 (4 x 1.5 mm2)

4

Split-core CT (directly behind grid operator’s meter) already pre-assembled on the Energy Meter

5

Inverter

6

Modbus connection between Energy Meter and inverter

If you have an existing system with an Energy Meter already installed, the Energy Meter does not need to be modified.

7.2.5. Connection of an external status display (optional)

image049
Image 11. External status display connection
Table 15. Components for an external status display (optional)
List item Description

1

External status display (three states, each state: 12 V DC/100 mA)

The external status display is a separate installation by the installer.
No product is provided for this, neither as part of the scope of delivery nor as an option.

7.3. Electrical installation with external AC generator

7.3.1. Overview of the connections

image050
Image 12. Installation overview with external AC generator
Table 16. Components of the complete overview with external AC generator
List item Description

1

Bi-directional meter from the energy supplier

2

Earth circuit connector or earthing connection

3

Fuse protection of the consumer loads with RCD type A and suitable MCBs

4

Consumer loads/emergency power consumers

5

EMS box connection (uninterruptible) (AC supply to the EMS box)

6

Automatic off-grid switch (AVU)

7

Inverter

8

External status signal

9

Grid

10

Energy meter (energy flow direction meter)

11

External AC generator

PV inverters, CHP units, small wind turbines or other generators in the existing sub-distribution board must be installed at point 11.

7.3.2. Energy meter connection with external AC generator

image051
Image 13. Energy meter connection with external AC generator
Table 17. Components for the smart meter connection & external AC generator (optional)
List item Description

1

Grid

2

Bi-directional meter from energy supplier

3

FENECON Home 10 Energy meter (voltage supply from X16: 4 x 1.5 mm2)

4

{split-core CT (directly behind AC generator) already pre-assembled on smart meter

5

FENECON Inverter

6

Modbus between Smartmeter and FENECON inverter

7

AC generator (directly behind the grid operator’s meter and behind the split-core CTs of the energy meter)

If you have an existing system with an Energy Meter already installed, the Energy Meter does not need to be modified.

8. Display and operation

8.1. LED status display

image052
Image 14. LED status display
Table 18. LED status display
List item Description

Blue

The system is in automatic mains operation

Red

The system is in emergency power mode (automatic/manual)

Green

The system is in manual mains operation

8.2. Operating activities

image053
Image 15. Operating activities
Table 19. Automatic off-grid switch operation
List item Switch position Description

1

Press LED switch

Motor in switch 2 is switched off (LED lights up green)

2

Position switch and turn

The mode can be changed manually.
Position 1: Mains operation (LED lights up green)
Position 0: Off
Position 2: Emergency power mode (LED lights up red)

9. Initial commissioning

9.1. Checking the installation, connections and cabling

Check the system as follows before initial commissioning:

  • All components (clearances, environment, mounting) are installed correctly.

  • All internal wiring is complete and properly connected.

  • All external supply lines (power supply, communication cable) are properly connected.

  • All connected loads are matched to the system and the necessary settings have been made.

  • All necessary tests of the system were carried out in accordance with the standards.

9.2. Settings on the monitoring relay

image054
Image 16. Settings on the monitoring relay (depending on variant)
Table 20. Settings on the monitoring relay
List item Description

1

Neutral monitoring (with or without) Set value: With neutral conductor

2

Switch-off delay (between 0.5 and 60 seconds) Set value: 0.5 seconds or 0.1 seconds

3

Maximum voltage (between 380 and 480 V) Set value: 450 V

4

Nominal voltage (between 4 and 25 %) Set value: 15 %

5

Minimum voltage (between 300 and 400 V) Set value: 350 V

6

Rotary function switch for various pick-up and drop-out voltages Set value: U2 - 3Ph

9.3. Switching on the miniature circuit breakers

The miniature circuit breakers in the automatic off-grid switch must then be switched on.

image055
Image 17. Racking in the miniature circuit breakers in the automatic off-grid switch

9.4. Final assembly

Proceed as follows for final assembly of the automatic off-grid switch:

Installation of the cover

image056
  1. Connect the plug of the push-button in the cover to the plug in the automatic off-grid switch.

image057
  1. Attach the grounding wire in the automatic off-grid switch to the grounding bolt on the mounting plate as shown. Use the enclosed body washer, spring washer and nut (M8) for this. Then tighten with a torque wrench to 8.9 Nm (wrench size 13).

image059
  1. Replace the cover and tighten the 8 bolts (Torx T20).

9.5. Switching the system on/off

9.5.1. Switch on

The system must be switched on in the following order:

  1. Switch on the main fuse.

  2. Switch on the inverter.

  3. Switch the battery energy storage system.

  4. Check whether the push-button is set to automatic mode.

The automatic off-grid switch now automatically switches to grid operation when the grid is connected.

If no emergency power has been activated at the Home, commissioning must be carried out again to activate the emergency power function.

9.5.2. Switching off

If the system must be taken out of operation, please proceed in the following order:

  1. Switch off the battery energy storage system.

  2. Switch off the inverter.

  3. Switch off the main fuse on the meter.

  4. Switch off the circuit breaker in the automatic off-grid switch.

Make sure the device is de-energized before dismantling or modifying it!

9.6. Replacing the cartridge fuses

If a cartridge fuse is defective, it must be replaced as shown in the following image.

The fuse must only be replaced by a qualified electrician.
To replace the fuse, it is necessary to open the automatic off-grid switch and touch any live parts. It is essential to ensure that there is no voltage beforehand and to observe the 5 safety rules!

image058
Image 18. Replacing the cartridge fuses

Only cartridge fuses, medium time delay (250 V/6.3 A), are to be used! (Littelfuse 021506.3)

Electrical data

Materials

Housing:
Caps: nickel-plated brass
Cables: tin-plated copper

Clamping strength

MIL-STD-202, method 211, test condition A

Solderability

MIL-STD-202 Method 208

Marking of the product

Cable 1: Brand logo, current and voltage values Cable 2: Test seal

Operating temperature

-55 °C to +125 °C

Thermal shock test

MIL-STD-202, method 107, test condition B (5 cycles, -65 °C to +125 °C)

Vibration test

MIL-STD-202, method 201

Humidity test

MIL-STD-202, method 103, test condition A (high humidity (95 %) and elevated temperature (40 °C) for 240 hours)

Salt spray test

MIL-STD-202, method 101, test condition B

As long as the inverter or the grid are switched on, voltage is present!

10. FENECON Service

If the system malfunctions, contact FENECON Service:

Phone: +49 (0) 9903 6280 0

Our service hours:
Mon. to Thurs.: 8 a.m. to 12 p.m. | 1 p.m. to 5 p.m.
Fri.: 8 a.m. to 12 p.m. | 1 p.m. to 3 p.m.

11. Technical maintenance

11.1. Tests and inspections

No regular tests and inspections need to be carried out on the system in accordance with the normative specifications.

11.2. Maintenance work

No regular maintenance work needs to be carried out on the system in accordance with the normative specifications.

11.3. Repairs

Contact FENECON Service in the event of defective components.

12. Handover to the operator

12.1. Information for the operator

The following information must be provided to the operator:

Table 21. Information for the operator
Component Information/Document Comment

System

Assembly and operating instructions

13. Dismantling and disposal

13.1. Dismantling

Only have the automatic off-grid switch dismantled by authorized qualified electricians.

13.2. Disposal

  • The automatic off-grid switch must not be disposed of in normal household waste.

  • Disposal of the product must comply with local regulations for disposal.