FENECON Commercial 50 — Assembly and Operating Instructions
1. About these instructions
Personnel must have carefully read and understood these installation and service instructions before starting any work.
1.1. Manufacturer
FENECON GmbH
Gewerbepark 6
94547 Iggensbach
Germany
Phone: +49 (0) 9903 6280 0
Fax: +49 (0) 9903 6280 909
E-mail: service@fenecon.de
Internet: www.fenecon.de
1.2. Formal information on installation and service instructions
© FENECON GmbH, 2025
All rights reserved.
Reprinting, even in part, is only permitted with the permission of FENECON GmbH.
1.3. Version/revision
Version/Revision |
Change |
Date |
Name |
2025.07.01 |
First draft |
04/07/2025 |
FENECON TK |
2025.08.01 |
Publication on docs.fenecon.de |
01/09/2025 |
FENECON TK/MR |
1.4. Symbol conventions
|
||
|
||
|
||
|
1.5. Structure of warning notices
Warning notices protect against possible personal injury and damage to property if observed and classify the magnitude of the danger by means of the signal word.
Source of the danger
|
Danger sign
The danger sign indicates warnings that warn of personal injury.
Source of danger
The source of danger indicates the cause of the hazard.
Possible consequences of non-compliance
The possible consequences of ignoring the warning are, for example, crushing, burns or other serious injuries.
Measures/Prohibitions
Measures/prohibitions include actions that must be taken to avoid a hazard (e.g. stopping the drive) or that are prohibited to avoid a hazard.
1.6. Terms and abbreviations
The following terms and abbreviations are used in the installation and service instructions:
Term/abbreviation | Meaning |
---|---|
AC |
Alternating Current |
CHP |
Combined Heat and Power plant/unit |
BMS |
Battery Management System |
DC |
Direct Current |
EMS |
Energy Management System |
Energy meter |
Electricity meter for the inverter at the grid connection point |
FEMS |
FENECON Energy Management System |
Commissioning |
Commissioning |
MPPT |
Maximum Power Point Tracking Finder for the maximum power point |
GCP |
Grid Connection Point |
PE |
Protective earth |
PV |
Photovoltaic |
RTE |
Round-Trip-Efficiency (RTE) |
SG-Ready |
Smart-Grid-Ready — Preparation of the heat pump for external control |
SoC |
State of Charge |
SoH |
State of Health — State of ageing |
VDE |
German Association for Electrical, Electronic & Information Technologies e. V. |
Widget |
Component of Online Monitoring |
1.7. Scope of delivery
Pos. | Komponente | Anzahl | Bemerkung |
---|---|---|---|
1 |
FENECON Commercial 50 — Wechselrichter |
1 |
50 kW |
2 |
FENECON Commercial — EMS Box (inkl. FENECON Energy Management System) |
1 |
|
3 |
FENECON Commercial — Parallelschaltbox |
1 |
|
4 |
FENECON Commercial — Extension Box |
1 |
bis zu 4, abhängig von der Systemkonfiguration |
5 |
FENECON-BMS Box |
1 |
je Batterieturm |
6 |
FENECON-Batteriemodul |
15 |
je Batterieturm, abhängig von der bestellten Kapazität |
7 |
FENECON-Sockel (bei FENECON-BMS-Box enthalten) |
1 |
je Batterieturm |
8 |
GoodWe Energy Meter |
1 |
FEH040 |
Component | Comment |
---|---|
Installation and service instructions FENECON Commercial 50 |
Instructions for the installer |
Quick start guide FENECON Commercial 50 |
Quick start guide for the installer |
Operating instructions FENECON Commercial 50 |
Instructions for the user/end customer |
Brochure FENECON Commercial 50 |
1.8. Applicable documents
All documents in the appendix of these installation and service instructions need to be observed. Cf. 15.1 Additional documents
1.9. Availability
The operator must keep these installation and service instructions or relevant parts of them within easy reach in the immediate vicinity of the product.
If the product is handed over to another person, the operator passes these installation and service instructions on to that person.
2. Safety
2.1. Intended use
The FENECON electrical energy storage system is used for the storage of electrical energy in rechargeable lithium iron phosphate battery modules (charging) and the provision of electrical energy (discharging). This charging and discharging process takes place via a connected inverter. The system must only be used in compliance with the permissible technical data (see section Technical data).
FENECON power storage systems consist of various modules. In particular, these include a BMS (battery management system), the FENECON Energy Management System (FEMS), battery modules and bases. All processes of the electricity storage system are monitored and controlled by the FEMS.
Any other use is not an intended use.
2.2. Reasonably foreseeable misuse
All applications that do not fall within the scope of the intended use are considered misuse.
Work on live parts is generally not permitted. Electrical work must only be carried out by qualified electricians.
The following safety rules must be observed for all work on electrical components:
-
Disconnect.
-
Secure against restarting.
-
Check that there is no voltage.
-
Earth and short-circuit.
-
Cover or shield neighboring live parts.
Non-compliance with the safety rules is considered a reasonably foreseeable misuse. |
Other misuses include in particular:
-
improper transportation, installation or assembly at a location, trial operation or operation that could damage the system.
-
Change in the specified technical characteristics, including the individual components.
-
Change or deviation of the connected load.
-
functional or structural changes.
-
Operating the product in a faulty or defective condition.
-
improper repairs.
-
operation without protective devices or with defective protective devices.
-
Disregarding the information in the original installation and service instructions.
-
Fire, open light and smoking in the vicinity of the storage system.
-
insufficient ventilation at the installation site.
-
unauthorized changes and actions to the electrical energy storage system.
-
Use as mobile energy storage.
-
Direct use in a PV system (integration via an AC-coupled grid is possible).
Installing firmware updates via external sources does not invalidate the warranty for systems in the FENECON commercial series. However, functional compatibility is not confirmed in such a case. |
2.3. Area of application — Electromagnetic compatibility (EMC)
The low-voltage equipment is intended for use in the following areas of application:
-
General public (public)
Use in other areas of application is not in accordance with the intended use.
2.4. Qualification of the staff
Qualified personnel must be deployed for the intended use, installation and maintenance of the system. The area of responsibility, competence and supervision of the personnel must be precisely regulated by the operator.
2.4.1. Qualified electricians
Skilled electrical personnel include persons who:
-
are able to carry out work on electrical systems due to their technical training, knowledge and experience as well as knowledge of the relevant standards and regulations.
-
have been commissioned and trained by the operator to carry out work on electrical systems and equipment of the battery system.
-
are familiar with how the battery system works.
-
recognize hazards and prevent them by taking appropriate protective measures.
2.5. General information on the FENECON electrical energy storage system
The product must be positioned in such a way that sufficient room for movement can be guaranteed for service and maintenance personnel in every phase of the product’s life. The service life of the product depends on the service life and maintenance intervals carried out by qualified personnel. The service life is particularly influenced by preventive maintenance and servicing.
-
The battery modules must only be installed and the cable connections made by qualified electricians.
-
The electrical energy storage system must only be used under the specified charging/discharging conditions (see section Technical data).
-
Keep the electrical energy storage system away from children and animals.
-
Do not connect the plug contacts of the BMS box in reverse.
-
Do not short-circuit battery modules.
-
Only use the battery modules as intended.
-
Improper use can lead to overheating, explosion or fire of the battery modules.
-
-
Read the instructions for installation and operation to avoid damage due to incorrect operation.
-
The battery modules may have insufficient cell voltage after a long storage period. If this is the case, please contact the service department
-
Do not expose the battery modules to high voltages.
-
Place the battery modules on level surfaces.
-
Do not place any objects on the FENECON battery towers.
2.5.1. Environmental influences
-
Keep the electrical energy storage system away from water sources.
-
Do not immerse the electrical energy storage system in water, moisten it or touch it with wet hands.
-
Set up/store the electrical energy storage system in a cool place.
-
Do not heat the electrical energy storage system.
-
Do not expose the electrical energy storage system to open fire.
-
Do not set up or use the electrical energy storage system near open fires, heaters or high-temperature sources.
-
The heat can cause insulation to melt and the safety ventilation to be damaged. This can lead to overheating, explosion or fire on the battery modules.
-
-
No soldering work must be carried out on the electrical energy storage system. Heat introduced during soldering can damage the insulator and the safety venting mechanism and lead to overheating, explosion or fire of the battery modules.
2.5.2. Mechanical influences
-
The battery modules must not be dismantled or modified. The battery modules contain a safety mechanism and a protective device, damage to which can lead to overheating, explosion or fire of the battery modules.
-
Do not step on the electrical energy storage system.
-
Do not attempt to crush or open battery modules.
-
Do not apply any mechanical force to the electrical energy storage system.
-
The battery modules can be damaged and short circuits can occur, which can lead to overheating, explosion or fire of the battery modules.
-
-
Do not throw or drop parts of the power storage system.
-
Do not use defective or dropped battery modules.
-
-
Do not use the electrical energy storage system if changes in color or mechanical damage are detected during assembly, charging, normal operation and/or storage.
-
If the protective devices are damaged, abnormal charging currents and voltages can cause a chemical reaction in the battery modules, which can lead to overheating, explosion or even fire in the battery modules.
2.5.3. Installation, operation and maintenance
When carrying out maintenance, servicing and cleaning work, ensure that the product is switched off in a safe manner and secured against being switched on again. In addition, all instructions in these installation and service instructions must be followed. |
Always observe the following safety instructions when installing, operating or maintaining the battery modules:
-
Installation/maintenance work and making cable connections must only be carried out by qualified personnel (trained electricians).
-
During maintenance work, stand on dry insulating objects and do not wear any metal objects (e.g. watches, rings and necklaces) during maintenance work/operation.
-
Use insulated tools and wear personal protective equipment.
-
Do not touch two charged contacts with a potential difference.
-
Measure the battery voltage with a multimeter and ensure that the output voltage is 0 V in off mode.
-
If an anomaly is detected, switch off the battery tower immediately.
-
Only continue the maintenance work after the causes of the anomaly have been eliminated.
-
The battery modules can cause electric shock and burns due to high short-circuit currents.
-
Do not touch the battery module connectors (+) and (-) directly with a wire or metal object (e. g. metal chain, hairpin). Excessive current can be generated in the event of a short circuit, which can lead to overheating, explosion or fire of the battery modules.
2.5.4. Fire protection
-
Do not expose the electrical energy storage system to direct sunlight.
-
Avoid contact with conductive objects (e. g. wires).
-
Keep heat and fire sources, flammable, explosive and chemical materials away from the electrical energy storage system.
-
Explosion hazard: Do not dispose of battery modules in a fire!
2.5.5. Storage
-
Area: Fireproof indoors/outdoors with suitable weather protection.
-
Air temperature: -20 °C to 40 °C.
-
Relative humidity: max. 50 % at +40 °C.
-
Do not store battery modules (lithium iron phosphate batteries) with flammable or toxic objects.
-
Store battery modules with safety defects separately from undamaged battery modules.
Storage longer than 12 months
|
2.6. Operating resources
2.6.1. Electrolyte solution of the battery modules
-
Electrolyte solution is used in the battery modules (lithium iron phosphate).
-
The electrolyte solution in the battery modules is a clear liquid and has a characteristic odor of organic solvents.
-
The electrolyte solution is flammable.
-
The electrolyte solution in the battery modules is corrosive.
-
Do not inhale the vapors.
-
If the electrolyte solution is swallowed, induce vomiting.
-
Leave the contaminated area immediately after inhaling the vapors.
-
Eye and skin contact with leaked electrolyte solution must be avoided.
-
Contact with electrolyte solution can cause severe burns to the skin and damage to the eyes.
-
After skin contact: Immediately wash skin thoroughly with neutralizing soap and consult a doctor if skin irritation persists.
-
After eye contact: Immediately flush eye(s) with running water for 15 minutes and seek medical advice.
-
Delayed treatment can cause serious damage to health. |
2.7. Residual risk
Warning of electrical voltage Work on electrical equipment may only be carried out by qualified electricians from the manufacturer or by specially authorized, trained electricians and in compliance with the safety regulations. |
Unknown fault messages Unknown faults and attempts to rectify them can lead to damage to the product. |
All doors, emergency exits and areas around the electrical energy storage system must remain clear; do not obstruct escape routes! |
The condition of the floor outside the storage system is the responsibility of the user. However, the housing is sealed so that no electrolyte can escape. |
2.8. Behavior in emergency situations
Proceed as follows in emergency situations:
-
Disconnect the electrical energy storage system from the grid.
-
Leave the zone of danger immediately.
-
Secure the danger zone.
-
Inform the persons responsible.
-
Call a doctor if necessary.
2.9. Pictograms
Pictograms on the system indicate dangers, prohibitions and instructions. Illegible or missing pictograms must be replaced by new ones.
Pictogram | Meaning | Description |
---|---|---|
Pictogram on enclosure warning of dangerous voltage |
Pictogram on enclosure and marking of components which do not clearly indicate that they contain electrical equipment which may be a risk of electric shock. |
|
General warning sign. |
||
Battery charging hazard warning |
Pictogram on the enclosure and marking of components which do not clearly indicate that they contain electrical equipment which may be the cause of a risk due to battery charging. |
|
No open flames; fire, open sources of ignition and smoking prohibited |
Pictogram on the enclosure and marking of components which do not clearly indicate that they contain electrical equipment which may give rise to a risk from open flames, fire, open sources of ignition and smoking. |
|
Protective earth marking. |
||
Separate collection of electrical and electronic equipment. |
||
Observe instructions. |
||
Use protective headgear |
||
Use protective footwear |
||
Use protective gloves |
||
CE label |
||
Product is recyclable. |
2.10. Operating materials/equipment
2.10.1. Electrolyte solution of the battery modules
-
Electrolyte solution is used in the battery modules (lithium iron phosphate).
-
The electrolyte solution in the battery modules is a clear liquid and has a characteristic odor of organic solvents.
-
The electrolyte solution is flammable.
-
The electrolyte solution in the battery modules is corrosive.
-
Contact with electrolyte solution can cause severe burns to the skin and damage to the eyes.
-
Do not inhale the vapors.
-
If the electrolyte solution is swallowed, induce vomiting.
-
Leave the contaminated area immediately after inhaling the vapors.
-
Eye and skin contact with leaked electrolyte solution must be avoided.
-
After skin contact: Immediately wash skin thoroughly with neutralizing soap and consult a doctor if skin irritation persists.
-
After eye contact: Immediately flush eye(s) with running water for 15 minutes and seek medical advice.
-
Delayed treatment can cause serious damage to health.
2.10.2. Electrical equipment
-
Work on electrical equipment may only be carried out by qualified electricians.
-
The five safety rules must be observed for all work on electrical components:
-
Disconnect.
-
Secure against restarting.
-
Check that there is no voltage.
-
Earth and short-circuit.
-
Cover or shield neighboring live parts.
-
-
Maintenance work may only be carried out by trained specialist personnel (service personnel).
-
Before starting work, carry out visual checks for insulation and housing damage.
-
The system must never be operated with faulty or non-operational electrical connections.
-
To avoid damage, lay supply lines without crushing and shearing points.
-
Only insulated tools may be used for maintenance on uninsulated conductors and terminals.
-
Switch cabinets (e. g. inverter housing) must always be kept locked. Only authorized personnel with appropriate training and safety instructions (e. g. service personnel) should be allowed access.
-
Observe the inspection and maintenance intervals for electrical components specified by the manufacturer.
-
To avoid damage, lay supply lines without crushing and shearing points
-
If the power supply is disconnected, specially marked external circuits may still be live!
-
Some equipment (e. g. inverters) with an electrical intermediate circuit can still carry dangerous residual voltages for a certain time after disconnection. Before starting work on these systems, check that they are voltage-free.
2.11. Personal protective equipment
Depending on the work on the system, personal protective equipment must be worn:
-
Protective footwear
-
Protective gloves, cut-resistant if necessary
-
Protective eyewear
-
Protective headgear
2.12. Spare and wear parts
The use of spare and wear parts from third-party manufacturers can lead to risks. Only original parts or spare and wear parts approved by the manufacturer may be used. The instructions for spare parts must be observed. Further information can be found in the wiring diagram.
Further information must be requested from the manufacturer. |
2.13. IT security
FENECON energy storage systems and their applications communicate and operate without internet connection. The individual system components (inverters, batteries, etc.) are not directly connected to the internet or accessible from the internet. Sensitive communications via the internet are processed exclusively via certificate-based TLS encryption.
Access to the programming levels is not barrier-free and is accessible at different levels depending on the qualifications of the operating personnel. Safety-relevant program changes require additional verification.
FENECON processes energy data of European customers exclusively on servers in Germany and these are subject to the data protection regulations applicable in this country.
The software used is checked using automated tools and processes established during development in order to keep it up to date and to rectify security-relevant vulnerabilities at short notice. Updates for FEMS are provided free of charge for life.
3. Technical data
3.1. General
Description | Value/dimension | |
---|---|---|
Installation/environmental conditions |
IP classification |
IP55 |
Operating altitude above sea level |
≤ 2,000 m |
|
Installation/operating temperature — inverter |
-30 °C to +60 °C |
|
Relative humidity (operation/storage) |
50 % non-condensing (up to 90 % permissible for short periods) |
|
Battery operating temperature |
-10 °C to +50 °C |
|
Optimal operating temperature of the battery |
15 °C to +30 °C |
|
Cooling |
Adaptive fan |
|
Noise level |
65 dB |
|
Max. grid connection |
5000 A |
|
Certification/guideline |
Complete system |
CE |
Inverter |
VDE 4105:2018-11 |
|
Battery |
UN38.3 |
3.2. Technical data — FENECON Commercial 50 inverter
Description | Value/dimension | |
---|---|---|
Inverter model |
FENECON Commercial 50 |
|
DC-PV connection |
Max. DC input power |
75 kWp |
MPP Trackers |
4 |
|
Number of inputs per MPPT |
2 (MC4) |
|
Starting voltage |
200 V |
|
Max. DC operating voltage in V |
850 V |
|
Max. DC input voltage in V |
1000 V |
|
MPPT voltage range |
200 V to 850 V |
|
Rated input voltage in V |
620 V |
|
Max. input current per MPPT Input current per MPPT |
42/32/42/32 A |
|
Max. Short-circuit current per MPPT |
55/42/55/42 A |
|
AC connection |
Grid connection |
400/380 V, 3L/N/PE, 50/60 Hz |
Max. Output current |
75.8 A |
|
Max. input current Input current |
75.8 A |
|
Nominal apparent power output |
50,000 VA |
|
Max. apparent power output Apparent power output |
50,000 VA |
|
Cos (φ) |
-0.8 to +0.8 |
|
Emergency power |
Emergency power capable |
Yes, with STS box (optional) |
Network configuration |
||
Emergency power supply-capable loads |
55,000 VA (18,333 VA)* |
|
Black start |
Yes |
|
Solar recharging |
Yes |
|
Efficiency |
Max. Efficiency |
98.1 % |
European efficiency |
97.5 % |
|
General |
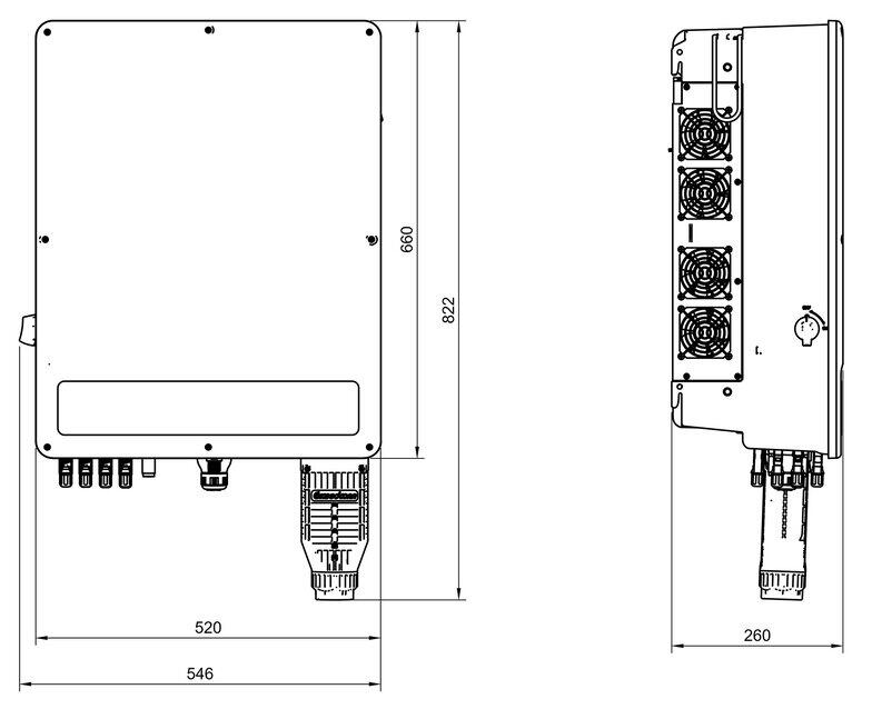
Width | Depth | Height |
520 | 260 | 660 mm |
Weight |
65 kg |
|
Topology |
not insulated |
*also in parallel mains operation
3.3. Technical data — FENECON Commercial 50 EMS box
Designation | Value/dimension |
---|---|
DC operating voltage |
224 V to 672 V |
Max. Current (battery) |
50 A |
Operating temperature |
-10 °C to 50 °C |
Protection specification |
IP55 (plugged in) |
Input voltage |
110 V to 240 V / 0.7 A / 45 Hz to 65 Hz |
Width | depth | height |
506 | 401 | 157 mm |
Weight |
12 kg |
Installation |
stackable |
3.3.2. EMS box — Pin assignment

List item | Description |
---|---|
1 |
Battery connection to the inverter (MC4-Evo stor) |
2 |
Communication output for parallel connection of several batteries |
3 |
Connection to customer network (LAN) RJ45 (network cable not included in scope of delivery) |
4 |
Communication connection for inverter, relay outputs; digital inputs (16-pin connector), analog output |
5 |
Power supply FEMS box; potential-free contacts (max. 10 A, measured) (10-pin plug) |
6 |
Earth connection |
7 |
For future applications (not assigned) |
3.4. Technical data — FENECON Commercial 50 parallel switch box
Description | Value/dimension |
---|---|
Max. operating voltage |
800 V |
Max. current (inverter) |
100 A |
Max. current (battery) Current (battery) |
50 A |
Operating temperature |
-20 °C to 40 °C |
Protection specification |
IP55 |
Width | Depth | Height |
606 | 157 | 639 mm |
Weight |
26 kg |
3.5. Technical data — FENECON Commercial 50-Extension box
Description | Value/dimension |
---|---|
DC operating voltage |
224 V to 672 V |
Max. current (battery) |
50 A |
Operating temperature |
-10 °C to 50 °C |
Protection specification |
IP55 (plugged in) |
Width | Depth | Height |
506 | 401 | 157 mm |
Weight |
9 kg |
Installation |
stackable |
3.5.2. Extension box — Terminal assignment

List item | Description |
---|---|
1 |
Battery connection to EMS box in parallel (MC4-Evo stor) |
2 |
Communication output for parallel connection of several battery towers |
3 |
Communication input for parallel connection of several battery towers |
4 |
Earthing connection |
3.6. Technical data — FENECON Commercial 50 BMS box
Designation | Value/dimension |
---|---|
Maximum operating voltage range |
224 V to 672 V |
Maximum output/input current |
50 A |
Optimal operating temperature |
15 to 30 °C |
Operating temperature range |
-20 to 55 °C |
Protection specification |
IP55 (plugged in) |
Width (incl. side panel) | Depth | Height |
506 | 401 | 143 mm |
Weight |
13 kg |
Installation |
stackable/wall mounting |
3.7. Technical data — FENECON battery module
Designation | Value/dimension |
---|---|
Usable capacity |
62.4 Ah/2.80 kWh |
Rated voltage |
44.8 V |
Output voltage range |
39.2 V to 50.4 V |
Battery operating temperature range |
-20 °C to +55 °C |
Storage temperature range (over 7 days) |
-30 °C to +60 °C |
Storage temperature range (over 30 days) |
-20 °C to +55 °C |
Storage temperature range (cumulative up to 270 days) |
-10 °C to +45 °C |
Protection specification |
IP55 (plugged in) |
Weight |
30 kg |
Installation |
stackable |
Parallel connection |
5 battery towers in parallel |
Cooling |
natural cooling |
Shipping capacity |
< 30 % SOC |
Module safety certification |
VDE 2510/IEC62619 |
UN transport test standard |
UN38.3 |
Relative humidity during storage |
5 % to 95 % |
Storage longer than 12 months
|
3.7.2. Electrical parameters of the battery modules
For battery modules 5 to 7
Parameter | Value/dimension | ||
---|---|---|---|
Number of modules |
5S |
6S |
7S |
Nominal capacity in kWh |
14.0 kWh |
16.8 kWh |
19.6 kWh |
Width incl. side panel |
506 mm |
||
Depth |
401 mm |
||
Height |
1120 mm |
1263 mm |
1406 mm |
Weight |
187 kg |
217 kg |
247 kg |
Nominal voltage |
224.0 V |
268.8 V |
313.6 V |
Output voltage range |
196 V ~ 252 V |
235.2 V ~ 302.4 V |
274.4 V ~ 352.8 V |
Maximum continuous charge/discharge power |
11.20 kW |
13.44 kW |
15.68 kW |
For battery modules 8 to 11
Parameter | Value/dimension | |||
---|---|---|---|---|
Module |
8S |
9S |
10S |
11S |
Nominal capacity |
22.4 kWh |
25.2 kWh |
28.0 kWh |
30.8 kWh |
Width incl. side panel |
506 mm |
|||
Depth |
401 mm |
|||
Height |
1549 mm |
1692 mm |
1835 mm |
1978 mm |
Weight |
277 kg |
307 kg |
3370 kg |
367 kg |
Rated voltage |
358.4 V |
403.2 V |
448.0 V |
492.8 V |
Output voltage range |
313.6 V ~ 403.2 V |
352.8 V ~ 453.6 V |
392.0 V ~ 504.0 V |
431.2 V ~ 554.4 V |
Maximum continuous charging/discharging power |
17.92 kW |
20.16 kW |
22.40 kW |
24.64 kW |
For battery modules 12 to 15
Parameter | Value/dimension | |||
---|---|---|---|---|
Module |
12S |
13S |
14S |
15S |
Nominal capacity |
33.6 kWh |
36.4 kWh |
39.2 kWh |
42.0 kWh |
Width incl. side panel |
506 mm |
|||
depth |
401 mm |
|||
Height |
2121 mm |
2264 mm |
2407 mm |
2550 mm |
Weight |
397 kg |
427 kg |
457 kg |
487 kg |
Rated voltage |
537.6 V |
582.4 V |
627.2 V |
672.0 V |
Output voltage range |
470.4 V ~ 604.8 V |
509.6 V ~ 655.2 V |
548.8 V ~ 705.6 V |
588.0 V ~ 756.0 V |
Maximum continuous charging/discharging power |
26.88 kW |
29.12 kW |
30.00 kW |
30.00 kW |
3.8. Technical data — Base
Designation | Value/dimension |
---|---|
Width (incl. side panel) | Depth | Height |
506 | 401 | 84 mm |
Weight |
6 kg |
Protection specification |
IP55 (plugged in) |
Installation |
stackable |
3.9. Technical data — Split base (optional)
Designation | Value/dimension |
---|---|
Width (incl. side panel) | Depth | Height |
1312 | 401 | 84 mm |
Weight |
11 kg |
Protection specification |
IP55 (plugged in) |
Installation |
stackable |
3.10. Technical data — Top box (with option: split base)
Benennung | Wert/Größe |
---|---|
Breite (inkl. Seitenblende) | Tiefe | Höhe |
506 | 401 | 157 mm |
Gewicht |
9 kg |
Schutzart |
IP55 (gesteckt) |
Installation |
stapelbar |
4. General description
The FENECON Commercial 50 is an electrical energy storage system that can build its own power grid for domestic or commercial use. Emergency power capabability is enabled by integrating the optional STS box into the system. Lithium iron phosphate batteries (LiFePO4) are used in this modular system for storing electrical energy.
4.1. System configuration — Overview (without emergency power)

4.1.1. Standard setup without emergency power

List item | Description |
---|---|
1 |
Grid |
2 |
Bi-directional meter |
3 |
Energy meter |
4 |
FENECON Commercial 50 battery tower |
5 |
Parallel switch box |
6 |
FENECON Commercial 50 inverter |
7 |
PV system |
8 |
Consumer load |
4.1.2. System structure as an AC system

List item | Description |
---|---|
1 |
Grid |
2 |
Bi-directional meter |
3 |
Energy meter |
4 |
3-phase sensor or with PV inverter app |
5 |
PV inverter |
6 |
PV system |
7 |
FENECON Commercial 50 battery tower |
8 |
Parallel switch box |
9 |
FENECON Commercial 50 inverter |
10 |
Consumer load |
4.1.3. System structure with additional PV generator

List item | Description |
---|---|
1 |
Grid |
2 |
Bi-directional meter |
3 |
Energy meter |
4 |
3-phase sensor or with PV inverter app |
5 |
PV inverter |
6 |
Additional PV system |
7 |
FENECON Commercial 50 battery tower |
8 |
Parallel switch box |
9 |
FENECON Commercial 50 inverter |
10 |
PV system |
11 |
Consumer load |
4.2. System design: Variants with emergency power via STS box
4.2.1. Standard setup with emergency power

Within the emergency power function, the inverter acts as its own grid former and sets up its own 3-phase system for the separate emergency power branch (see Technical data). Compared to the public grid system, the network configuration of the emergency power mode has a lower "buffer effect" with regard to load peaks, starting currents, DC components and strongly fluctuating loads. Due to the limited power of the inverter, such loads are only possible within certain limits. |
4.2.2. System with STS emergency power switchover

List item | Description |
---|---|
1 |
Grid |
2 |
Bi-directional meter |
3 |
Energy meter |
4 |
FENECON Commercial 50 battery tower |
5 |
Parallel switch box |
6 |
FENECON Commercial 50 inverter |
7 |
PV system |
8 |
STS box |
9 |
Consumer load (supplied with emergency power) |
4.2.3. System with STS emergency power switchover and additional PV generator

List item | Description |
---|---|
1 |
Grid |
2 |
Bi-directional meter |
3 |
Energy meter |
4 |
3-phase sensor or with PV inverter app |
5 |
PV inverter |
6 |
Additional PV system |
7 |
FENECON Commercial 50 battery tower |
8 |
Parallel switch box |
9 |
FENECON Commercial 50 inverter |
10 |
PV system |
11 |
STS box |
12 |
Consumer load (supplied with emergency power) |

List item | Description |
---|---|
1 |
Grid |
2 |
Bi-directional meter |
3 |
Energy meter |
4 |
3-phase sensor or with PV inverter app |
5 |
PV inverter |
6 |
PV system |
7 |
FENECON Commercial 50 battery tower |
8 |
Consumer load (supplied with emergency power) |
9 |
FENECON Commercial 50 inverter |
10 |
STS box |
11 |
Consumer load (supplied with emergency power) |
4.2.4. Required components
Depending on the system configuration, a maximum of the following components are required. When connecting up to five battery towers in parallel, ensure that the same number of battery modules are installed in each battery tower.
Amount of battery towers |
Amount of battery modules max. |
BMS box |
EMS box |
Parallel switch box |
Extension box |
2 |
30 |
1 |
1 |
1 |
1 |
3 |
45 |
1 |
1 |
1 |
2 |
4 |
60 |
1 |
1 |
1 |
3 |
5 |
75 |
1 |
1 |
1 |
4 |

5. Installation preparation
5.1. Scope of delivery
5.1.1. FENECON Commercial 50 inverter
Image | Amount | Description |
---|---|---|
![]() |
1 |
FENECON Commercial 50 inverter |
![]() |
1 |
Wall mount |
![]() |
4 |
Screw anchor with screw and washer |
![]() |
1 |
3-phase sensor at grid connection point without current transformer |
![]() |
1 |
Communication cable with RJ45 socket |
![]() |
1 |
Plug for
|
![]() |
1 |
Cover — communication port |
![]() |
10 |
MC4 plug |
![]() |
10 |
MC4 socket |
![]() |
1 |
Meter cable (10 m) |
![]() |
1 |
FEMS-cable (10 m) |
![]() |
5 |
Nuts for AC connection |
![]() |
5 |
Cable lugs for AC cables |
![]() |
1 |
2 x PIN terminal, 2-pole | 1 x PIN terminal, 6-pole |
![]() |
1 |
Cover — AC connection |
![]() |
2 |
Bolt for earthing and fixing to wall bracket |
![]() |
1 |
Cable lug for earthing |
5.1.2. Commercial EMS box
Image | Amount | Description |
---|---|---|
![]() |
1 |
Commercial EMS box |
![]() |
2 |
Side panel |
![]() |
2 |
Harting housing with cable gland (13-21 mm), multi-hole seal (4 x 8 mm) |
![]() |
1 |
Harting socket, 10-pin |
![]() |
1 |
Harting insert, 16-pin (assembled) |
![]() |
1 |
Jumper plug |
![]() |
2 |
Network connector housing |
![]() |
5 |
Filler plug (8 mm) |
![]() |
2 |
Filler plug (10 mm) |
![]() |
1 |
Battery cable set (10 m) |
![]() |
1 |
Installation and service instructions |
![]() |
1 |
Operating instructions (for the end customer) |
![]() |
1 |
Quick start guide |
5.1.3. FENECON Commercial 50 — Parallel switch box
Image | Amount | Description |
---|---|---|
![]() |
1 |
FENECON Commercial 50-Parallel switch box |
![]() |
1 |
Wall bracket |
![]() |
4 |
Screw anchor with screw and washer |
![]() |
1 |
Two DC cables (3 m) |
![]() |
1 |
Earthing kit |
5.1.4. FENECON Commercial 50-Extension-Box
Image | Amount | Description |
---|---|---|
![]() |
1 |
FENECON Commercial 50-Extension box |
![]() |
2 |
Side panel |
![]() |
1 |
Set of two DC cables (10 m) |
![]() |
1 |
Communication cable (2 m) |
5.1.5. FENECON Commercial 50 BMS box/base
Image | Amount | Description |
---|---|---|
![]() |
1 |
FENECON Commercial 50-BMS box |
![]() |
1 |
Base |
![]() |
2 |
Side panel (FENECON Commercial 50-BMS box) |
![]() |
2 |
Side panel (base) |
![]() |
4 |
Wall mounting — Mounting bracket |
![]() |
4 |
Wall mounting — Mounting bracket (wall part) |
![]() |
4 |
Bolts, M4 x 10 |
![]() |
2 |
Bolts for wall mounting, M6 x 12 |
5.1.6. FENECON Commercial 50 BMS box/split base (optional)
Image | Amount | Description |
---|---|---|
![]() |
1 |
FENECON Commercial 50 BMS box |
![]() |
1 |
Top box for split base |
![]() |
1 |
Split base |
![]() |
4 |
Side panel (FENECON Commercial 50-BMS box) |
![]() |
2 |
Side panel (split base) |
![]() |
4 |
Wall mounting — Mounting bracket |
![]() |
4 |
Wall mounting — Mounting bracket (wall part) |
![]() |
4 |
Bolts, M4 x 10 |
![]() |
2 |
Bolts for wall mounting, M6 x 12 |
5.1.7. FENECON Commercial 50 battery module
Image | Amount | Description |
---|---|---|
![]() |
1 |
Battery module |
![]() |
2 |
Side panel |
![]() |
2 |
Fixing plates |
![]() |
2 |
Bolts, M4 x 10 |
5.1.8. STS box (optional)
Image | Amount | Description |
---|---|---|
![]() |
1 |
STS box |
![]() |
1 |
STS box wall bracket |
![]() |
1 |
Set of screw anchors with screws and washers |
![]() |
1 |
Inverter-STS box communication cable |
![]() |
2 x 10 |
Nuts for AC connection |
![]() |
2 x 10 |
Cable lugs for AC connection |
![]() |
2 |
Bolts for earthing and fixing to wall bracket |
![]() |
1 |
Cable lug for earthing |
5.2. Tools required
The following tools are required for assembly of the system components:
Illustration | Description | Illustration | Description |
---|---|---|---|
![]() |
Pencil |
![]() |
Spirit level |
![]() |
Impact drill or |
![]() |
Screwdriver set |
![]() |
Meter stick |
![]() |
Side cutter |
![]() |
Allen key, 3 mm |
![]() |
Set of flat spanners |
![]() |
Crimping tool |
![]() |
Multimeter |
![]() |
Pliers for cable glands |
![]() |
Protective eyewear |
![]() |
Protective footwear |
![]() |
Dust mask |
![]() |
Rubber mallet |
![]() |
Vacuum cleaner |
![]() |
Wire stripper |
![]() |
Protective gloves |
![]() |
Torque wrench |
![]() |
Insulation stripping knife |
6. Installation
|
|
|
Suitable protective covers must be fitted! |
The following components must be installed:
-
Inverter
-
Battery tower with base, battery modules, BMS box, and FENECON Commercial 50 EMS box
-
Optional:
-
Battery tower with base, battery modules, BMS box and parallel switch box
-
-
Optional:
-
Battery tower with base, battery modules, BMS box and Extension box
-
Before installation, carefully check whether the packaging and products are damaged and whether all accessories listed in the Scope of delivery are included. If a part is missing or damaged, contact the manufacturer/dealer.
6.1. Inverter assembly
6.1.1. Safety instructions
Electric shock from live parts
|
Electric shock in the absence of overvoltage protection
|
Fire and explosion
|
Fire and explosion with deeply discharged battery modules
|
Toxic substances, gases and dusts
|
Arcs due to short-circuit currents
|
Destruction of a measuring device due to overvoltage
|
Hot surfaces
|
Weight of the inverter
|
Sand, dust and moisture |
Electrostatic charge
|
Cleaning agents
|
6.1.2. Installation conditions and distances at the installation site

-
The inverter must be installed protected from direct sunlight, rain and snow.

Installation conditions
|
6.2. Installation — FENECON Commercial 50 inverter
To install the FENECON Commercial 50 inverter on the wall, proceed as follows:
Assembly of the wall bracket
![]() |
|
![]() |
|
![]() |
|
![]() |
|
6.3. Installation — Parallel switch box
6.3.1. Parallel switch box — Safety instructions
|
|
|
|
Please refer to the supplier documentation for the inverter. |

-
The parallel switch box must be installed away from direct sunlight, direct rain and snow.
-
The place of installation must be ventilated permanently.
-
Maintain a clearance of at least 300 mm to the side, above and below the parallel switch box (cable ducts are not included here).
-
Maintain a clearance of at least 500 mm from the front of the parallel switch box.
Proceed as follows to install the parallel switch box on the wall:
![]() |
|
![]() |
|
![]() |
|
6.4. Installation — STS box (optional)
6.4.1. STS box — Safety instructions
|
|
|
|

-
Install the STS box away from direct sunlight, direct rain and snow.
-
The place of installation must be ventilated permanently.
-
Maintain a clearance of at least 100 mm to the side of the STS box (cable ducts are not measured here).
-
Maintain a clearance of at least 250 mm above and a clearance of at least 450 mm below the STS box.
-
Maintain a clearance of at least 100 mm from the front of the STS box.
Proceed as follows to install the STS box on the wall:
![]() |
|
![]() |
|
![]() |
|
6.5. Installation — Battery tower 1 with FEMS box
6.5.1. Safety instructions
Electric shock from live parts
|
Electric shock in the absence of overvoltage protection
|
Fire and explosion
|
Fire and explosion with deeply discharged battery modules
|
Toxic substances, gases and dusts
|
Arcs due to short-circuit currents
|
Destruction of a measuring device due to overvoltage
|
Hot surfaces
|
Weight of the battery modules
|
Sand, dust and moisture
|
Electrostatic charging
|
Cleaning agents
|
Installation site
|
Installation
|
6.5.2. Conditions at the installation site
Indoor or outdoor installation
We recommend installing the FENECON Commercial 50 battery towers in a well-ventilated room without external heat sources. However, the battery towers can also be installed outdoors protected from the weather (e. g. garage).
Installation at 2000 m above sea level and in unventilated locations is not permitted.
Also inadmissible installation sites:
-
those with an explosive atmosphere.
-
Places where flammable or oxidizing substances are stored.
-
Wet rooms.
-
Places where salty moisture, ammonia, corrosive vapors or acid can penetrate the system.
The electrical energy storage system should also be inaccessible to children and animals.
6.5.3. Installation conditions and distances at the installation site

-
Battery towers must be installed away from direct sunlight and protected from direct rain and snow.
-
In conditions outside the optimum temperature range, the performance of the batteries is reduced. (optimum temperature range: +15 °C to +30 °C)

-
A lateral clearance of 300 mm from a wall and 300 mm between two battery towers is recommended.
-
Clearances of 300 mm from a wall are recommended at the front.
-
A distance of 200 mm from the ceiling is recommended.
Falling below the recommended clearances can make installation more difficult and may result in earlier derating. |
6.5.4. Installation — Battery towers with FENECON Commercial 50 EMS box and FENECON Commercial 50 Extension box
Proceed as follows to set up a battery tower:
![]() |
|
![]() |
|
![]() |
|
A maximum of 15 battery modules can be stacked on one base. |
![]() |
|
Electric shock
|
![]() |
|
![]() |
|
![]() |
|
![]() |
|
![]() |
|
![]() |
|

6.6. Installation — Battery tower on split base
The split base can only be used with battery modules with item number FEH021. |
The split base is used for a larger footprint installation of a battery tower, which reduces its height and enables installation in rooms with low ceilings. |
Proceed as follows to set up a battery tower with a split base:
![]() |
|
![]() |
|
![]() |
|
|
![]() |
|
Electric shock
|
![]() |
|
||
![]() |
|
||
![]() |
|
||
![]() |
|
||
![]() |
|
||
![]() |
|
||
![]() |
|

6.7. Explanation of the "zero feed-in" function
Connection and operation of electrical energy storage systems on the low-voltage grid in accordance with VDE-FNN Note 07/2024 — Requirements for the energy flow direction sensor EnFluRi (section 4.3) and zero feed-in (section 4.4).
FENECON GmbH hereby declares that the inverters listed in the following table in combination with the respective energy meters specified fulfill the above requirements:
Inverter |
Description |
Internal Energy Meter |
Home Energy Meter |
3-phase sensor without current transformer |
---|---|---|---|---|
Home 6 |
FINV-6-2-DAH |
(optional) |
||
Home 10 (Gen. 1) |
FHI-10-DAH |
|||
Home 10 (Gen. 1) |
FHI-10-DAH 16A |
|||
Home 10 |
FINV-10-2-DAH |
(optional) |
||
Home 15 |
FINV-15-2-DAH |
(optional) |
||
Home 20 |
FHI-20-DAH |
(optional) |
||
Home 30 |
FHI-29,9-DAH |
(optional) |
||
Commercial 50 (Gen. 3) |
FINV-50-1-DAH |
6.7.1. Configuration for zero feed-in via the FENECON Energy Management System
The inverters listed above can be configured via the FENECON Energy Management System so that the PV energy generated is used entirely by the user and is not fed-in to the public grid.
To do this, the Maximum feed-in power setting in the commissioning wizard must be set to 0 watts.
6.7.2. Notes on the zero feed-in function:
-
If FENECON inverters are used, deviations of < 1 % per phase may occur.
-
The accuracy of the zero feed-in depends on the power factor of the connected consumer loads.
-
A high proportion of reactive power, especially in the form of harmonics, can negatively affect the accuracy of the active power measurement.
6.7.3. Validity of the declaration:
This declaration applies to all identical inverters. It loses its validity if:
-
changes have been made to the device,
-
the connection is made improperly,
-
the installation was not carried out in accordance with the installation and service instructions, or
-
the inverter is operated with an external generator.
6.8. Electrical installation
6.8.1. Earthing the inverter and battery towers
![]() |
|
![]() |
|
![]() |
|
![]() |
|
The cross-section of the earthing must be at least 10 mm2. |
6.9. Approved network configurations for connecting the FENECON Commercial 50

6.9.1. Connection and wiring of the AC circuit (without emergency power)

List item | Description |
---|---|
1 |
FENECON Commercial 50 inverter |
2 |
Inverter fuse protection, 3-pole1 |
3 |
Fuse protection maximum C6 or C10, 1-pole |
4 |
FENECON Commercial 50 battery tower |
5 |
Fuse protection for consumer loads (no emergency power) |
6 |
Equipotential bonding bar |
7 |
Bi-directional meter (energy supply company) |
8 |
Grid |
9 |
Consumer loads (not supplied with emergency power) |
1 In addition, the currently valid national regulations and the specifications of the relevant grid operator must be observed. (If an RCD is required by the grid operator, an RCD type A with a tripping current of 300 mA is recommended; at 30 mA, unwanted shutdowns may occur).
![]() |
|
||
![]() |
|
||
Section |
Description |
Lengths |
|
1 |
Outer diameter |
< 44 mm |
|
2 |
Length — stripped cable |
90 to 120 mm |
|
3 |
Length — stripped conductor |
11 to 13 mm |
|
4 |
Cross-section — conductor |
< 50 mm2 |
|
![]() |
|
||
![]() |
|
||
![]() |
|
6.9.2. Connection and wiring of the AC circuit (with STS box/emergency power)

List item | Description |
---|---|
1 |
FENECON Commercial 50 inverter |
2 |
Inverter fuse protection, 3-pole1 |
3 |
Fuse protection maximum C6 or C10, 1-pole |
4 |
FENECON Commercial 50 battery tower |
5 |
Parallel switch box |
6 |
Protection of consumer loads (supplied with emergency power) with RCD type A and suitable MCBs |
7 |
Earth circuit connector |
8 |
Bi-directional meter (energy supply company) |
9 |
Grid |
10 |
Consumer load (supplied with emergency power) |
1 In addition, the currently valid national regulations and the specifications of the relevant grid operator must be observed. (If an RCD is required by the grid operator, an RCD type A with a tripping current of 300 mA is recommended; at 30 mA, unwanted shutdowns may occur).
6.9.3. Connection and wiring of the AC circuit (with STS box)
As in the previous schematic diagram, the STS box must be connected to the grid.
![]() |
|
||
![]() |
|
||
Section |
Description |
Lengths |
|
1 |
Outer diameter |
< 44 mm |
|
2 |
Length — stripped cable |
90 to 120 mm |
|
3 |
Length — stripped conductor |
11 to 13 mm |
|
4 |
Cross-section — conductor |
< 50 mm2 |
|
![]() |
|
||
![]() |
|
||
![]() |
|
||
![]() |
|
||
![]() |
|
|
The generator input is not enabled and must not be connected. Connecting it can lead to damage to the system. |
6.10. Installation — Energy meter
6.10.1. Connection overview

List item | Description |
---|---|
1 |
Bi-directional meter (energy supplier) |
2 |
Inverter fuse protection, 3-pole1 |
3 |
Fuse protection of the consumer loads (no emergency power) with RCD type A and suitable MCBs |
4 |
Consumption (not supplied with emergency power) |
5 |
Transformer — primary current: 200 to 5000 A; secondary current: 5 A (not included) (directly behind grid operator meter) |
6 |
Extension with 3-phase sensor without current transformer at grid connection point |
7 |
Fuse protection of the energy meter (recommended) B6, 3-pole |
1In addition, the currently valid national regulations and the specifications of the associated grid operator must be complied with.
6.10.2. Selecting suitable current transformers
The 3-phase sensor can be used with all manufacturers of current transformers. Only the required parameters must be observed:
|
200 A — 5000 A |
|
|
5 A |
|
|
0.5 (or better) |
You can decide about the dimensions of the transformers and the hole diameter for cables or copper rails.
Recommendation: The Socomec 192T2020 current transformer. This is a transformer with a primary current of 200 A and a hole diameter of 21 mm.
Selecting the correct primary rated current is very important for measurement accuracy. A rated current that is equal to or slightly greater than the fuse protection at the grid connection point is recommended. To avoid measurement inaccuracies, the hole diameter of the measuring transformer should be selected to match the cable cross-section or the copper busbar. |
6.10.3. Electrical installation
![]() |
|
![]() |
|
![]() |
|
image::other/zz/home/h2030_3-phase-sensor/electrical_installation_step6.jpg[pdfwidth=90%, width=900, align="center", Anschlussdiagramm] image::other/zz/home/h2030_3-phase-sensor/electrical_installation_step7.jpg[pdfwidth=90%, width=900, align="center", Pinbelegung -- Stecker -- Wandler] |
|
![]() |
|
![]() |
|
6.10.4. AC connection of the FENECON Commercial 50 EMS box
-
An external 230 V power supply is required to supply the FENECON Commercial 50 EMS box.
-
The purpose of this is to avoid straining the empty battery with additional consumer loads. This can occur particularly in winter when there is no sunshine or when there is snow on the PV system.
![]() |
|
![]() |
|
![]() |
|
![]() |
|
![]() |
|
6.10.5. DC cable from the battery tower to the inverter
![]() |
|
![]() |
|
The DC plugs used on the battery side are not compatible with standard MC4 plugs. |
6.10.6. Connection and cabling of PV system
![]() |
The various PV strings can be connected directly to the PV inputs on the inverter. |
![]() |
Type 2 overvoltage protection is integrated in the inverter. |
6.10.7. Communication between inverter and EMS box
![]() |
|
![]() |
|
![]() |
|
![]() |
|
If controllable consumer loads have been installed and one of the following FEMS extensions has been purchased, the following two steps can be neglected for the time being.
|
![]() |
|
![]() |
|
6.10.8. Communication between the batteries
![]() |
|
6.10.9. Communication with the customer network
![]() |
|
If the battery tower is installed indoors, this point can be skipped and the network cable can be connected directly. |
![]() |
|
![]() |
|
The system does not have a WiFi function. |
6.10.10. Plugging the internal input (optional)
![]() |
Optionally, a network connector housing with filler plug (included in the scope of delivery) can be used as a cover for the internal connection. The network connector housing and the filler plug must be fitted beforehand. |
An IP classification is only guaranteed if the corresponding plugs are locked on all connections. |
7. Capacity expansion of the system
The capacity can also be extended at a later date, there is no time limit.
It will not reach full capacity with the new battery module, as the new module will equalize with the old modules.
7.1. Capacity expansion of the battery tower
by one or more battery modules
If the electrical energy storage system is expanded with additional battery modules after commissioning, proceed as follows:
After a capacity expansion, the commissioning protocol must be carried out again. |
![]() |
|
![]() |
|
![]() |
|
![]() |
|
![]() |
|
![]() |
|
The capacity can also be extended at a later date; there is no time limit here. You will not reach the full capacity with the new battery module, as the new module adapts to the old modules.
If the battery tower is extended by additional battery modules after several weeks or months, the following procedure must be followed:
29-30 % SoC |
|
![]() |
|
![]() |
|
![]() |
|
![]() |
|
![]() |
|
|
7.2. Capacity expansion of the system
by one or more battery towers
The capacity of the system can be subsequently expanded by one or more battery towers with the same capacity. There is no time limit here.
The full capacity is not achieved with new battery modules, as the new modules become similar to the old modules.
Proceed as follows before the extension:
![]() |
|
![]() |
|
![]() |
|
![]() |
|
|
8. FEMS extensions
For the following FEMS extensions, the integrated relays can be used directly on the (first) battery tower.
Various pins on the Harting plugs are provided for this purpose.
-
Harting plug 10-pin: 3 x free relay channels (max.: 230 V; 10 A)
-
Harting plug 16-pin: 2 x control contacts (max.: 24 V; 1 A)
-
3 x digital input for ripple control receiver
-
1 x digital input for § 14a
-
1 x analog output (0-10 V)
-
It may not be possible to connect and operate all apps at the same time.
For more information on the following apps, please visit our homepage.
If the integrated relays are not sufficient, an external 8-channel relay board can be connected via Ethernet. |
![]() |
The pin assignment of the Harting plug (10-pin) is shown in detail below. |
Item | Description |
---|---|
1 |
230 V supply for internal components |
2 |
Relay 1 (230 V; 10 A) |
3 |
Relay 2 (230 V; 10 A) |
4 |
Relay 3 (230 V; 10 A) |
5 |
Neutral conductor connection (required for integrated meter) |
6 |
PE connection |
![]() |
The pin assignment of the Harting plug (16-pin) is shown in detail below. |
Item | Description |
---|---|
1 |
RS485 connection — Inverter |
2 |
RS485 connection — External devices |
3 |
Analog output (0 to 10 V) |
4 |
12 V DC (12 V; GND) |
5 |
3 x digital inputs |
6 |
Digital input for § 14a |
7 |
Relay 5 (24 V; 1 A) |
8 |
Relay 6 (24 V; 1 A) |
9 |
PE connection |
8.1. Connection of a heat pump via "SG-Ready"
The integration of an "SG-Ready" (smart grid-ready) heat pump is an advanced form of sector coupling of electricity and heat - often also referred to as a "power-to-heat" application. The control system ensures that the heat pump slightly overheats the thermal energy storage at times when cheap (solar) electricity is available in order to save electrical energy at times when there is no cheap surplus electricity.
![]() |
|
Once the components have been installed, the app still needs to be installed. |
8.2. Connection of a heating element with a maximum of 6 kW
The integration of an electric heating element is the simplest and cheapest form of sector coupling of electricity and heat — often also called a "power-to-heat" application.
If the capacity of the electrical energy storage is exhausted, self-generated energy must be fed into the public grid with low remuneration. In these cases, it often makes sense to use the surplus electricity for water heating (e. g. for hot water buffer tanks, pool heating, etc.). In this way, other energy sources (e. g. wood or oil) can be saved.
![]() |
|
Care must be taken to ensure that three different phases are used. If only one phase is used, damage may occur. |
Once the components have been installed, the app still needs to be installed. |
Manual mode is only suitable for temporary operation. For permanent operation, the external relay control must be used. |
8.3. Control of a heating element greater than 6 kW
(control via external relay)
The integration of an electric heating element is the simplest and cheapest form of sector coupling of electricity and heat — often also called a "power-to-heat" application.
If the capacity of the electrical energy storage is exhausted, self-generated energy must be fed into the public grid with low remuneration. In these cases, it often makes sense to use the surplus electricity for water heating (e. g. for hot water buffer tanks, pool heating, etc.). In this way, other energy sources (e. g. wood or oil) can be saved. The externally installed relays must be designed according to the installed power of the installed heating element.
![]() |
|
![]() |
|
![]() |
|
Once the components have been installed, the app still needs to be installed. |
8.4. Control of a CHP unit
The integration of a Combined Heat and Power unit (CHP) into electrical energy management is an advanced form of sector coupling of electricity and heat.
This enables the application of the CHP unit as an electrical generator that is independent of the time of day and weather conditions. The CHP unit is given a switch-on signal to produce electricity when the storage unit’s charge level is low. This is useful, for example, if the battery capacity is not sufficient to cover electricity consumption at night. This avoids the need of purchasing expensive electricity from the grid.
When the battery is charging, this signal is stopped again to prevent the CHP electricity from being fed into the grid unnecessarily.
![]() |
|
Once the components have been installed, the app still needs to be installed. |
8.5. Additional AC meter
-
If additional meters have been installed for monitoring other consumer loads or generators, these must be integrated into the circuit in accordance with the manufacturer’s instructions.
-
The communicative integration is shown below using a 3-phase sensor without a current transformer as an example.
-
Only meters approved by FENECON can be integrated.
-
The first generation meter is always integrated with Modbus ID 6. All others in ascending order. The baud rate is 9600.
![]() |
|
![]() |
For example SOCOMEC E24
|
![]() |
Example: KDK 4PU
|
If several meters are to be installed, they can be connected in series for communication purposes. For this purpose, the first meter can be bridged to the second, etc. The Modbus address must be set in ascending order. |
Once the components have been installed, the app still needs to be installed.
|
8.6. Activation of the app in the FEMS App Center
After installing the hardware FEMS extension, it still needs to be activated in the App Center. To do this, proceed as follows:
![]() |
|
![]() |
|
![]() |
|
![]() |
|
![]() |
|
![]() |
|
![]() |
|
|
|
|
8.7. Installation of further FEMS Apps
When you ordered the FEMS App, you received a 16-digit license key. You can use this license key to redeem the app independently in the FEMS App Center.
![]() |
|
![]() |
|
![]() |
|
![]() |
|
![]() |
|
![]() |
|
![]() |
|
![]() |
|
![]() |
|
![]() |
|
9. External control of the inverter
There are various ways to override the inverter from external devices.

9.1. Rundsteuerempfänger am AC-Ausgang
The inverter can be controlled directly via a ripple control receiver. The following plugs supplied with the inverter are required for this.
![]() |
|
![]() |
|
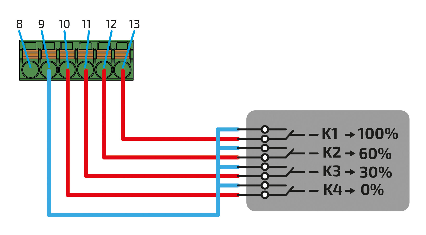
The active power of the FENECON Commercial 50 inverter can be controlled directly by the energy supply company (grid operator) via a ripple control receiver (RCR).
The behavior of the inverter in the various control stages can be described as follows.
-
100 % → standard signal, inverter works without restrictions (50 kW)
-
60 % → Inverter output power is reduced to 60 %. (30 kW)
-
30 % → Inverter output power is reduced to 30 %. (15 kW)
-
0 % → Inverter output power is reduced to 0 %. (0 kW)
If other inverters are used, these must also be connected separately to the RCR; how exactly depends on the grid operator and the RCR used.
In the event of a curtailment to 0 %, the grid feed-in of the inverter is stopped completely, i.e. the consumer loads are supplied completely from the grid. |
![]() |
|
![]() |
|
![]() |
|
![]() |
|
![]() |
|
9.2. Rundsteuerempfänger auf Netzanschlusspunkt
Das System kann direkt über den Rundsteuerempfänger (RSE) angesteuert werden.
Beachten Sie hierbei die Vorgaben Ihres Netzbetreibers bei Anschluss des externen Funkrundsteuerempfängers. |
If other inverters are used, these must also be connected separately to the RCR; how exactly depends on the grid operator and the RCR used.
Das Verhalten des Wechselrichters in den verschiedenen Regelstufen kann wie folgt beschrieben werden:
-
100 % → Standardsignal, Wechselrichter arbeitet ohne Einschränkungen (50 kW).
-
60 % → Einspeiseleistung am Netzanschlusspunkt wird auf 60 % reduziert (30 kW).
-
30 % → Einspeiseleistung am Netzanschlusspunkt wird auf 30 % reduziert (15 kW).
-
0 % → Einspeiseleistung am Netzanschlusspunkt wird auf 0 % reduziert (0 kW).
Beim Anschluss an die FEMS-Box sind folgende Kontakte im Hartingstecker zu verbinden:

Bei der Inbetriebnahme ist bei Externe Limitierungen der dynamische Rundsteuerempfänger auszuwählen:

Der Rundsteuerempfänger regelt jetzt die Netzlimitierung auf den Netzanschlusspunkt ab und nicht mehr auf den AC-Ausgang. Somit ist bei einer Netzlimitierung auch ein Beladen der Batterie sowie ein Versorgen der Verbraucher mittels PV-Erzeugung möglich.

9.3. Remote shutdown
The inverter can be disconnected from the grid when remote disconnection is activated, e. g. via a central grid and plant protection. One of the following plugs supplied with the inverter is required for this.
![]() |
|
![]() |
|
The emergency power output is still active (if activated) and supplies the emergency power to the consumer loads. |
![]() |
|
![]() |
|
![]() |
|
![]() |
|
This method can also be used to connect P,ave monitoring. |
9.4. § 14a of the Energy Industry Act (EnWG)
The Inverter can be limited to a maximum reference power of 4.2 kW. The digital input of the EMS must be assigned for this.
![]() |
|
10. Troubleshooting
10.1. Errors in Online Monitoring
The system status can be checked after logging in at the top right using the color of the symbol. A green tick indicates that everything is OK, an orange exclamation mark indicates a warning (Warning) and a red exclamation mark indicates an error (Fault).
10.1.2. Troubleshooting
![]() |
You can get a detailed overview of an existing warning or error by clicking on the exclamation mark in the top right-hand corner. |
![]() |
The scroll bar can be used to examine the origin of the warning or error in more detail. |
![]() |
Clicking on the icon (down arrow) displays a more detailed error description depending on the error. |
In the example above, an incorrect reference for the network counter was intentionally entered for test purposes, which is why the controller fails to run.
![]() |
Under certain circumstances it can happen that the FEMS is not accessible and the adjacent error message appears. |
If the FEMS is offline, follow the steps displayed below the message.
10.2. Battery tower
10.2.1. Fault display
Faults are displayed on the BMS box via a red LED.
The various errors are indicated by LED codes.
Memory status | Memory info | LEDs | |||||
---|---|---|---|---|---|---|---|
blue/red |
1 |
2 |
3 |
4 |
|||
Bootloader |
|||||||
Start |
Master/Slave |
||||||
Parallel switch box |
|||||||
Extension-Box |
|||||||
Check mode |
Individual or parallel connection |
||||||
SoC display |
|||||||
Charging |
0 % bis 25.0 % SoC |
||||||
25.1 % bis 50.0 % SoC |
|||||||
50.1 % bis 75.0 % SoC |
|||||||
75.1 % bis 99.9 % SoC |
|||||||
100 % SoC |
|||||||
Discharging and standby |
100%-75.1% |
||||||
75.0%-50.1% |
|||||||
50.0%-25.1% |
|||||||
25.0%-0% |
|||||||
Error |
Overvoltage |
||||||
Undervoltage |
|||||||
Overtemperature |
|||||||
Undertemperature |
|||||||
Overcurrent |
|||||||
SoH too low |
|||||||
Int. comm. |
|||||||
Ext. comm. |
|||||||
Parallel address error |
|||||||
Module address error |
|||||||
BMS box fuse |
|||||||
Module fuse |
|||||||
Contact error |
|||||||
Insulation error |
|||||||
BMS error |
Blue, permanently on |
|
Blue, blinking |
|
Blue, flashing quickly |
|
Red, permanently on |
10.2.2. Troubleshooting
If faults cannot be rectified or in the event of faults that are not included in the fault list, the FENECON Service must be contacted. See section Service.
10.3. Fault list
Component | Disturbance | Measure |
---|---|---|
Battery module |
The battery module has become wet |
Do not touch |
Battery module |
The battery module is damaged |
A damaged battery module is dangerous and must be handled with the utmost care. |
10.4. Service
The FENECON service must be contacted in the event of system faults:
Phone: +49 (0) 9903 6280-0
E-mail: service@fenecon.de
Our service hours:
Mon. to Thurs. 08:00 to 12:00 h | 13:00 to 17:00 h
Fri. 08:00 to 12:00 h | 13:00 to 15:00 h
11. Technical maintenance
11.1. Tests and inspections
When carrying out inspection work, ensure that the product is in a safe condition. Improperly performed inspections can have serious consequences for people, the environment and the product itself. |
Inspection work must only be carried out by trained and qualified specialists. |
The maintenance instructions of the component manufacturer must be observed for all individual components. |
Check the product and the cables regularly for visible external damage. If components are defective, contact the FENECON Service. Repairs must only be carried out by a qualified electrician.
11.2. Cleaning
Cleaning agents: The use of cleaning agents can damage the electrical energy storage unit and its parts.
It is recommended that the electrical energy storage unit and all its parts are only cleaned with a cloth moistened with clean water.
The entire product must be cleaned regularly. Only suitable cleaning agents may be used for this purpose. |
11.3. Maintenance work
No regular maintenance work needs to be carried out on the system, but check the status of your electrical energy storage system regularly.
The capacity guarantee applies if the capacity of a battery module falls below 70 % of the amount of energy shown as usable capacity before reaching 6,000 full cycles on the battery output side (DC) if a 2.2 kWh battery module has a capacity of less than 1.54 kWh. For the FENECON Home 6, 10 & 15 and FENECON Home 20 & 30 models, the amount of energy falls below 70 % of the usable capacity if a 2.8 kWh battery module has a capacity of less than 1.96 kWh. |
12. Information for fire departments when handling FENECON Home and Commercial battery energy storage systems
The FENECON Home and Commercial systems operate in the low-voltage range, which means that they are operated with voltages of less than 1,500 volts direct current (DC) and less than 1,000 volts alternating current (AC).
It may be useful to install an additional switch that disconnects the building from the emergency power supply. This makes it easier for the fire department to act safely and quickly in an emergency.

For a precise procedure for emergency services, it is recommended to ask the relevant fire department schools and request the corresponding information sheets and pocket cards for battery storage systems.
14. Transportation
This section contains information on external and internal transportation of the product.
Transportation is the movement of the product by manual or technical means.
-
Only use suitable and tested lifting gear and hoists for transportation!
Risk due to lifted Loads! |
Check that the parts and outer packaging are in perfect condition. |
See for yourself that
|
Notes:
|
Legal regulations |
15. Dismantling and disposal
15.1. Prerequisites
-
The power supply to the Battery energy storage unit is interrupted and secured against being switched on again.
Sharp and pointed edges
|
15.2. Dismantling
-
The electrical Energy storage system must only be dismantled by authorized electricians.
-
Dismantling work must only be carried out when the system has been taken out of operation.
-
Before starting disassembly, all components to be removed must be secured against falling, tipping over or moving.
-
Dismantling work must only be carried out when the system is shut down and only by service personnel.
-
The dismantling instructions of the component manufacturers (see appendix, Other applicable documents) must be observed.
-
The current laws, regulations and standards must be observed when transporting the battery modules (e.g. Dangerous Goods Transportation Act - GGBefG).
15.3. Disposal
-
Das FENECON-Speichersystem darf nicht im normalen Hausmüll entsorgt werden.
-
Das FENECON-Speichersystem ist RoHS- und REACH-konform.
-
Disposal of the product must comply with local regulations for disposal.
-
Avoid exposing the battery modules to high temperatures or direct sunlight.
-
Avoid exposing the battery modules to high humidity or corrosive atmospheres.
-
Dispose of the electrical energy storage system and the batteries it contains in an environmentally friendly manner.
-
Contact FENECON GmbH to dispose of the used batteries.
|