FENECON Commercial 100
1. Informationen zu dieser Anleitung
Das Personal muss diese Betriebsanleitung vor Beginn aller Arbeiten sorgfältig gelesen und verstanden haben.
1.1. Hersteller
FENECON GmbH
Gewerbepark 6
94547 Iggensbach
Deutschland
Telefon: +49 (0) 9903 6280 0
Fax: +49 (0) 9903 6280 909
E-Mail: service@fenecon.de
Internet: www.fenecon.de
1.2. Formelles zur Betriebsanleitung
© FENECON GmbH, 2026
Alle Rechte vorbehalten.
Nachdruck, auch auszugsweise, ist nur mit Genehmigung der Firma FENECON GmbH gestattet.
1.3. Version/Revision
| Version/Revision | Änderung | Datum | Name |
|---|---|---|---|
2026.03.01 |
Veröffentlichung auf docs.fenecon.de |
03.2026 |
FENECON PM |
1.4. Darstellungskonventionen
|
||
|
||
|
||
|
1.5. Aufbau von Warnhinweisen
Warnhinweise schützen bei Beachtung vor möglichen Personen- und Sachschäden und stufen durch das Signalwort die Größe der Gefahr ein.
|
Quelle der Gefahr
|
Gefahrenzeichen
Das Gefahrenzeichen kennzeichnet Warnhinweise, die vor Personenschäden warnen.
Quelle der Gefahr
Die Quelle der Gefahr nennt die Ursache der Gefährdung.
Mögliche Folgen bei Nichtbeachtung
Die möglichen Folgen bei Nichtbeachtung des Warnhinweises sind z. B. Quetschungen, Verbrennungen oder andere schwere Verletzungen.
Maßnahmen/Verbote
Unter Maßnahmen/Verbote sind Handlungen aufgeführt, die zur Vermeidung einer Gefährdung erfolgen müssen (z. B. Antrieb stillsetzen) oder die zur Vermeidung einer Gefährdung verboten sind.
1.6. Begriffe und Abkürzungen
Folgende Begriffe und Abkürzungen werden in der Betriebsanleitung verwendet:
| Begriff/Abkürzung | Bedeutung |
|---|---|
AC |
Alternating Current — Wechselstrom |
BHKW |
Blockheizkraftwerk |
BMS |
Batteriemanagementsystem |
DC |
Direct Current — Gleichstrom |
EMS |
Energiemanagementsystem |
Energy-Meter |
Stromzähler für den Wechselrichter am Netzanschlusspunkt |
FEMS |
FENECON Energiemanagementsystem |
IBN |
Inbetriebnahme |
MPPT |
Maximum Power Point Tracking Sucher für den maximalen Leistungspunkt |
NAP |
Netzanschlusspunkt |
PE |
Schutzleiter |
PV |
Photovoltaik |
RTE |
Round-Trip-Effizienz (RTE) |
SG-Ready |
Smart-Grid-Ready — Vorbereitung der Wärmepumpe zur externen Ansteuerung |
SoC |
State of Charge |
SoH |
State of Health — Alterungszustand |
VDE |
Verband der Elektrotechnik Elektronik Informationstechnik e. V. |
Widget |
Komponente des Online-Monitorings |
1.7. Lieferumfang
| Pos. | Komponente | Anzahl | Bemerkung |
|---|---|---|---|
1 |
FENECON Commercial 100 — Wechselrichter |
1 |
100 kW |
2 |
FENECON Commercial — EMS Box (inkl. FENECON Energiemanagementsystem) |
1 |
|
3 |
FENECON Commercial 50 — Parallelschaltbox |
1 |
|
4 |
FENECON Commercial — Extension Box |
1 |
optional: 2, abhängig von der Systemkonfiguration |
5 |
FENECON-BMS Box |
1 |
je Batterieturm |
6 |
FENECON-Batteriemodul |
bis zu 15 |
je Batterieturm, abhängig von der bestellten Kapazität |
7 |
FENECON-Sockel (bei FENECON-BMS-Box enthalten) |
1 |
je Batterieturm |
8 |
GoodWe Energy Meter |
1 |
FEH040 |
| Komponente | Bemerkung |
|---|---|
Betriebsanleitung FENECON Commercial 100 |
Anleitung für den Installateur |
Schnellstartanleitung FENECON Commercial |
Schnellstartanleitung für den Installateur |
Bedienungsanleitung FENECON Commercial |
Anleitung für den Benutzer/Endkunden |
Broschüre FENECON Commercial |
2. Sicherheit
2.1. Bestimmungsgemäße Verwendung
Das FENECON-Stromspeichersystem dient dem Speichern von elektrischer Energie in wiederaufladbaren Lithium-Eisenphosphat-Batteriemodulen (Beladen) und dem Bereitstellen von elektrischer Energie (Entladen). Dieser Be- und Entladeprozess erfolgt über einen angeschlossenen Wechselrichter. Die Anlage darf nur unter Einhaltung der zulässigen technischen Daten (siehe Kapitel Technische Daten) verwendet werden.
FENECON-Stromspeichersysteme bestehen aus verschiedenen Modulen. Dazu gehören insbesondere ein BMS (Batteriemanagementsystem), das FENECON Energiemanagementsystem (FEMS), Batteriemodule und Sockel. Alle Prozesse des Stromspeichersystems werden durch das FEMS überwacht und gesteuert.
Jede andere Verwendung ist keine bestimmungsgemäße Verwendung.
2.2. Vernünftigerweise vorhersehbare Fehlanwendung
Alle Anwendungen, die nicht zu den Vorgaben der bestimmungsgemäßen Verwendung zählen gelten als Fehlanwendung.
Arbeiten an unter Spannung stehenden Teilen sind generell nicht zulässig. Elektroarbeiten dürfen nur von Elektrofachkräften durchgeführt werden.
Bei allen Arbeiten an elektrischen Komponenten sind die folgenden Sicherheitsregeln einzuhalten:
-
Freischalten.
-
Gegen Wiedereinschalten sichern.
-
Spannungsfreiheit feststellen.
-
Erden und kurzschließen.
-
Benachbarte, unter Spannung stehende Teile abdecken oder abschranken.
|
Die Nichteinhaltung der Sicherheitsregeln wird als vernünftigerweise vorhersehbare Fehlanwendung betrachtet. |
Weitere Fehlanwendungen sind insbesondere:
-
unsachgemäßer Transport, Aufstellung bzw. Aufbau an einem Ort, Probebetrieb oder Betrieb durch den das System Schaden nehmen kann.
-
Veränderung der angegebenen Leistungsdaten, auch der einzelnen Komponenten.
-
Veränderung bzw. Abweichung der angegebenen Anschlusswerte.
-
funktionelle oder bauliche Veränderungen.
-
Betreiben des Produkts im fehlerhaftem bzw. defekten Zustand.
-
unsachgemäße Reparaturen.
-
der Betrieb ohne Schutzeinrichtungen oder mit defekten Schutzeinrichtungen.
-
Missachtung der Angaben der Original-Betriebsanleitung.
-
unerlaubter bzw. unautorisierter Zugriff über die Steuerung oder das Netzwerk.
-
Feuer, offenes Licht und Rauchen in der Nähe des Speichersystems.
-
unzureichende Belüftung am Aufstellort.
-
eigenmächtige Änderungen und Handlungen am Speichersystem.
-
Einsatz als mobiler Energiespeicher.
-
direkter Einsatz in einem PV-System (Eine Einbindung über ein AC-gekoppeltes Netz ist möglich).
|
Das Einspielen von Firmware-Updates über externe Quellen führt bei Systemen der FENECON-Commercial-Serie nicht zu Garantieverlust. Jedoch ist in einem solchen Fall die Funktionskompatibilität nicht bestätigt. |
2.3. Einsatzbereich — Elektromagnetische Verträglichkeit (EMV)
Das Niederspannungsbetriebsmittel ist für die Verwendung in folgenden Einsatzbereichen bestimmt:
-
Allgemeinheit (öffentlich)
Die Verwendung in anderen Einsatzbereichen ist nicht bestimmungsgemäß.
2.4. Qualifikation des Personals
Zur bestimmungsgemäßen Verwendung, Installation und Wartung der Anlage muss qualifiziertes Personal eingesetzt werden. Verantwortungsbereich, Zuständigkeit und Überwachung des Personals müssen durch den Betreiber genau geregelt sein.
2.4.1. Elektrofachpersonal
Zu Elektrofachpersonal zählen Personen, die:
-
aufgrund Ihrer fachlichen Ausbildung, Kenntnisse und Erfahrungen sowie Kenntnis der einschlägigen Normen und Bestimmungen in der Lage sind, Arbeiten an elektrischen Anlagen auszuführen.
-
vom Betreiber zum Ausführen von Arbeiten an elektrischen Anlagen und Ausrüstungen des Batteriesystems beauftragt und geschult worden sind.
-
mit der Funktionsweise des Batteriesystems vertraut sind.
-
auftretende Gefährdungen erkennen und diese durch geeignete Schutzmaßnahmen verhindern können.
2.5. Allgemein zum FENECON-Speichersystem
Das Produkt ist so zu platzieren, dass ausreichend Bewegungsraum für das Service- und Instandhaltungspersonal in jeder Lebensphase des Produkts gewährleistet werden kann. Die Lebensdauer des Produkts hängt von den Standzeiten und Wartungsintervallen ab, die vom Fachpersonal durchgeführt werden. Die Standzeit wird besonders durch eine vorbeugende Instandhaltung und Wartung beeinflusst.
-
Die Installation der Batteriemodule und die Herstellung der Kabelverbindungen dürfen nur durch Elektrofachpersonal erfolgen.
-
Das Stromspeichersystem darf nur unter den bestimmten Lade-/Entladebedingungen benutzt werden (vgl. Kapitel Technische Daten).
-
Das Stromspeichersystem von Kindern und Tieren fernhalten.
-
Die Steckkontakte der BMS-Box nicht umgekehrt anschließen.
-
Batteriemodule nicht kurzschließen.
-
Die Batteriemodule nur bestimmungsgemäß verwenden.
-
Die nicht bestimmungsgemäße Verwendung kann zu Überhitzung, Explosion oder Brand der Batteriemodule führen.
-
-
Die Anweisungen zur Installation und zum Betrieb lesen, um Schäden durch fehlerhafte Bedienung zu vermeiden.
-
Die Batteriemodule können möglicherweise nach längerer Lagerzeit über eine zu geringe Zellspannung verfügen. Sollte dies der Fall sein, wenden Sie sich an den Service
-
Die Batteriemodule keinen Hochspannungen aussetzen.
-
Die Batteriemodule auf ebenen Flächen abstellen.
-
Keine Gegenstände auf den FENECON-Batterietürmen abstellen.
2.5.1. Elementareinflüsse
-
Das Stromspeichersystem von Wasserquellen fernhalten.
-
Das Stromspeichersystem nicht in Wasser eintauchen, befeuchten oder mit nassen Händen berühren.
-
Das Stromspeichersystem an kühlen Orten aufstellen/lagern.
-
Stromspeichersystem nicht erhitzen.
-
Das Stromspeichersystem keinem offenen Feuer aussetzen.
-
Das Stromspeichersystem nicht in der Nähe von offenem Feuer, Heizungen oder Hochtemperaturquellen aufstellen oder benutzen.
-
Aufgrund der Hitze können Isolationen schmelzen und die Sicherheitsentlüftung beschädigt werden. Dies kann zu Überhitzung, Explosion oder Bränden an den Batteriemodulen führen.
-
-
Es dürfen keine Lötarbeiten am Stromspeichersystem durchgeführt werden. Während des Lötens eingebrachte Wärme kann den Isolator und den Mechanismus der Sicherheitsentlüftung beschädigen und zu Überhitzung, Explosion oder Brand der Batteriemodule führen.
2.5.2. Mechanische Einflüsse
-
Die Batteriemodule dürfen nicht zerlegt oder verändert werden. Die Batteriemodule enthalten einen Sicherheitsmechanismus und eine Schutzeinrichtung, deren Beschädigung zu Überhitzung, Explosion oder Brand der Batteriemodule führen kann.
-
Nicht auf das Stromspeichersystem treten.
-
Nicht versuchen, Batteriemodule zu quetschen oder zu öffnen.
-
Keine mechanische Gewalt auf das Stromspeichersystem einwirken lassen.
-
Die Batteriemodule können beschädigt werden und es kann zu Kurzschlüssen kommen, was zu Überhitzung, Explosion oder Brand der Batteriemodule führen kann.
-
-
Teile des Stromspeichersystems nicht werfen oder fallen lassen.
-
Defekte oder heruntergefallene Batteriemodule nicht mehr verwenden.
-
-
Das Stromspeichersystem nicht mehr verwenden, wenn während der Montage, des Ladens, des normalen Betriebs und/oder der Lagerung Farbveränderungen oder mechanische Schäden festgestellt werden.
-
Wenn die Schutzvorrichtungen beschädigt sind, können abnormale Ladeströme und -spannungen eine chemische Reaktion in den Batteriemodulen verursachen, die zu Überhitzung, Explosion bis hin zum Brand der Batteriemodule führen.
2.5.3. Installation, Betrieb und Wartung
|
Bei Instandhaltungs-, Wartungs- und Reinigungsarbeiten sicherstellen, dass das Produkt sicherheitsgerichtet abgeschaltet und gegen Wiedereinschalten gesichert ist. Zudem müssen alle Anweisungen in dieser Betriebsanleitung befolgt werden. |
Bei Installation, Betrieb oder Wartung der Batteriemodule unbedingt die folgenden Sicherheitshinweise beachten:
-
Installations-/Wartungsarbeiten und die Herstellung der Kabelverbindungen dürfen nur von Fachpersonal (Elektrofachpersonal) durchgeführt werden.
-
Bei den Wartungsarbeiten auf trockene Isoliergegenstände stellen und während der Wartungsarbeiten/des Betriebs keine Metallgegenstände (z. B. Uhren, Ringe und Halsketten) tragen.
-
Isolierte Werkzeuge benutzen und persönliche Schutzausrüstung tragen.
-
Nicht zwei geladene Kontakte mit Potentialdifferenz berühren.
-
Die Batteriespannung mit einem Multimeter messen und sicherstellen, dass die Ausgangsspannung im Aus-Modus 0 V beträgt.
-
Wenn eine Anomalie festgestellt wird, den Batterieturm sofort ausschalten.
-
Die Wartungsarbeiten erst fortsetzen, nachdem die Ursachen der Anomalie beseitigt wurden.
-
Die Batteriemodule können einen Stromschlag und durch hohe Kurzschlussströme Verbrennungen verursachen.
-
Die Batteriemodulstecker (+) und (-) nicht direkt mit einem Draht oder einem metallischen Gegenstand (z. B. Metallkette, Haarnadel) berühren. Bei Kurzschluss kann übermäßig Strom erzeugt werden, der zu Überhitzung, Explosion oder Brand der Batteriemodule führen kann.
2.5.4. Brandschutz
-
Das Stromspeichersystem nicht direktem Sonnenlicht aussetzen.
-
Den Kontakt mit leitfähigen Gegenständen (z. B. Drähten) vermeiden.
-
Hitze- und Feuerquellen, brennbare, explosive und chemische Materialien vom Stromspeichersystem fernhalten.
-
Explosionsgefahr: Batteriemodule nicht im Feuer entsorgen!
2.5.5. Lagerung
-
Bereich: Brandsicher im Innen-/Außenbereich mit geeignetem Witterungsschutz.
-
Lufttemperatur: -20 °C bis 40 °C.
-
Relative Luftfeuchtigkeit: max. 50 % bei +40 °C.
-
Batteriemodule (Lithium-Eisenphosphat-Batterien) nicht mit brennbaren oder giftigen Gegenständen lagern.
-
Batteriemodule mit Sicherheitsmängeln separat von unbeschädigten Batteriemodulen lagern.
|
Lagerung länger als 12 Monate
|
2.6. Betriebsmittel
2.6.1. Elektrolytlösung der Batteriemodule
-
In den Batteriemodulen (Lithium-Eisenphosphat) wird Elektrolytlösung eingesetzt.
-
Die Elektrolytlösung in den Batteriemodulen ist eine klare Flüssigkeit und hat einen charakteristischen Geruch nach organischen Lösungsmitteln.
-
Die Elektrolytlösung ist brennbar.
-
Die Elektrolytlösung in den Batteriemodulen ist korrosiv.
-
Die Dämpfe nicht einatmen.
-
Bei Verschlucken der Elektrolytlösung, Erbrechen auslösen.
-
Nach Einatmen der Dämpfe sofort den kontaminierten Bereich verlassen.
-
Augen- und Hautkontakt mit ausgetretener Elektrolytlösung muss vermieden werden.
-
Der Kontakt mit Elektrolytlösung kann zu schweren Verbrennungen der Haut und Schäden an den Augen führen.
-
Nach Hautkontakt: Haut SOFORT gründlich mit neutralisierender Seife waschen und bei anhaltender Hautirritation einen Arzt aufsuchen.
-
Nach Augenkontakt: Auge(n) SOFORT für 15 Minuten mit fließendem Wasser spülen und einen Arzt aufsuchen.
-
|
Durch verspätete Behandlung können schwerwiegende gesundheitliche Schäden entstehen. |
2.7. Restrisiko
|
Warnung vor elektrischer Spannung Arbeiten an elektrischen Ausrüstungen nur durch Elektrofachkräfte vom Hersteller oder durch speziell beauftragte, unterwiesene Elektrofachkräfte und unter Beachtung der Sicherheitsvorschriften durchführen lassen. |
|
Unbekannte Störmeldungen Unbekannte Störung und der Versuch der Behebung können zu Schäden am Produkt führen. |
|
Alle Türen, Notausgänge und Bereiche um das Speichersystem herum müssen frei bleiben, Fluchtwege nicht verstellen! |
|
Die Bodenbeschaffenheit außerhalb des Speichersystems ist in der Verantwortlichkeit des Nutzers. Jedoch ist das Gehäuse dicht gebaut, so dass kein Elektrolyt austreten kann. |
2.8. Verhalten in Notsituationen
In Notsituationen wie folgt vorgehen:
-
Das Stromspeichersystem vom Netz trennen.
-
Aus dem Gefahrenbereich entfernen.
-
Den Gefahrenbereich absichern.
-
Die Verantwortlichen informieren.
-
Gegebenenfalls Arzt alarmieren.
2.9. Piktogramme
Piktogramme an der Anlage weisen auf Gefahren, Verbote und Gebote hin. Unleserliche oder fehlende Piktogramme müssen durch neue ersetzt werden.
| Piktogramm | Bedeutung | Beschreibung |
|---|---|---|
Warnung vor gefährlicher elektrischer Spannung |
Piktogramm am Gehäuse, und Kennzeichnung von Komponenten, bei denen nicht klar zu erkennen ist, dass sie elektrische Betriebsmittel enthalten, die Anlass für ein Risiko durch elektrischen Schlag sein können. |
|
Allgemeines Warnzeichen |
||
Warnung vor Gefahren durch das Aufladen von Batterien |
Piktogramm am Gehäuse und Kennzeichnung von Komponenten, bei denen nicht klar zu erkennen ist, dass sie elektrische Betriebsmittel enthalten, die Anlass für ein Risiko durch das Aufladen von Batterien sein können. |
|
Keine offene Flamme; Feuer, offene Zündquelle und Rauchen verboten |
Piktogramm am Gehäuse und Kennzeichnung von Komponenten, bei denen nicht klar zu erkennen ist, dass sie elektrische Betriebsmittel enthalten, die Anlass für ein Risiko durch offene Flammen, Feuer, offene Zündquellen und Rauchen sein können. |
|
Schutzerdungskennzeichen |
||
Getrennte Sammlung von Elektro- und Elektronikgeräten |
||
Anleitung beachten |
||
Kopfschutz benutzen |
||
Fußschutz benutzen |
||
Handschutz benutzen |
||
CE-Kennzeichen |
||
Produkt ist recyclingfähig. |
2.10. Betriebsstoffe/Betriebsmittel
2.10.1. Elektrolytlösung der Batteriemodule
-
In den Batteriemodulen (Lithium-Eisenphosphat) wird Elektrolytlösung eingesetzt.
-
Die Elektrolytlösung in den Batteriemodulen ist eine klare Flüssigkeit und hat einen charakteristischen Geruch nach organischen Lösungsmitteln.
-
Die Elektrolytlösung ist brennbar.
-
Die Elektrolytlösung in den Batteriemodulen ist korrosiv.
-
Der Kontakt mit Elektrolytlösung kann zu schweren Verbrennungen der Haut und Schäden an den Augen führen.
-
Die Dämpfe nicht einatmen.
-
Bei Verschlucken der Elektrolytlösung, Erbrechen auslösen.
-
Nach Einatmen der Dämpfe sofort den kontaminierten Bereich verlassen.
-
Augen- und Hautkontakt mit ausgetretener Elektrolytlösung muss vermieden werden.
-
Nach Hautkontakt: Haut SOFORT gründlich mit neutralisierender Seife waschen und bei anhaltender Hautirritation einen Arzt aufsuchen.
-
Nach Augenkontakt: Auge(n) SOFORT für 15 Minuten mit fließendem Wasser spülen und einen Arzt aufsuchen.
-
Durch verspätete Behandlung können schwerwiegende gesundheitliche Schäden entstehen.
2.10.2. Elektrische Betriebsmittel
-
Arbeiten an elektrischen Betriebsmitteln dürfen nur durch Elektro-Fachpersonal durchgeführt werden.
-
Bei allen Arbeiten an elektrischen Komponenten sind die fünf Sicherheitsregeln einzuhalten:
-
Freischalten.
-
Gegen Wiedereinschalten sichern.
-
Spannungsfreiheit feststellen.
-
Erden und kurzschließen.
-
Benachbarte, unter Spannung stehende Teile abdecken oder abschranken.
-
-
Instandhaltungsarbeiten dürfen nur durch unterwiesenes Fachpersonal (Servicepersonal) durchgeführt werden.
-
Vor Beginn von Arbeiten Sichtkontrollen auf Isolier- und Gehäuseschäden durchführen.
-
Die Anlage darf nie mit fehlerhaften oder nicht betriebsbereiten elektrischen Anschlüssen betrieben werden.
-
Um Beschädigungen zu vermeiden, Versorgungsleitungen ohne Quetsch- und Scherstellen verlegen.
-
Zur Instandhaltung dürfen an unisolierten Leitern und Anschlussklemmen nur isolierte Werkzeuge verwendet werden.
-
Schaltschränke (z. B. Gehäuse des Wechselrichters) sind immer verschlossen zu halten. Zugang ist nur autorisiertem Personal mit entsprechender Ausbildung und Sicherheitseinweisung (z. B. Servicepersonal) zu erlauben.
-
Die von den Herstellern angegebenen Inspektions- und Wartungsintervalle für elektrische Komponenten sind einzuhalten.
-
Um Beschädigungen zu vermeiden, Versorgungsleitungen ohne Quetsch- und Scherstellen verlegen
-
Bei getrennter Stromeinspeisung können besonders gekennzeichnete Fremdstromkreise weiterhin unter Spannung stehen!
-
Manche Betriebsmittel (z. B. Wechselrichter) mit elektrischem Zwischenkreis können nach Freischaltung für eine gewisse Zeit noch gefährliche Restspannungen bevorraten. Vor Arbeitsbeginn an diesen Anlagen ist die Spannungsfreiheit zu prüfen.
2.11. Persönliche Schutzausrüstung
Abhängig von den Arbeiten an der Anlage muss persönliche Schutzausrüstung angelegt werden:
-
Sicherheitsschuhe
-
Schutzhandschuhe, gegebenenfalls schnittfest
-
Schutzbrille
-
Schutzhelm
2.12. Ersatz- und Verschleißteile
Der Einsatz von Ersatz- und Verschleißteilen von Drittherstellern kann zu Risiken führen. Es dürfen nur Originalteile oder die vom Hersteller freigegebenen Ersatz- und Verschleißteile verwendet werden. Die Hinweise zu den Ersatzteilen müssen beachtet werden. Weitere Informationen sind in dem Schaltplan enthalten.
|
Weitere Information müssen beim Hersteller angefragt werden. |
2.13. IT-Sicherheit
FENECON-Speichersysteme und deren Anwendungen kommunizieren und agieren ohne Internetverbindung. Die einzelnen Systemkomponenten (Wechselrichter, Batterien etc.) sind nicht direkt mit dem Internet verbunden oder aus dem Internet erreichbar. Sensible Kommunikationen über das Internet werden ausschließlich über zertifikatbasierte TLS-Verschlüsselungen verarbeitet.
Der Zugang zu den Programmierebenen ist nicht barrierefrei und je nach Qualifikation des Bedienpersonals auf verschiedenen Ebenen zugänglich. Sicherheitsrelevante Programmänderungen benötigen eine zusätzliche Verifikation.
FENECON verarbeitet Energiedaten europäischer Kunden ausschließlich auf Servern in Deutschland und diese unterliegen den hierzulande geltenden Datenschutzvorschriften.
Die eingesetzte Software wird durch automatisierte Tools und in der Entwicklung etablierte Prozesse geprüft, um diese auf dem aktuellen Stand zu halten und sicherheitsrelevante Schwachstellen kurzfristig zu beheben. Aktualisierungen für FEMS werden lebenslang kostenlos bereitgestellt.
3. Technische Daten
3.1. Allgemein
| Benennung | Wert/Größe | |
|---|---|---|
Installation/Umgebungsbedingungen |
IP-Klassifizierung |
IP55 |
Betriebshöhe über NN |
≤ 2.000 m |
|
Aufstell-/Betriebstemperatur — Wechselrichter |
-30 °C bis +60 °C |
|
Relative Luftfeuchtigkeit (Betrieb/Lagerung) |
50 % nicht kondensierend (kurzzeitig auch bis 90 % zulässig) |
|
Arbeitstemperatur der Batterie |
-20 °C bis +55 °C |
|
Optimale Betriebstemperatur der Batterie |
+15 °C bis +30 °C |
|
Kühlung |
adaptiver Ventilator |
|
Lautstärke |
65 dB |
|
Max. Netzanschluss |
variabel durch externe Wandler (nicht im Lieferumfang) |
|
Zertifizierung/Richtlinien |
Gesamtsystem |
CE |
Wechselrichter |
VDE 4105:2018-11 |
|
Batterie |
UN38.3 |
|
Weitere Länder |
Schweden (Registriert: Rikta Rätt), |
|
3.2. Technische Daten — FENECON Commercial 100-Wechselrichter
| Benennung | Wert/Größe | |
|---|---|---|
Wechselrichter-Modell |
FINV-100-1-DAH |
|
DC-PV-Anschluss |
Max. DC-Eingangsleistung |
200 kWp |
MPP Tracker |
8 |
|
Eingänge je MPPT |
2 (MC4) |
|
Startspannung MPPT |
200 V |
|
Max. DC-Eingangsspannung in V |
1000 V |
|
MPPT-Spannungsbereich |
160 V bis 950 V |
|
Nenn-Eingangsspannung in V |
620 V |
|
Max. Eingangsstrom je MPPT |
42 A |
|
Max. Kurzschlussstrom je MPPT |
55 A |
|
AC-Anschluss |
Netzanschluss |
400/380 V, 3L/N/PE, 50/60 Hz |
Max. Ausgangsstrom (400 V) |
139,2 A |
|
Max. Eingangsstrom (400 V) |
139,2 A |
|
Nominale Scheinleistungsausgabe |
100.000 VA |
|
Max. Scheinleistungsausgabe |
110.000 VA |
|
Cos (φ) |
-0,8 bis +0,8 |
|
Notstrom |
Notstromfähig |
Ja, mit STS-Box (optional) |
Netzform |
TN-C, TN-CS, TNS, TT |
|
Notstromversorgte Lasten |
110.000 VA (36.600 VA)* |
|
Schwarzstart |
Ja |
|
Solare Nachladung |
Ja |
|
Wirkungsgrad |
Max. Wirkungsgrad |
98,1 % |
Europäischer Wirkungsgrad |
97,7 % |
|
Allgemein |
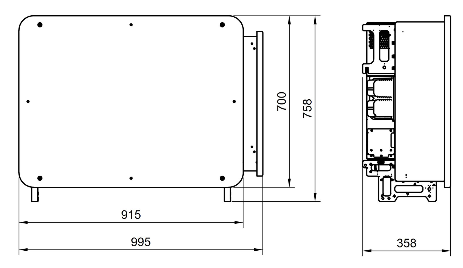
Breite | Tiefe | Höhe |
995 | 358 | 758 mm |
Gewicht |
97 kg |
|
Topologie |
nicht isoliert |
|
*auch im Netzparallelbetrieb
3.3. Technische Daten — EMS-Box
| Benennung | Wert/Größe |
|---|---|
Betriebsspannung DC |
224 V bis 672 V |
Max. Strom (Batterie) |
50 A |
Arbeitstemperatur |
-10 °C bis 50 °C |
Schutzart |
IP55 (gesteckt) |
Eingangsspannung |
110 V bis 240 V / 0,7 A / 45 Hz bis 65 Hz |
Breite | Tiefe | Höhe |
506 | 401 | 157 mm |
Gewicht |
12 kg |
Installation |
stapelbar |
3.3.2. EMS-Box — Anschlussbelegung
| Pos. | Beschreibung |
|---|---|
1 |
Batterie Anschluss zum Wechselrichter (MC4-Evo stor) |
2 |
Kommunikationsausgang für Parallelschaltung mehrerer Batterien |
3 |
Anbindung Kundennetzwerk (LAN) RJ45 (Netzwerkkabel nicht im Lieferumfang enthalten) |
4 |
Kommunikation Wechselrichter, Relaisausgänge; Digitale Eingänge (16-poliger Stecker), Analoger Ausgang |
5 |
Spannungsversorgung FEMS-Box; Potentialfreie Kontakte (max. 10 A, gemessen) (10-poliger Stecker) |
6 |
Erdungsanschluss |
7 |
Für zukünftige Anwendungen (nicht belegt) |
3.4. Technische Daten — Parallelschaltbox
| Benennung | Wert/Größe |
|---|---|
Max. Betriebsspannung |
800 V |
Max. Strom (Wechselrichter) |
100 A |
Max. Strom (Batterie) |
50 A |
Arbeitstemperatur |
-20 °C bis 45 °C |
Schutzart |
IP55 |
Breite | Tiefe | Höhe |
606 | 157 | 639 mm |
Gewicht |
27 kg |
3.5. Technische Daten — FENECON Commercial 100-Extension-Box
| Benennung | Wert/Größe |
|---|---|
Betriebsspannung DC |
224 V bis 672 V |
Max. Strom (Batterie) |
50 A |
Arbeitstemperatur |
-10 °C bis 50 °C |
Schutzart |
IP55 (gesteckt) |
Breite | Tiefe | Höhe |
506 | 401 | 157 mm |
Gewicht |
9 kg |
Installation |
stapelbar |
3.5.2. Extension-Box — Anschlussbelegung
| Pos. | Beschreibung |
|---|---|
1 |
Batterie-Anschluss zur EMS-Box parallel (MC4-Evo stor) |
2 |
Kommunikationsausgang für Parallelschaltung mehrerer Batterietürme |
3 |
Kommunikationseingang für Parallelschaltung mehrerer Batterietürme |
4 |
Erdungsanschluss |
3.6. Technische Daten — BMS-Box
| Benennung | Wert/Größe |
|---|---|
Maximaler Betriebsspannungsbereich |
224 V bis 672 V |
Maximaler Ausgangs-/Eingangsstrom |
50 A |
Optimale Betriebstemperatur |
15 bis 30 °C |
Arbeitstemperaturbereich |
-20 bis 55 °C |
Schutzart |
IP55 (gesteckt) |
Breite (inkl. Seitenblende) | Tiefe | Höhe |
506 | 401 | 143 mm |
Gewicht |
13 kg |
Installation |
stapelbar/Wandmontage |
3.7. Technische Daten — FENECON-Batteriemodul
| Benennung | Wert/Größe |
|---|---|
Nutzbare Kapazität |
62,4 Ah/2,80 kWh |
Nennspannung |
44,8 V |
Ausgangsspannungsbereich |
39,2 V bis 50,4 V |
Arbeitstemperatur Batterie |
-20 °C bis +55 °C |
Lagertemperaturbereich (über 7 Tage) |
-30 °C bis +60 °C |
Lagertemperaturbereich (über 30 Tage) |
-20 °C bis +55 °C |
Lagertemperaturbereich (bis 270 Tage kumuliert) |
-10 °C bis +45 °C |
Schutzart |
IP55 (gesteckt) |
Gewicht |
30 kg |
Installation |
stapelbar |
Parallelschaltung |
4 Batterietürme parallel |
Kühlung |
natürliche Kühlung |
Versandkapazität |
< 30 % SoC |
Modul-Sicherheitszertifizierung |
VDE 2510/IEC62619 |
UN-Transportprüfnorm |
UN38.3 |
Relative Luftfeuchtigkeit bei Lagerung |
5 % bis 95 % |
|
Lagerung länger als 12 Monate
|
3.7.2. Elektrische Parameter der Batteriemodule
Bei Anzahl der Batteriemodule von 7 bis 9
| Parameter | Wert/Größe | ||
|---|---|---|---|
Modulanzahl |
7S |
8S |
9S |
Nominale Kapazität in kWh |
20,1 |
22,9 |
25,8 |
Nutzbare Kapazität in kWh |
19,6 |
22,4 |
25,2 |
Breite inkl. Seitenblende in mm |
506 |
||
Tiefe in mm |
401 |
||
Höhe in mm |
1406 |
1549 |
1692 |
Gewicht in kg |
247 |
277 |
307 |
Nennspannung in V |
313,6 |
358,4 |
403,2 |
Ausgangsspannungsbereich in V |
274,4 ~ 352,8 |
313,6 ~ 403,2 |
352,8 ~ 453,6 |
Maximale kontinuierliche Lade-/Entladeleistung in kW |
15,7 |
17,9 |
20,2 |
Bei Anzahl der Batteriemodule von 10 bis 12
| Parameter | Wert/Größe | ||
|---|---|---|---|
Modul |
10S |
11S |
12S |
Nominale Kapazität in kWh |
28,7 |
31,5 |
34,4 |
Nutzbare Kapazität in kWh |
28,0 |
30,8 |
33,6 |
Breite inkl. Seitenblende in mm |
506 |
||
Tiefe in mm |
401 |
||
Höhe in mm |
1835 |
1978 |
2121 |
Gewicht in kg |
337 |
367 |
397 |
Nennspannung in V |
448,0 |
492,8 |
537,6 |
Ausgangsspannungsbereich in V |
392,0 ~ 504,0 |
431,2 ~ 554,4 |
470,4 ~ 604,8 |
Maximale kontinuierliche Lade-/Entladeleistung in kW |
22,4 |
24,4 |
26,9 |
Bei Anzahl der Batteriemodule von 13 bis 15
| Parameter | Wert/Größe | ||
|---|---|---|---|
Modul |
13S |
14S |
15S |
Nominale Kapazität in kWh |
37,3 |
40,1 |
43,0 |
Nutzbare Kapazität in kWh |
36,4 |
39,2 |
42,0 |
Breite inkl. Seitenblende in mm |
506 |
||
Tiefe in mm |
401 |
||
Höhe in mm |
2264 |
2407 |
2550 |
Gewicht in kg |
427 |
457 |
487 |
Nennspannung in V |
582,4 |
627,2 |
672,0 |
Ausgangsspannungsbereich in V |
509,6 ~ 655,2 |
548,8 ~ 705,6 |
588,0 ~ 756,0 |
Maximale kontinuierliche Lade-/Entladeleistung in kW |
27,5 |
27,5 |
27,5 |
| Die angegebenen Kapazitätswerte beziehen sich auf jeweils einen Batterieturm und sind auf eine Nachkommastelle gerundet. |
3.8. Technische Daten — Sockel
| Benennung | Wert/Größe |
|---|---|
Breite (inkl. Seitenblende) | Tiefe | Höhe |
506 | 401 | 84 mm |
Gewicht |
6 kg |
Schutzart |
IP55 (gesteckt) |
Installation |
stapelbar |
3.9. Technische Daten — Splitsockel (optional)
| Benennung | Wert/Größe |
|---|---|
Breite (inkl. Seitenblende) | Tiefe | Höhe |
1312 | 401 | 84 mm |
Gewicht |
11 kg |
Schutzart |
IP55 (gesteckt) |
Installation |
stapelbar |
3.10. Technische Daten — Abschlussbox (bei Option: Splitsockel)
| Benennung | Wert/Größe |
|---|---|
Breite (inkl. Seitenblende) | Tiefe | Höhe |
506 | 401 | 157 mm |
Gewicht |
9 kg |
Schutzart |
IP55 (gesteckt) |
Installation |
stapelbar |
3.11. Technische Daten — STS-Box (optionaler Notstrom)
| Benennung | Wert/Größe | |
|---|---|---|
Produktbezeichnung |
STS-210-150 |
|
Technische Daten |
Nenn-Ausgangsspannung |
400/380 V, 3L/N/PE |
AC-Nennfrequenz |
50/60 Hz |
|
Max. Leistung (Verbraucher, Netz) |
137.500 VA |
|
Max. Strom (Verbraucher, Netz) |
210 A |
|
Notstrom |
Notstromversorgte Lasten |
110.000 VA |
Schieflast |
46.200 VA |
|
Schwarzstart |
Ja |
|
Solare Nachladung |
Ja |
|
Generator |
Nennscheinleistung |
110.000 VA |
Max. Scheinleistung |
110.000 VA |
|
Nennstrom |
210 A |
|
Max. Strom |
210 A |
|
Allgemein |
Betriebstemperaturbereich |
-35 °C bis +60 °C |
Breite | Höhe | Tiefe |
680 | 620 | 165 mm |
|
Gewicht |
21 kg |
|
Schutzart |
IP54 |
|
Kühlmethode |
Intelligente Lüftung |
|
Installation |
Wandmontage |
|
4. Allgemeine Beschreibung
Der FENECON Commercial 100 ist ein durch die STS-Box notstromfähiger Stromspeicher, der ein eigenes Stromnetz für den Haushalt oder das Gewerbe aufbauen kann. In diesem modularen System zur Speicherung elektrischer Energie werden Lithium-Eisenphosphat-Batterien (LiFePO4) verwendet.
4.1. Systemkonfiguration — Gesamtübersicht (ohne Notstrom)
4.1.1. Standardaufbau ohne Notstrom
| Pos. | Beschreibung |
|---|---|
1 |
Netz |
2 |
2-Richtungszähler |
3 |
Energy-Meter |
4 |
FENECON Commercial 100-Batterieturm |
5 |
Parallelschaltbox |
6 |
FENECON Commercial 100-Wechselrichter |
7 |
PV-Anlage |
8 |
Verbraucher |
4.1.2. Systemaufbau als AC-System
| Pos. | Beschreibung |
|---|---|
1 |
Netz |
2 |
2-Richtungszähler |
3 |
Energy-Meter |
4 |
3-Phasen-Sensor oder mit PV-Wechselrichter-App |
5 |
PV-Wechselrichter |
6 |
PV-Anlage |
7 |
FENECON Commercial 100-Batterieturm |
8 |
Parallelschaltbox |
9 |
FENECON Commercial 100-Wechselrichter |
10 |
Verbraucher |
4.1.3. Systemaufbau mit zusätzlichem PV-Erzeuger
| Pos. | Beschreibung |
|---|---|
1 |
Netz |
2 |
2-Richtungszähler |
3 |
Energy-Meter |
4 |
3-Phasen-Sensor oder mit PV-Wechselrichter-App |
5 |
PV-Wechselrichter |
6 |
Zusätzliche PV-Anlage |
7 |
FENECON Commercial 100-Batterieturm |
8 |
Parallelschaltbox |
9 |
FENECON Commercial 100-Wechselrichter |
10 |
PV-Anlage |
11 |
Verbraucher |
4.2. Systemaufbau: Varianten mit Notstrom per STS-Box
4.2.1. Standardaufbau mit Notstrom
|
Innerhalb der Notstromfunktion agiert der Wechselrichter als eigener Netzbildner und baut für den separaten Notstromzweig ein eigenes 3-phasiges System (siehe Technische Daten) auf. Im Vergleich zum öffentlichen Netzsystem weist die Netzform des Notstrommodus eine geringere „Pufferwirkung“ hinsichtlich Lastspitzen, Anlaufströme, DC-Anteile und stark schwankenden Lasten auf. Aufgrund der begrenzten Leistung des Wechselrichters sind derartige Belastungen nur in gewissen Grenzen möglich. |
4.2.2. System mit STS-Notstromumschaltung
| Pos. | Beschreibung |
|---|---|
1 |
Netz |
2 |
2-Richtungszähler |
3 |
Energy-Meter |
4 |
FENECON Commercial 100-Batterieturm |
5 |
Parallelschaltbox |
6 |
FENECON Commercial 100-Wechselrichter |
7 |
PV-Anlage |
8 |
STS-Box |
9 |
Verbraucher (notstromversorgt) |
4.2.3. System mit STS-Notstromumschaltung und zusätzlichem PV-Erzeuger
| Pos. | Beschreibung |
|---|---|
1 |
Netz |
2 |
2-Richtungszähler |
3 |
Energy-Meter |
4 |
3-Phasen-Sensor oder mit PV-Wechselrichter-App |
5 |
PV-Wechselrichter |
6 |
Zusätzliche PV-Anlage |
7 |
FENECON Commercial 100-Batterieturm |
8 |
Parallelschaltbox |
9 |
FENECON Commercial 100-Wechselrichter |
10 |
PV-Anlage |
11 |
STS-Box |
12 |
Verbraucher (notstromversorgt) |
4.2.4. Systemaufbau als AC-System mit STS-Notstromumschaltung
| Pos. | Beschreibung |
|---|---|
1 |
Netz |
2 |
2-Richtungszähler |
3 |
Energy-Meter |
4 |
3-Phasen-Sensor oder mit PV-Wechselrichter-App |
5 |
PV-Wechselrichter |
6 |
PV-Anlage |
7 |
FENECON Commercial 100-Batterieturm |
8 |
Verbraucher (notstromversorgt) |
9 |
FENECON Commercial 100-Wechselrichter |
10 |
STS-Box |
11 |
Verbraucher (notstromversorgt) |
4.2.5. Erforderliche Komponenten
Abhängig von der Systemkonfiguration werden maximal folgende Komponenten benötigt. Bei einer Parallelschaltung von bis zu fünf Batterietürmen ist darauf zu achten, dass bei jedem Batterieturm gleich viele Batteriemodule verbaut werden.
Anzahl Batterietürme |
Anzahl Batteriemodule max. |
BMS-Box |
EMS-Box |
Parallelschaltbox |
Extension-Box |
2 |
30 |
1 |
1 |
1 |
1 |
3 |
45 |
1 |
1 |
1 |
2 |
4 |
60 |
1 |
1 |
1 |
3 |
5 |
75 |
1 |
1 |
1 |
4 |
5. Montagevorbereitung
5.1. Lieferumfang
5.1.1. FENECON Commercial 100-Wechselrichter
| Abbildung | Anzahl | Bezeichnung |
|---|---|---|
|
1 |
FENECON Commercial 100-Wechselrichter |
|
1 |
Wandhalterung |
|
4 |
Befestigungsmaterial |
|
1 |
3-Phasensensor am Netzanschlusspunkt ohne Stromwandler |
|
1 |
Kommunikationskabel mit RJ45-Buchse |
|
1 |
Stecker für
|
|
2 |
Abdeckung — Kommunikationsanschluss |
|
20 |
MC4-Stecker |
|
20 |
MC4-Buchse |
|
1 |
Meter-Kabel (10 m) |
|
1 |
FEMS-Kabel (10 m) |
|
5 |
Muttern für AC-Anschluss |
|
5 |
Kabelschuhe für AC-Kabel |
|
1 |
2 x PIN-Terminal, 2-polig | 1 x PIN-Terminal, 6-polig |
|
2 |
Schraube für Erdung und Fixierung an Wandhalterung |
|
1 |
Kabelschuh für Erdung |
5.1.2. Commercial-EMS-Box
| Abbildung | Anzahl | Bezeichnung |
|---|---|---|
|
1 |
Commercial-EMS-Box |
|
2 |
Seitenblende |
|
2 |
Harting-Gehäuse mit Kabelverschraubung (13-21 mm), Mehrfachdichtung (4 x 8 mm) |
|
1 |
Harting-Buchse, 10-polig |
|
1 |
Harting-Einsatz, 16-polig (zusammengebaut) |
|
1 |
Endbrücke |
|
2 |
Netzwerkgehäuse |
|
5 |
Blindstopfen (8 mm) |
|
2 |
Blindstopfen (10 mm) |
|
1 |
Batteriekabel-Satz (10 m) |
|
1 |
Betriebsanleitung |
|
1 |
Bedienungsanleitung (für den Endkunden) |
|
1 |
Schnellstartanleitung |
5.1.3. FENECON Commercial 100 — Parallelschaltbox
| Abbildung | Anzahl | Bezeichnung |
|---|---|---|
|
1 |
FENECON Commercial 100-Parallelschaltbox |
|
1 |
Wandhalterung |
|
4 |
Dübel mit Schraube und Unterlegscheibe |
|
1 |
zwei DC-Kabel (3 m) |
|
1 |
Erdungskit |
5.1.4. Extension-Box
| Abbildung | Anzahl | Bezeichnung |
|---|---|---|
|
1 |
Extension-Box |
|
2 |
Seitenblende |
|
1 |
Satz mit zwei DC-Kabeln (10 m) |
|
1 |
Kommunikationskabel (2 m) |
5.1.5. BMS-Box/Sockel
| Abbildung | Anzahl | Bezeichnung |
|---|---|---|
|
1 |
BMS-Box |
|
1 |
Sockel |
|
2 |
Seitenblende (BMS-Box) |
|
2 |
Seitenblende (Sockel) |
|
4 |
Wandbefestigung — Befestigungswinkel |
|
4 |
Wandbefestigung — Befestigungswinkel (Wand-Teil) |
|
4 |
Schrauben, M4 x 10 |
|
2 |
Schrauben für Wandbefestigung, M6 x 12 |
5.1.6. BMS-Box/Splitsockel (optional)
| Abbildung | Anzahl | Bezeichnung |
|---|---|---|
|
1 |
BMS-Box |
|
1 |
Abschlussbox für Splitsockel |
|
1 |
Splitsockel |
|
4 |
Seitenblende (BMS-Box) |
|
2 |
Seitenblende (Splitsockel) |
|
4 |
Wandbefestigung — Befestigungswinkel |
|
4 |
Wandbefestigung — Befestigungswinkel (Wand-Teil) |
|
4 |
Schrauben, M4 x 10 |
|
2 |
Schrauben für Wandbefestigung, M6 x 12 |
5.1.7. FENECON Commercial 100-Batteriemodul
| Abbildung | Anzahl | Bezeichnung |
|---|---|---|
|
1 |
Batteriemodul |
|
2 |
Seitenblende |
2 |
Befestigungsplatten |
|
|
2 |
Schrauben, M4 x 10 |
5.1.8. STS-Box (optional)
| Abbildung | Anzahl | Bezeichnung |
|---|---|---|
|
1 |
STS-Box |
|
1 |
STS-Box-Wandhalterung |
|
1 |
Satz Dübel mit Schrauben und Unterlegscheiben |
|
1 |
Kommunikationskabel Wechselrichter-STS-Box |
|
20 |
Muttern für AC-Anschluss |
|
20 |
Kabelschuhe für AC-Anschluss |
|
1 |
Schraube für Erdung |
|
1 |
Kabelschuh für Erdung |
5.2. Benötigtes Werkzeug
Zur Montage der Komponenten der Anlage wird folgendes Werkzeug benötigt:
| Abbildung | Bezeichnung | Abbildung | Bezeichnung |
|---|---|---|---|
|
Stift |
|
Wasserwaage |
|
Schlagbohrmaschine oder |
|
Schraubendrehersatz |
|
Meterstab |
|
Seitenschneider |
|
Inbusschlüssel, 3 mm |
|
Gabelschlüsselsatz |
|
Crimp-Werkzeug |
|
Multimeter |
|
Zange für Verschraubungen |
|
Schutzbrille |
|
Sicherheitsschuhe |
|
Staubmaske |
|
Gummihammer |
|
Staubsauger |
|
Abisolierzange |
|
Schutzhandschuhe |
|
Drehmomentschlüssel |
|
Abmantelmesser |
6. Montage
|
|
|
|
Es sind geeignete Schutzabdeckungen anzubringen! |
Folgende Komponenten müssen montiert werden:
-
Wechselrichter
-
Batterieturm mit Sockel, Batteriemodulen, BMS-Box, und FENECON Commercial 100-EMS-Box
-
Optional:
-
Batterieturm mit Sockel, Batteriemodulen, BMS-Box und Parallelschaltbox
-
-
Optional:
-
Batterieturm mit Sockel, Batteriemodulen, BMS-Box und Extension-Box
-
Vor der Installation sorgfältig prüfen, ob die Verpackung und die Produkte beschädigt sind und ob alle im Lieferumfang aufgeführten Zubehörteile enthalten sind. Wenn ein Teil fehlt oder beschädigt ist, wenden Sie sich an den Hersteller/Händler.
6.1. Montage Wechselrichter
6.1.1. Sicherheitshinweise
|
Elektrischer Schlag durch spannungsführende Teile
|
|
Elektrischer Schlag bei fehlendem Überspannungsschutz
|
|
Feuer und Explosion
|
|
Feuer und Explosion bei tiefentladenen Batteriemodulen
|
|
Giftige Substanzen, Gase und Stäube
|
|
Lichtbögen aufgrund von Kurzschluss-Strömen
|
|
Zerstörung eines Messgeräts durch Überspannung
|
|
Heiße Oberflächen
|
|
Gewicht des Wechselrichters
|
|
Sand, Staub und Feuchtigkeit |
|
Elektrostatische Aufladung
|
|
Reinigungsmittel
|
6.1.2. Aufstellbedingungen und Abstände am Aufstellort
-
Der Wechselrichter muss vor direkter Sonneneinstrahlung, sowie vor direktem Regen und Schnee geschützt installiert werden.
|
Montagebedingungen
|
6.2. Montage — FENECON Commercial 100-Wechselrichter
Zur Installation des FENECON Commercial 100-Wechselrichters an der Wand wie folgt vorgehen:
Montage der Wandhalterung
|
|
|
|
|
|
|
|
6.3. Montage — Parallelschaltbox
6.3.1. Parallelschaltbox — Sicherheitshinweise
|
|
|
|
|
Bitte beachten Sie die Zulieferdokumentation des Wechselrichters. |
-
Die Parallelschaltbox muss vor direkter Sonneneinstrahlung, vor direktem Regen und Schnee geschützt installiert werden.
-
Der Montageraum muss eine dauerhafte Be- und Entlüftung aufweisen.
-
Seitlich, oberhalb und unterhalb der Parallelschaltbox muss ein Abstand von mindestens 300 mm eingehalten werden (hier werden Kabelkanäle nicht mitgemessen).
-
Vor der Vorderseite der Parallelschaltbox mindestens einen Abstand von 500 mm einhalten.
Zur Installation der Parallelschaltbox an der Wand wie folgt vorgehen:
|
|
|
|
|
|
6.4. Montage — STS-Box (optional)
6.4.1. STS-Box — Sicherheitshinweise
|
|
|
|
-
Die STS-Box muss vor direkter Sonneneinstrahlung, vor direktem Regen und Schnee geschützt installiert werden.
-
Der Montageraum muss eine dauerhafte Be- und Entlüftung aufweisen.
-
Seitlich der STS-Box muss ein Abstand von mindestens 200 mm eingehalten werden (hier werden Kabelkanäle nicht mitgemessen).
-
Oberhalb der STS-Box muss ein Abstand von mindestens 200 mm und unterhalb der STS-Box ein Abstand von mindestens 500 mm eingehalten werden.
-
Vor der Vorderseite der STS-Box mindestens einen Abstand von 800 mm einhalten.
Zur Installation der STS-Box an der Wand wie folgt vorgehen:
|
|
|
|
|
|
6.5. Montage — Batterieturm 1 mit FEMS-Box
6.5.1. Sicherheitshinweise
|
Elektrischer Schlag durch spannungsführende Teile
|
|
Elektrischer Schlag bei fehlendem Überspannungsschutz
|
|
Feuer und Explosion
|
|
Feuer und Explosion bei tiefentladenen Batteriemodulen
|
|
Giftige Substanzen, Gase und Stäube
|
|
Lichtbögen aufgrund von Kurzschluss-Strömen
|
|
Zerstörung eines Messgeräts durch Überspannung
|
|
Heiße Oberflächen
|
|
Gewicht der Batteriemodule
|
|
Sand, Staub und Feuchtigkeit
|
|
Elektrostatische Aufladung
|
|
Reinigungsmittel
|
|
Aufstellort
|
|
Installation
|
6.5.2. Bedingungen am Aufstellort
Innen- oder Außenaufstellung
Empfohlen wird die Aufstellung der FENECON Commercial 100 — Batterietürme in einem gut belüfteten Raum ohne Fremdwärmequellen. Die Batterietürme können aber auch witterungsgeschützt im Außenbereich aufgestellt werden (z. B. Garage).
Nicht zulässig ist die Aufstellung auf 2000 m ü. M. und an unbelüfteten Orten.
Ebenfalls unzulässige Aufstellorte:
-
solche mit explosionsfähiger Atmosphäre.
-
Orte, an denen brennbare oder brandfördernde Stoffe gelagert werden.
-
Nassräume.
-
Orte, an denen salzige Feuchte, Ammoniak, ätzende Dämpfe oder Säure in das System eindringen kann.
Das Speichersystem sollte zudem für Kinder und Tiere unzugänglich sein.
6.5.3. Aufstellbedingungen und Abstände am Aufstellort
-
Batterietürme müssen vor direkter Sonneneinstrahlung, sowie vor direktem Regen und Schnee geschützt installiert werden.
-
Bei Bedingungen außerhalb des optimalen Temperaturbereichs kommt es zur Leistungsreduktion der Batterien. (optimaler Temperaturbereich: +15 °C bis +30 °C)
-
Empfohlen wird ein seitlicher Abstand von 300 mm von einer Wand und 300 mm zwischen zwei Batterietürmen.
-
Auf der Vorderseite werden 300 mm Abstand von einer Wand empfohlen.
-
Zur Decke wird ein Abstand von 200 mm empfohlen.
|
Die Unterschreitung der empfohlenen Abstände kann zu einer erschwerten Installation führen und es kann ggf. zu einem früherem Derating kommen. |
6.5.4. Montage — Batterietürme mit FENECON Commercial 100-EMS-Box und FENECON Commercial 100 Extension-Box
Zum Aufbau eines Batterieturms wie folgt vorgehen:
|
|
|
|
|
|
|
Es können maximal 15 Batteriemodule auf einen Sockel gestapelt werden. |
|
|
|
Elektrischer Schlag
|
|
|
|
|
|
|
|
|
|
|
|
|
6.6. Montage — Batterieturm auf Splitsockel
|
Der Splitsockel kann nur mit Batteriemodulen mit der Artikelnummer FEH021 verwendet werden. |
|
Der Splitsockel dient dem breiteren Aufbau eines Batterieturms, was dessen Montagehöhe reduziert und die Installation in Räumen mit niedrigen Deckenhöhen ermöglicht. |
Zum Aufbau eines Batterieturms mit Splitsockel wie folgt vorgehen:
|
|
|
|
|
|
|
|
|
|
Elektrischer Schlag
|
|
|
||
|
|
||
|
|
||
|
|
||
|
|
||
|
|
||
|
|
6.7. Erklärung der Funktion "Nulleinspeisung"
Anschluss und Betrieb von Speichern am Niederspannungsnetz gemäß VDE-FNN Hinweis 07/2024 — Anforderungen an den Energiefluss-Richtungssensor EnFluRi (Kapitel 4.3) und Nulleinspeiser (Kapitel 4.4).
Die FENECON GmbH erklärt hiermit, dass die in der folgenden Tabelle aufgeführten Wechselrichter in Kombination mit den jeweils angegebenen Energiezählern obige Anforderungen erfüllen:
Wechselrichter |
Bezeichnung |
Internes Energy Meter |
Home Energy Meter |
3-Phasensensor ohne Stromwandler |
|---|---|---|---|---|
Home 6 |
FINV-6-2-DAH |
(optional) |
||
Home 10 (Gen. 1) |
FHI-10-DAH |
|||
Home 10 (Gen. 1) |
FHI-10-DAH 16A |
|||
Home 10 |
FINV-10-2-DAH |
(optional) |
||
Home 15 |
FINV-15-2-DAH |
(optional) |
||
Home 20 |
FHI-20-DAH |
(optional) |
||
Home 30 |
FHI-29,9-DAH |
(optional) |
||
Commercial 50 (Gen. 3) |
FINV-50-1-DAH |
|||
Commercial 100 |
FINV-100-1-DAH |
*Art.-Nr.: FHO055
**Art.-Nr.: FEH040
6.7.1. Konfiguration zur Nulleinspeisung über das FENECON Energiemanagementsystem
Die oben aufgeführten Wechselrichter können über das FENECON Energiemanagementsystem so konfiguriert werden, dass die erzeugte PV-Energie vollständig selbst genutzt und keine Einspeisung in das öffentliche Netz erfolgt.
Hierzu ist die Einstellung Maximale Einspeiseleistung im Inbetriebnahme-Assistenten auf 0 Watt festzulegen.
6.7.2. Hinweise zur Nulleinspeisefunktion:
-
Bei Verwendung von FENECON-Wechselrichtern kann es zu Abweichungen von < 1 % pro Phase kommen.
-
Die Genauigkeit der Nulleinspeisung ist abhängig vom Leistungsfaktor der angeschlossenen Verbraucher.
-
Ein hoher Anteil an Blindleistung, insbesondere in Form von Oberschwingungen, kann die Genauigkeit der Messung der Wirkleistung negativ beeinflussen.
-
Bei Nulleinspeisung funktionieren Geräte, die auf PV-Überschuss ausregeln, nicht mehr, da es keine Einspeisung mehr gibt, auf die sie sich ausregeln können.
6.7.3. Gültigkeit der Erklärung:
Diese Erklärung gilt für alle baugleichen Exemplare der genannten Wechselrichter. Sie verliert ihre Gültigkeit, wenn:
-
Änderungen am Gerät vorgenommen wurden,
-
der Anschluss unsachgemäß erfolgt,
-
die Installation nicht gemäß der Betriebsanleitung durchgeführt wurde, oder
-
der Wechselrichter mit einem externen Erzeuger betrieben wird.
6.8. Elektrische Installation
6.8.1. Erdung des Wechselrichters und der Batterietürme
|
|
|
|
|
|
|
|
|
Der Querschnitt der Erdung muss mindestens 10 mm2 betragen. |
6.9. Zugelassene Netzformen für den Anschluss des FENECON Commercial 100
6.9.1. Anschluss und Verkabelung des AC-Stromkreises (ohne Notstrom)
| Pos. | Beschreibung |
|---|---|
1 |
FENECON Commercial 100-Wechselrichter |
2 |
Absicherung des Wechselrichters, 3-polig1 |
3 |
Absicherung maximal C6 oder C10, 1-polig |
4 |
FENECON Commercial 100-Batterieturm |
5 |
Absicherung der Verbraucher (kein Notstrom) |
6 |
Potenzialausgleichsschiene |
7 |
2-Richtungszähler (Energieversorgungsunternehmen) |
8 |
Netz |
9 |
Verbraucher (nicht notstromversorgt) |
1 Zusätzlich sind die aktuell gültigen nationalen Bestimmungen sowie die Vorgaben des zugehörigen Netzbetreiber einzuhalten. (Wenn ein RCD vom Netzbetreiber gefordert wird, wird ein RCD Typ A mit 300 mA Auslösestrom empfohlen, bei 30 mA kann es zu unerwünschten Abschaltungen kommen.)
|
|
|
|
|
|
|
|
6.9.2. Anschluss und Verkabelung des AC-Stromkreises (mit STS-Box/Notstrom)
| Pos. | Beschreibung |
|---|---|
1 |
FENECON Commercial 100-Wechselrichter |
2 |
Absicherung des Wechselrichters, 3-polig1 |
3 |
Absicherung maximal C6 oder C10, 1-polig |
4 |
FENECON Commercial 100-Batterieturm |
5 |
Absicherung der Verbraucher (notstromversorgt) mit RCD Typ A und passenden LS-Schaltern |
6 |
Potentialausgleichsschiene |
7 |
2-Richtungszähler (Energieversorgungsunternehmen) |
8 |
Netz |
9 |
Verbraucher (notstromversorgt) |
10 |
STS-Box |
1 Zusätzlich sind die aktuell gültigen nationalen Bestimmungen sowie die Vorgaben des zugehörigen Netzbetreiber einzuhalten. (Wenn ein RCD vom Netzbetreiber gefordert wird, wird ein RCD Typ A mit 300 mA Auslösestrom empfohlen, bei 30 mA kann es zu unerwünschten Abschaltungen kommen.)
6.9.3. Anschluss und Verkabelung des AC-Stromkreises (mit STS-Box)
Wie in der vorherigen schematischen Darstellung muss die STS-Box mit dem Netz verbunden werden.
|
|
||
|
|
||
Abschnitt |
Beschreibung |
Maße |
|
1 |
Außendurchmesser |
< 44 mm |
|
2 |
Länge — entmanteltes Kabel |
ca. 350 mm |
|
3 |
Länge — abisolierter Leiter |
abhängig von verwendeten Kabelschuhen |
|
|
|
||
|
|
||
|
|
||
|
|
||
|
6.10. Montage — Energy Meter
6.10.1. Anschlussübersicht
| Pos. | Beschreibung |
|---|---|
1 |
2-Richtungszähler (Energieversorger) |
2 |
Absicherung des Wechselrichters, 3-polig1 |
3 |
Absicherung der Verbraucher (kein Notstrom) mit RCD Typ A und passenden LS-Schaltern |
4 |
Verbraucher (nicht notstromversorgt) |
5 |
Wandler — Primärstrom: 200-5000 A; Sekundärstrom: 5 A (nicht im Lieferumfang enthalten) (direkt hinter EVU-Zähler) |
6 |
Erweiterung mit 3-Phasensensor ohne Stromwandler am Netzanschlusspunkt |
7 |
Absicherung des Energy-Meters (empfohlen) B6, 3-polig |
8 |
Netz |
1Zusätzlich sind die aktuell gültigen nationalen Bestimmungen sowie die Vorgaben des zugehörigen Netzbetreiber einzuhalten.
6.10.2. Auswahl der passenden Stromwandler
Der 3-Phasensensor kann mit allen Herstellern von Stromwandlern verwendet werden. Es müssen nur die erforderlichen Parameter eingehalten werden:
|
200 A — 5000 A |
|
|
5 A |
|
|
0,5 (oder besser) |
Die Abmessungen der Wandler und der Lochdurchmesser für Kabel oder Kupferschienen ist frei wählbar.
Wir empfehlen beispielsweise den Stromwandler Socomec 192T2020. Hierbei handelt es sich um einen Wandler mit einem Primärstrom von 200 A und einem Lochdurchmesser von 21 mm.
|
Die Auswahl des korrekten primären Nennstroms ist sehr wichtig für die Messgenauigkeit. Empfohlen wird ein Nennstrom, der gleich oder leicht größer zur Absicherung am Netzanschlusspunkt ist. Um Messungenauigkeiten zu vermeiden sollte der Lochdurchmesser der Messwandler passend zum Kabelquerschnitt oder zur Kupferschiene ausgewählt werden. |
6.10.3. Elektrische Installation
|
|
|
|
|
|
|
|
|
|
|
|
6.10.4. AC-Anschluss der FENECON Commercial 100-EMS-Box
-
Für die Versorgung der FENECON Commercial 100-EMS-Box wird eine externe 230-V-Spannungsversorgung benötigt.
-
Dies hat den Zweck, die leere Batterie nicht durch zusätzliche Verbraucher zu belasten. Das kann insbesondere im Winter, wenn keine Sonne scheint, oder wenn Schnee auf der PV-Anlage liegt, vorkommen.
|
|
|
|
|
|
|
|
|
|
6.10.5. DC-Kabel vom Batterieturm zum Wechselrichter
|
|
|
|
|
Die verwendeten DC-Stecker auf der Batterieseite sind nicht mit handelsüblichen MC4-Steckern kompatibel. |
6.10.6. Anschluss und Verkabelung der PV-Anlage am Wechselrichter
|
Die verschiedenen PV-Strings können am Wechselrichter direkt an den PV-Eingängen angeschlossen werden. |
|
|
Im Wechselrichter ist ein Typ-2-Überspannungsschutz integriert. |
6.10.7. Kommunikation zwischen Wechselrichter und EMS-Box
|
Es wird eine Leitung mit mindestens 5 Adern mit einem Aderquerschnitt von 0,34 mm2 bis 0,75 mm2 empfohlen.
Achtung: Eine Durchführung ist schon durch das Kommunikationskabel zwischen Wechselrichter und EMS blockiert.
|
|
|
|
|
|
|
|
|
|
|
|
Wenn ansteuerbare Verbraucher installiert und eine der nachfolgenden FEMS Erweiterungen gekauft wurden, können die nachfolgenden beiden Schritte vorerst vernachlässigt werden.
|
|
|
|
|
6.10.8. Kommunikation zwischen den Batterien
|
|
6.10.9. Kommunikation zum Kundennetzwerk
|
|
|
Falls der Batterieturm im Innenraum aufgestellt wird, kann dieser Punkt übersprungen und das Netzwerkkabel direkt angesteckt werden. |
|
|
|
|
|
Das Speichersystem hat keine W-LAN-Funktion. |
6.10.10. Abdeckung des Internal-Eingangs (optional)
|
Optional kann ein Netzwerkgehäuse mit Blindstopfen (im Lieferumfang enthalten) als Abdeckung für den Internal-Anschluss benutzt werden. Das Netzwerkgehäuse und der Blindstopfen müssen zuvor montiert werden. |
|
Eine IP-Schutzart ist nur sichergestellt, wenn an allen Anschlüssen die dazugehörigen Stecker verriegelt sind. |
6.10.11. Kommunikation zwischen Energy Meter und Wechselrichter
|
Es wird eine Leitung mit mindestens 5 Adern mit einem Aderquerschnitt von 0,34 mm2 bis 0,75 mm2 empfohlen.
Achtung: Eine Durchführung ist schon durch das Kommunikationskabel zwischen Wechselrichter und EMS blockiert.
|
|
|
7. Generator-Eingang
7.1. Zweck und Anwendungsbereich
-
Versorgung des Systems bei Netzausfall
-
Automatischer Start bei:
-
Netzausfall.
-
-
Optional: Nachladung der Batterie bei Netzausfall bis zum definierten SOC-Start-/Stopp-Wert.
|
Der Generator kann nicht genutzt werden, um die Notstrom-Reserve einzuhalten. |
7.2. Funktionsweise
-
Netzausfall wird erkannt.
-
Der Wechselrichter übernimmt als Netzbildner die Versorgung der Verbraucher.
-
Der potenzialfreie Relaiskontakt schließt.
-
Vorheizzeit des Generators beginnt (einstellbar).
-
Zuschaltung des Generators (Abhängig vom Modus).
-
Generatorerzeugung startet.
-
Der Generator versorgt die Last und kann optional die Batterie laden.
-
-
Ist der Modus Batteriebeladung aus dem Generator aktiv, wird keine Leistung mehr vom Generator bezogen, sobald der eingestellte SOC-Stopp-Wert erreicht ist.
-
Sobald der eingestellte SOC-Start-Wert unterschritten ist, wird wieder Leistung vom Generator bezogen.
-
7.3. Technische Anforderungen an den Generator
-
Nennspannung: 230 V/400 V (Toleranz: 10 %)
-
Frequenz: 50 Hz
-
Frequenzstabilität: max. ± 1 Hz
-
Maximalleistung:
-
Es gibt keine Eingangsbeschränkung; Es kann beispielsweise ein 60-kW-Generator an den Commercial-50-Wechselrichter angeschlossen werden. Limitierend ist die maximale Ausgangsleistung des Wechselrichters (VA).
-
-
Potenzialfreier Eingang optional, ein manueller Start des Generators ist ebenso möglich.
|
Achten Sie darauf, dass beim Wechselrichter die aktuellste Firmware-Version (dsp 5.516 arm 12.500 oder aktueller) und beim FENECON-System die aktuellste FEMS-Version installiert ist.
|
7.4. Einschränkungen
-
Kein Schwarzstart aus dem Generator möglich.
-
Kein Parallelbetrieb mehrerer Generatoren erlaubt.
-
Der Generator darf nicht als dauerhaftes Primärnetz genutzt werden (Höchstlaufzeit: 24 Stunden).
-
Die Leistungswerte von Generator und Wechselrichter sind nicht kombinierbar. Im Notstrombetrieb werden die Lasten entweder vom Generator oder von der Batterie versorgt.
-
Es kann nicht garantiert werden, dass alle Lasten und Verbraucher versorgt werden können.
7.5. Installation des Generators
|
Die Installation des Generators ist nur durch qualifizierte Elektrofachkräfte vorgesehen. Achten Sie darauf, dass alle Sicherheitsvorkehrungen eingehalten werden. |
|
Beziehen Sie sich bei der Installation des Generators auf die spezifischen Anweisungen des Herstellers. |
|
|
|
|
|
|
|
|
|
|
|
|
|
|
7.6. Inbetriebnahme mit Generator
Die Inbetriebnahme des Systems mit einem angeschlossenen Generator erfolgt über den Inbetriebnahme-Assistenten.
Hierfür müssen folgende Schritte durchgeführt werden:
|
|
||
|
|
||
|
|
||
|
|
8. Erstinbetriebnahme
8.1. Prüfen der Installation, Anschlüsse und Verkabelung
Vor der Erstinbetriebnahme die Anlage wie folgt prüfen:
-
Alle Komponenten (Abstände, Umgebung, Befestigung) sind richtig installiert.
-
Alle internen Verkabelungen sind vollständig und fachgerecht angeschlossen.
-
Alle externen Versorgungsleitungen (Spannungsversorgung, Kommunikationskabel) sind fachgerecht angeschlossen.
-
Alle Anschlusswerte sind auf die Anlage abgestimmt und erforderliche Einstellungen wurden vorgenommen.
-
Alle nötigen Prüfungen der Anlage wurden normgerecht durchgeführt.
|
Die Inbetriebnahme darf ausschließlich von geschultem Fachpersonal durchgeführt werden. |
|
|
In der Betriebsanleitung wird darauf hingewiesen:
|
8.1.1. Einschalten
|
|
|
|
| Falls die IBN noch nicht abgeschlossen wurde, startet die Batterie nicht. |
|
Durch Drücken des Tasters an der Front der EMS-Box wird das System neu gestartet. Der Neustart kann bis zu drei Minuten dauern. |
|
Wenn das System noch nicht konfiguriert wurde, dann geht die Batterie in den Fehlermodus, bzw. schaltet sich ab. Der Wechselrichter startet erst nach der Konfiguration und synchronisiert sich erst danach auf das Netz auf. |
8.1.2. Ausschalten
|
Aussichern der Batterietürme (Front-Batterieturm). Erst wenn alle LED am Wechselrichter und an der Batterie erloschen sind, ist das System komplett abgeschaltet. Dies kann ca. 30 Sekunden dauern. |
|
8.2. Konfiguration per Inbetriebnahme-Assistent
Öffnen Sie www.fenecon.de und klicken Sie oben rechts auf den Login zum FENECON Online-Monitoring "FEMS-Login". Alternativ werden Sie über den nachfolgenden QR-Code oder den Link auf die Seite geleitet.
|
Sofern Sie noch nicht über einen Installateurs-Account verfügen, erfahren Sie hier, wie Sie diesen erstellen.
|
Nach dem Login gelangen Sie zu diesem Bildschirm.
|
||
|
|
||
|
|
||
|
|
||
|
|
||
|
|
||
|
|
||
|
|
||
|
|
||
|
|
||
|
|
||
|
|
||
|
|
||
|
|
||
|
|
||
|
|
||
|
|
||
|
|
||
|
|
||
|
|
|
9. FEMS-Online-Monitoring
Das FEMS-Online-Monitoring dient der Visualisierung sämtlicher Energieflüsse in Ihrem System. So zeigt der Energiemonitor Live-Daten zum Netzbezug oder -einspeisung, PV-Produktion, Beladung/Entladung des Batteriespeichers und Stromverbrauch. Über weitere Widgets wird der prozentuale Autarkiegrad und Eigenverbrauch dargestellt. Zusätzlich bieten die einzelnen Widgets eine Detailansicht, über die die Leistungswerte auch phasengenau eingesehen werden können.
Neben der reinen Informationsdarstellung werden im Online-Monitoring auch alle zusätzlich erworbenen FEMS-Erweiterungen, wie beispielsweise zur Einbindung einer Wärmepumpe, Heizstab, E-Ladestation oder Blockheizkraftwerk (BHKW), aufgeführt. Deren Funktionsweise ist durch das entsprechende Widget steuerbar.
Zusätzlich zur Live-Ansicht bietet die Historie die Möglichkeit, selbstgewählte Zeiträume für das Online-Monitoring auszuwählen. Über das Info-Symbol kann der Status des Gesamtsystems als auch der einzelnen Komponenten zu jedem Zeitpunkt überwacht werden.
9.1. Zugangsdaten
Der Zugang zum FEMS-Online-Monitoring ist nach Endkunden und Installateur getrennt.
9.1.1. Zugang für den Endkunden
Der Zugang für den Endkunden wird nach Abschluss der Inbetriebnahme automatisch erzeugt und per E-Mail an den Endkunden verschickt.
Hier müssen noch die AGBs bestätigt werden, dann steht das Monitoring ohne Einschränkungen zur Verfügung.
Sollten zusätzliche Benutzer auf die Anlage zugreifen wollen, so müssen diese einen eigenen Benutzeraccount erstellen. Dies erfolgt wie im Abschnitt Konfiguration per Inbetriebnahme-Assistent beschrieben, hier muss jedoch in der Kopfzeile "BENUTZER" ausgewählt werden.
Nach erfolgreicher Erstellung eines zusätzlichen Benutzeraccounts benötigen wir lediglich eine Mail an service@fenecon.de, mit der genutzten Mailadresse und der betroffenen FEMS-Nummer, die Verknüpfung erfolgt durch uns und somit können weitere Benutzter das Online-Monitoring einer Anlage nutzen.
9.1.2. Zugang für den Installateur
Der Installateurs-Zugang kann wie im Abschnitt Konfiguration per Inbetriebnahme-Assistent beschrieben auf der FENECON-Homepage erstellt werden. Der Zugang ist für die erfolgreiche Inbetriebnahme erforderlich.
10. Kapazitätserweiterung des Systems
Die Kapazität kann auch nachträglich erweitert werden, hier gibt es keine zeitliche Begrenzung.
Es wird mit zusätzlichen neuen Batteriemodulen nicht die maximale Kapazität erreicht, da sich neue Module den alten Modulen angleichen.
10.1. Kapazitätserweiterung des Batterieturms
um eines oder mehrere Batteriemodule
Wird das Speichersystem nach der IBN durch weitere Batteriemodule erweitert, muss wie folgt vorgegangen werden:
|
Nach einer Kapazitätserweiterung ist das Inbetriebnahmeprotokoll erneut durchzuführen. |
|
Das Speichersystem bereitet sich automatisch darauf vor, wenn der Ladezustand nicht über denselben SoC verfügt. |
|
|
|
Die "Kapazitätserweiterung" ist aktiviert, wenn der blaue Balken angezeigt wird.
|
|
Hier in diesem Beispiel wurde der 24.05.2024 und die Uhrzeit von 09:00 Uhr gewählt. Zu diesem Zeitpunkt wird die Batterie voraussichtlich be- bzw. entladen um zur "Geplanten Erweiterung" 30 % zu erreichen. |
|
Die gewünschte Erweiterung wird gespeichert und je nach gewählter Option sofort bzw. später zu einem bestimmten Zeitpunkt durchgeführt. |
|
|
Die Kapazität kann auch nachträglich erweitert werden, hier gibt es keine zeitliche Begrenzung. Sie werden mit dem neuen Batteriemodul nicht die volle Kapazität erreichen, da sich das neue Modul den alten Modulen angleicht.
Wird nach mehreren Wochen oder Monaten der Batterieturm durch weitere Batteriemodule erweitert, muss wie nachfolgend vorgegangen werden:
29-30 % SoC |
|
|
|
|
|
|
Hierfür die Wandhalterung der BMS-Box von der Wand schrauben. |
|
|
|
|
|
10.2. Kapazitätserweiterung des Systems
um einen oder mehrere Batterietürme
Die Kapazität des Systems kann nachträglich durch einen oder mehrere Batterietürme mit der gleichen Kapazität erweitert werden. Hier gibt es keine zeitliche Begrenzung.
Es wird mit neuen Batteriemodulen nicht die volle Kapazität erreicht, da sich die neuen Module den alten Modulen angleichen.
Vor der Erweiterung muss wie folgt vorgegangen werden:
|
|
|
→ Sicherungsschalter der Batterie auf OFF. |
|
|
|
|
|
11. FEMS-Erweiterungen
Für die nachfolgenden FEMS-Erweiterungen können direkt am (ersten) Batterieturm die integrierten Relais verwendet werden.
Hierfür sind verschiedene Pins an den Harting-Steckern vorgesehen.
-
Harting-Stecker 10-polig: 3 x freie Relaiskanäle (max.: 230 V; 10 A)
-
Harting-Stecker 16-polig: 2 x Steuerkontakte (max.: 24 V; 1 A)
-
3 x Digitaler Eingang
-
1 x Digitaler Eingang für § 14a
-
1 x Analoger Ausgang (0-10 V)
-
Es können ggf. nicht alle Apps gleichzeitig angeschlossen und betrieben werden.
Für weitere Informationen der nachfolgenden Apps besuchen Sie unserer Homepage.
|
Falls die integrierten Relais nicht ausreichen, kann ein externes 8-Kanal-Relaisboard über Ethernet angebunden werden. |
|
Nachfolgend ist die Pinbelegung des Harting-Steckers (10-polig) im Detail zu sehen. |
| Pos. | Beschreibung |
|---|---|
1 |
230-V-Versorgung für interne Komponenten |
2 |
Relais 1 (230 V; 10 A) |
3 |
Relais 2 (230 V; 10 A) |
4 |
Relais 3 (230 V; 10 A) |
5 |
Neutralleiteranschluss (für integrierten Zähler nötig) |
6 |
PE-Anschluss |
|
Nachfolgend ist die Pinbelegung des Harting-Steckers (16-polig) im Detail zu sehen. |
| Pos. | Beschreibung |
|---|---|
1 |
RS485 Anschluss — Wechselrichter |
2 |
RS485 Anschluss — Externe Geräte |
3 |
Analoger Ausgang (0 bis 10 V) |
4 |
12 V DC (12 V; GND) |
5 |
3 x digitale Eingänge |
6 |
Digitaler Eingang für § 14a |
7 |
Relais 5 (24 V; 1 A) |
8 |
Relais 6 (24 V; 1 A) |
9 |
PE-Anschluss |
11.1. Anschluss einer Wärmepumpe über "SG-Ready"
Die Einbindung einer "SG-Ready" (Smart-Grid-Ready) Wärmepumpe ist eine fortgeschrittene Form der Sektorenkopplung von Elektrizität und Wärme — oft auch "Power-to-Heat"-Anwendung genannt. Die Ansteuerung sorgt dafür, dass die Wärmepumpe zu Zeiten, in denen günstiger (Sonnen-)strom zur Verfügung steht, den thermischen Speicher leicht überheizt, um dann in Zeiten ohne günstigem Überschussstrom elektrische Energie einzusparen.
|
|
|
Nach der Installation der Komponenten muss die App noch installiert werden. |
11.2. Anschluss eines Heizstabes mit maximal 6 kW
Die Einbindung eines elektrischen Heizstabes ist die einfachste und günstigste Form der Sektorenkopplung von Elektrizität und Wärme — oft auch "Power-to-Heat"-Anwendung genannt.
Wenn die Kapazität des elektrischen Speichers ausgeschöpft ist, muss selbst erzeugte Energie mit geringer Vergütung in das öffentliche Netz eingespeist werden. In diesen Fällen ist es häufig sinnvoll, den überschüssigen Strom für die Warmwasserbereitung zu verwenden (z. B. für Warmwasser-Pufferspeicher, Pool-Heizung, usw.). So können andere Energiequellen (z. B. Holz oder Öl) eingespart werden.
|
|
|
Es muss darauf geachtet werden, dass drei verschiedene Phasen verwendet werden. Wenn nur eine Phase verwendet wird, kann es zu Schäden kommen. |
|
Nach der Installation der Komponenten muss die App noch installiert werden. |
| Der manuelle Modus ist nur für den vorübergehenden Betrieb geeignet. Für den dauerhaften Betrieb, ist die externe Relaisansteuerung zu verwenden. |
11.3. Ansteuerung eines Heizstabes größer 6 kW
(Ansteuerung über externe Relais)
| Die extern installierten Relais müssen nach der installierten Leistung des verbauten Heizstabes ausgelegt werden. |
|
|
|
|
|
|
|
Nach der Installation der Komponenten muss die App noch installiert werden. |
11.4. Ansteuerung eines BHKW
Die Einbindung eines Blockheizkraftwerks (BHKW) in das elektrische Energiemanagement ist eine fortgeschrittene Form der Sektorenkopplung von Elektrizität und Wärme.
Hiermit lässt sich die Eigenschaft des BHKWs als tageszeit- und witterungsunabhängigen elektrischen Erzeuger zu Nutze machen. So wird dem BHKW bei niedrigem Ladezustand des Speichers ein Einschaltsignal zur Stromproduktion gegeben. Dies ist beispielsweise sinnvoll, wenn nachts die Batteriekapazität nicht ausreicht, um den Stromverbrauch zu decken. Dadurch wird der Bezug von teurem Strom aus dem Netz vermieden.
Bei Beladung der Batterie wird dieses Signal wieder gestoppt, um eine unnötige Netzeinspeisung des BHKW-Stroms zu verhindern.
|
|
|
Nach der Installation der Komponenten muss die App noch installiert werden. |
11.5. Zusätzlicher AC-Zähler
-
Falls weitere Zähler für das Monitoring von weiteren Verbrauchern oder Erzeugern verbaut wurden, müssen diese nach Herstelleranleitung in den Stromkreis eingebunden werden.
-
Die kommunikative Einbindung wird nachfolgend beispielhaft an einem 3-Phasen Sensor ohne Stromwandler gezeigt.
-
Es können nur von der Firma FENECON freigegebene Zähler eingebunden werden.
-
Der erste Erzeugungszähler wird immer mit der Modbus ID 6 eingebunden. Alle weiteren aufsteigend. Die Baudrate muss 9600 betragen.
|
|
|
Am Beispiel SOCOMEC E24
|
|
Am Beispiel KDK 4PU
|
|
Wenn mehrere Zähler verbaut werden sollen, dann können diese kommunikativ in Reihe geschaltet werden. Hierfür kann vom ersten Zähler auf den Zweiten usw. weitergebrückt werden. Die Modbus-Adresse muss aufsteigend eingestellt werden. |
|
Nach der Installation der Komponenten muss die App noch installiert werden.
|
11.6. Aktivierung der App im FEMS-App Center
Nach der Installation der hardwareseitigen FEMS-Erweiterung muss diese noch im App-Center aktiviert werden. Hierfür wie folgt vorgehen:
|
|
|
| Prüfen Sie zunächst, ob Updates für das FEMS verfügbar sind. |
12. FEMS Systemupdate
Um alle FEMS Apps umfänglich und in der neuesten Version nutzen zu können, ist ein Systemupdate auf die neueste Version durchzuführen.
-
Öffnen Sie hierzu das Burger-Menü oben links im Online-Monitoring.
-
Wählen Sie Einstellungen.
-
Wählen Sie FEMS System.
-
Klicken Sie auf NEUESTE VERSION INSTALLIEREN, um das System zu aktualisieren. Falls bereits die neueste Version installiert ist, müssen Sie nichts weiter tun.
|
So kommen Sie nach dem FEMS-Systemupdate zurück zum Einstellungsmenü zurück: Klick auf den Pfeil oben links. Dies trifft auf sämtliche Untermenüs im Bereich Einstellungen zu. |
13. Ausgangspunkt: FEMS App Center
-
Nachdem Sie ein Systemupdate durchgeführt haben, öffnen Sie das FEMS App Center.
-
Alternativ gehen Sie über das Burger-Menü oben links im Monitoring zum FEMS App Center.
-
-
Sie befinden sich nun im App Center. Von hier aus können Sie Lizenzschlüssel für Apps einlösen und registrieren, neue Apps installieren und bereits installierte Apps bearbeiten bzw. nachträglich konfigurieren.
13.1. Installation weiterer FEMS-Apps
Die folgende Anleitung zeigt beispielhaft die Installation einer FEMS App PV-Wechselrichter.
Es gibt zwei Wege, eine FEMS App über das App Center zu installieren.
13.1.1. Installation nach Einlösen eines Lizenzschlüssels
Nachdem ein Lizenzschlüssel eingelöst wurde, wird eine Auswahl verfügbarer Apps angezeigt, die installiert werden können.
Das App Center bietet eine Suchleiste und eine Filteroption, um schneller zur jeweiligen gewünschten App zu gelangen:
Im Beispiel wurde nach der FEMS App SMA PV-Wechselrichter gesucht. Durch Klicken bzw. Tippen auf die Kachel wird diese App ausgewählt.
Sie gelangen im Anschluss zur App-Übersicht:
Wählen Sie die Schaltfläche APP INSTALLIEREN.
Anschließend gelangen Sie zum Installationsassistenten der jeweiligen App:
Die Eingabefelder sind teils vorausgefüllt. Tragen Sie dennoch Ihre Daten ein, wenn diese von den Standardwerten abweichen (z. B. IP-Adresse). Ansonsten können die Standardwerte beibehalten werden (z. B. Port, Modbus Unit-ID).
| Pflichtfelder sind mit * gekennzeichnet |
| Überprüfen Sie Ihre Eingaben und stellen Sie sicher, dass diese korrekt sind. Andernfalls wird die jeweilige App nicht ordnungsgemäß funktionieren! |
Wählen Sie erneut die Schaltfläche APP INSTALLIEREN.
Nachdem der Installationsprozess erfolgreich abgeschlossen ist, erscheint die neue App in der Übersicht des App Centers in der Kategorie Installiert.
13.1.2. Direkte Installation
Sie können eine App auch direkt installieren. Gehen Sie hierzu in die Übersicht des App Centers und suchen Sie nach der gewünschten App.
| Nur Apps aus der Kategorie "Verfügbar" können installiert werden. |
Im Beispiel wurde nach der FEMS App SMA PV-Wechselrichter gesucht. Durch Klicken bzw. Tippen auf die Kachel wird diese App ausgewählt.
Sie gelangen im Anschluss zur Einzelansicht der App:
Wählen Sie die Schaltfläche APP INSTALLIEREN.
Es erscheint eine Eingabemaske zum Einlösen eines Lizenzschlüssels:
Hier haben Sie zwei Möglichkeiten:
- Einen neuen Lizenzschlüssel direkt einlösen
-
Sofern Sie noch keinen Lizenzschlüssel registriert haben, oder einen neuen Lizenzschlüssel einlösen wollen, geben Sie den 16-stelligen Schlüssel in das entsprechende Feld ein und klicken Sie anschließend auf LIZENZSCHLÜSSEL VALIDIEREN.
Der eingegebene Lizenzschlüssel wird anschließend auf Gültigkeit überprüft.
Wenn der Lizenzschlüssel gültig ist, kann dieser durch Klick auf die gleichnamige Schaltfläche registriert werden.
⇒ LIZENZSCHLÜSSEL EINLÖSEN
| Ist der Lizenzschlüssel ungültig, überprüfen Sie bitte Ihre Eingabe und versuchen Sie es erneut. |
- Einen bereits registrierten Lizenzschlüssel einlösen
-
In diesem Fall sieht die Schaltfläche im App Center so aus:
Wenn Sie einen bereits registrierten Lizenzschlüssel einlösen möchten, setzen Sie den entsprechenden Haken und wählen Sie den passenden, bereits registrierten Lizenzschlüssel per Drop-Down-Menü aus.
Klicken Sie dann auf die Schaltfläche LIZENZSCHLÜSSEL EINLÖSEN.
Anschließend gelangen Sie zum Installationsassistenten der jeweiligen App.
Die Eingabefelder sind teils vorausgefüllt. Tragen Sie dennoch Ihre Daten ein, wenn diese von den Standardwerten abweichen (z. B. IP-Adresse). Ansonsten können die Standardwerte beibehalten werden (z. B. Port, Modbus Unit-ID).
| Pflichtfelder sind mit * gekennzeichnet |
| Überprüfen Sie Ihre Eingaben und stellen Sie sicher, dass diese korrekt sind. Andernfalls wird die jeweilige App nicht ordnungsgemäß funktionieren! |
Wählen Sie erneut die Schaltfläche APP INSTALLIEREN.
Nachdem der Installationsprozess abgeschlossen ist, erscheint die neue App in der Übersicht des App Centers in der Kategorie Installiert.
14. Externe Ansteuerung des Wechselrichters
Es gibt verschiedene Möglichkeiten, um den Wechselrichter von externen Einrichtungen zu übersteuern.
14.1. Rundsteuerempfänger am AC-Ausgang
Der Wechselrichter kann über einen Rundsteuerempfänger direkt angesteuert werden. Hierfür werden die nachfolgenden Stecker die dem Wechselrichter beiliegen benötigt.
|
|
|
|
Die Wirkleistung des FENECON Commercial 100-Wechselrichters kann direkt vom Energieversorgungsunternehmen (EVU) über einen Rundsteuerempfänger (RSE) gesteuert werden.
Das Verhalten des Wechselrichters in den verschiedenen Regelstufen wie folgt beschrieben werden.
-
100 % → Standardsignal, Wechselrichter arbeitet ohne Einschränkungen (100 kW)
-
60 % → Wechselrichter-Ausgangsleistung wird auf 60 % reduziert. (60 kW)
-
30 % → Wechselrichter-Ausgangsleistung wird auf 30 % reduziert. (30 kW)
-
0 % → Wechselrichter-Ausgangsleistung wird auf 0 % reduziert. (0 kW)
Bei Verwendung weiterer Wechselrichter sind diese ebenfalls und separat an den RSE anzubinden; wie genau hängt vom Netzbetreiber und verwendetem RSE ab.
|
Bei einer Abregelung auf 0 % wird die Einspeisung des Wechselrichters komplett gestoppt, d. h. die Verbraucher werden komplett aus dem Netz versorgt. |
|
|
|
|
|
|
|
|
|
|
14.2. Rundsteuerempfänger auf Netzanschlusspunkt
Das System kann direkt über den Rundsteuerempfänger (RSE) angesteuert werden.
|
Beachten Sie hierbei die Vorgaben Ihres Netzbetreibers bei Anschluss des externen Funkrundsteuerempfängers. |
Bei Verwendung weiterer Wechselrichter sind diese ebenfalls und separat an den RSE anzubinden; wie genau hängt vom Netzbetreiber und verwendetem RSE ab.
Das Verhalten des Wechselrichters in den verschiedenen Regelstufen kann wie folgt beschrieben werden:
-
100 % → Standardsignal, Wechselrichter arbeitet ohne Einschränkungen (100 kW)
-
60 % → Wechselrichter-Ausgangsleistung wird auf 60 % reduziert. (60 kW)
-
30 % → Wechselrichter-Ausgangsleistung wird auf 30 % reduziert. (30 kW)
-
0 % → Wechselrichter-Ausgangsleistung wird auf 0 % reduziert. (0 kW)
Beim Anschluss an die FEMS-Box sind folgende Kontakte im Harting-Stecker zu verbinden:
Bei der Inbetriebnahme ist bei Externe Limitierungen der dynamische Rundsteuerempfänger auszuwählen:
Der Rundsteuerempfänger regelt jetzt die Netzlimitierung auf den Netzanschlusspunkt ab und nicht mehr auf den AC-Ausgang. Somit ist bei einer Netzlimitierung auch ein Beladen der Batterie sowie ein Versorgen der Verbraucher mittels PV-Erzeugung möglich.
14.3. Fernabschaltung
Der Wechselrichter kann bei aktivierter Fernabschaltung, z. B. über einen zentralen NA-Schutz, vom Netz getrennt werden. Hierfür wird einer der nachfolgenden Stecker, die dem Wechselrichter beiligen, benötigt.
|
|
|
|
|
Der Notstromabgang ist (wenn aktiviert) weiterhin aktiv und versorgt die Notstrom-Verbraucher. |
|
|
|
|
|
|
|
|
|
Mit dieser Methode kann auch die P,ave-Überwachung angeschlossen werden. |
14.4. § 14a Energiewirtschaftsgesetz (EnWG)
Der Wechselrichter kann auf eine maximale Bezugsleistung von 4,2 kW beschränkt werden. Hierfür muss der digitale Eingang des EMS belegt werden.
|
|
15. Störungsbeseitigung
15.1. Fehler im Online-Monitoring
Der Systemzustand kann nach dem Login oben rechts anhand der Farbe des Symbols überprüft werden. Ein grüner Haken zeigt an, dass alles in Ordnung ist, ein orangefarbenes Ausrufezeichen zeigt eine Warnung (Warning) und ein rotes Ausrufezeichen einen Fehler (Fault) an.
15.1.1. Störungsanzeige
Systemzustand: Alles in Ordnung |
|
Systemzustand: Warnung (Warning) |
|
Systemzustand: Fehler (Fault) |
15.1.2. Störungsbehebung
|
Eine detaillierte Übersicht über eine vorhandene Warnung oder einen Fehler erhalten Sie, wenn Sie auf das Ausrufezeichen in der rechten oberen Ecke klicken. |
|
Über die Scroll-Leiste kann der Ursprung der Warnung oder des Fehlers genauer untersucht werden. |
|
Durch Klicken auf das Symbol (Pfeil nach unten) wird je nach Fehler eine genauere Fehlerbeschreibung angezeigt. |
In dem Beispiel oben wurde zu Testzwecken absichtlich eine falsche Referenz für den Netzzähler eingetragen, weshalb die Ausführung des Controllers fehlschlägt.
|
Unter Umständen kann es passieren, dass das FEMS nicht erreichbar ist und nebenstehende Fehlermeldung erscheint. |
Wenn das FEMS offline ist, folgen Sie den Schritten, die unter der Meldung angezeigt werden.
15.2. Batterieturm
15.2.1. Störungsanzeige
Störungen werden an der BMS-Box über eine rote LED dargestellt.
Durch LED-Codes werden die verschiedenen Fehler dargestellt.
Speicher-Status |
Speicher-Information |
LEDs |
|||||
blau/rot |
1 |
2 |
3 |
4 |
|||
Bootloader |
|||||||
Starten |
Master/Slave |
||||||
Parallel-Box |
|||||||
Extension-Box |
|||||||
Prüfmodus |
Einzel- oder Parallelverschaltung |
||||||
SoC-Display |
|||||||
Laden |
0 % bis 25,0 % SoC |
||||||
25,1 % bis 50,0 % SoC |
|||||||
50,1 % bis 75,0 % SoC |
|||||||
75,1 % bis 99,9 % SoC |
|||||||
100 % SoC |
|||||||
Entladen und Standby |
100%-75,1% |
||||||
75,0%-50,1% |
|||||||
50,0%-25,1% |
|||||||
25,0%-0% |
|||||||
Fehler |
Überspannung |
||||||
Unterspannung |
|||||||
Übertemperatur |
|||||||
Untertemperatur |
|||||||
Überstrom |
|||||||
SoH zu tief |
|||||||
Int. Kommunikation |
|||||||
Ext. Kommunikation |
|||||||
Adressfehler Parallel |
|||||||
Adressfehler Module |
|||||||
BMS-Box-Sicherung |
|||||||
Modulsicherung |
|||||||
Kontaktfehler |
|||||||
Isolationsfehler |
|||||||
BMS-Fehler |
|||||||
Blau permanent an |
|
Blau blinkend |
|
Blau schnell blinkend |
|
Rot permanent an |
15.2.2. Störungsbehebung
Wenn Störungen nicht behoben werden können oder bei Störungen, die nicht in der Störungsliste erfasst sind, muss der FENECON-Service kontaktiert werden. Siehe Abschnitt Service.
15.3. Störungsliste
| Komponente | Störung | Maßnahme |
|---|---|---|
Batteriemodul |
Das Batteriemodul ist nass geworden |
Nicht berühren |
Batteriemodul |
Das Batteriemodul ist beschädigt |
Ein beschädigtes Batteriemodul ist gefährlich und muss mit größter Sorgfalt behandelt werden. |
15.4. Service
Bei Störungen der Anlage ist der FENECON-Service zu kontaktieren:
Telefon: +49 (0) 9903 6280-0
E-Mail: service@fenecon.de
Unsere Servicezeiten:
Mo.-Do. 08:00 bis 12:00 Uhr | 13:00 bis 17:00 Uhr
Fr. 08:00 bis 12:00 Uhr | 13:00 bis 15:00 Uhr
16. Technische Wartung
16.1. Prüfungen und Inspektionen
|
Bei Inspektionsarbeiten ist sicherzustellen, dass das Produkt im sicheren Zustand ist. Nicht ordnungsgemäß durchgeführte Inspektionen können schwerwiegende Folgen für Personen, die Umwelt und das Produkt selbst verursachen. |
|
Inspektionsarbeiten sind ausschließlich von ausgebildeten und befähigten Fachkräften durchzuführen. |
|
Für alle Einzelkomponenten sind die Wartungshinweise der Komponentenhersteller zur beachten. |
Kontrollieren Sie das Produkt und die Leitungen regelmäßig auf äußerlich sichtbare Beschädigungen. Bei defekten Komponenten kontaktieren Sie den FENECON-Service. Reparaturen dürfen nur von der Elektrofachkraft vorgenommen werden.
16.2. Reinigung
Reinigungsmittel:
Durch die Verwendung von Reinigungsmitteln kann der Stromspeicher und seine Teile beschädigt werden.
Es wird empfohlen. den Stromspeicher und alle seine Teile ausschließlich mit einem mit klarem Wasser befeuchteten Tuch zu reinigen.
|
Das gesamte Produkt ist regelmäßig zu reinigen. Hierfür dürfen nur entsprechende Reinigungsmittel verwendet werden. |
16.3. Wartungsarbeiten
An der Anlage müssen keine regelmäßigen Wartungsarbeiten durchgeführt werden. Prüfen Sie dennoch regelmäßig den Status Ihres Speichers.
|
Eine regelmäßige Neu-Referenzierung des Speichers wird empfohlen, d. h., dass dieser vollständig entladen (SoC = 0 %) und anschließend wieder vollständig beladen werden muss (SoC = 100 %), da es sonst ggf. zu Kapazitätsverlusten kommen kann. |
16.4. Reparaturen
Bei defekten Komponenten muss der FENECON-Service kontaktiert werden.
16.5. Garantiefälle
Garantiefälle sind innerhalb des Garantiezeitraums in Textform (bspw. per E-Mail) an FENECON zu melden. Die Meldung muss innerhalb einer Ausschlussfrist von 8 Wochen erfolgen, nachdem der Endkunde Kenntnis von dem Garantiefall erlangt hat oder ohne grobe Fahrlässigkeit hätte erlangen können.
17. Hinweis für Feuerwehren im Umgang mit FENECON Home- & Commercial-Systemen
Die FENECON Home- und Commercial-Systeme arbeiten im Niederspannungsbereich, was bedeutet, dass sie mit Spannungen von weniger als 1.500 Volt Gleichstrom (DC) und weniger als 1.000 Volt Wechselstrom (AC) betrieben werden.
Es kann sinnvoll sein, einen zusätzlichen Schalter zu installieren, der das Gebäude von der Notstromversorgung trennt. Dies erleichtert den Einsatzkräften der Feuerwehr, im Notfall sicher und schnell zu handeln.
Für eine genaue Vorgehensweise bei Einsatzkräften wird empfohlen, bei den zuständigen Feuerwehrschulen nachzufragen und die entsprechenden Merkblätter sowie Taschenkarten für Batteriespeicher anzufordern.
18. Hochwasser-Sicherheitsmaßnahmen FENECON Home & Commercial
18.1. Nach dem Hochwasser — Umsicht und Fachwissen
Erste Schritte nach dem Rückgang des Wassers
Auch wenn Ihr Batteriespeicher äußerlich unbeschädigt aussieht:
-
Nehmen Sie das System nicht selbst wieder in Betrieb.
-
Lassen Sie den Raum gut durchlüften, bevor Sie ihn betreten (Fenster von außen öffnen, wenn möglich).
-
Vermeiden Sie Funkenbildung (kein Rauchen, keine Feuerzeuge).
Warum eine Überprüfung wichtig ist:
Auch wenn LFP-Batterien sehr sicher sind, kann Wasser oder Feuchtigkeit:
-
Kurzschlüsse in der Elektronik verursachen.
-
Korrosion an elektrischen Verbindungen auslösen.
-
Isolationsprobleme schaffen, die erst später sichtbar werden.
Diese Probleme müssen nicht sofort auftreten, sondern können sich über Wochen entwickeln.
Fachgerechte Überprüfung beauftragen
Kontaktieren Sie:
-
Ihren Installateur oder eine qualifizierte Elektrofachkraft mit Erfahrung im Bereich Batteriespeicher.
-
FENECON, den Hersteller Ihres Systems.
-
Ihre Versicherung — dokumentieren Sie den Schaden mit Fotos.
Die Fachkraft wird prüfen:
-
Ob Wasser in das System eingedrungen ist.
-
Ob elektronische Komponenten beschädigt wurden.
-
Ob eine Wiederinbetriebnahme sicher möglich oder ein Austausch notwendig ist.
Keine Wiederinbetriebnahme ohne Freigabe
Batteriespeicher, die mit Wasser in Kontakt gekommen sind, dürfen erst nach einer professionellen Überprüfung und ausdrücklichen Freigabe durch eine Fachkraft wieder in Betrieb genommen werden. Dies dient Ihrer Sicherheit und ist oft auch eine Voraussetzung für Ihren Versicherungsschutz.
Wenn ein Austausch notwendig ist
Falls Ihr Speicher ersetzt werden muss:
-
Die Entsorgung des defekten Systems muss fachgerecht durch spezialisierte Unternehmen erfolgen.
-
Ihr Installateur organisiert in der Regel den Abtransport und die Entsorgung.
-
Versuchen Sie nicht, beschädigte Batterien selbst zu transportieren
Zwischenlagerung bis zur Abholung
Falls beschädigte Batteriemodule nicht sofort abgeholt werden können:
-
Lagern Sie diese gut belüftet im Freien mit ausreichend Abstand zu brennbaren Materialien.
Lagerung in einem-
Sandbett.
-
feuerfesten Behälter, nicht gasdicht, belüftet.
-
Wasserbad, z. B. Metallwanne, vollständig mit Wasser bedeckt.
-
-
Halten Sie Kinder und Haustiere fern.
Stand: Oktober 2025
Quelle: Nach Vorgaben des Bundesverbands Energiespeicher Systeme (BVES) e.V.
20. Transport
Dieser Abschnitt enthält Informationen zum außer- und innerbetrieblichen Transport des Produktes.
Transport ist die Ortsveränderung des Produktes mit manuellen oder technischen Mitteln.
-
Für den Transport nur geeignete und geprüfte Anschlagmittel und Hebezeuge verwenden!
|
Risiko durch angehobene Lasten! |
|
Überzeugen Sie sich vom einwandfreien Zustand der Teile und der Umverpackung. |
|
Überzeugen Sie sich, dass
|
Hinweise:
|
|
Rechtsvorschriften |
21. Demontage und Entsorgung
21.1. Voraussetzungen
-
Die Spannungsversorgung des Stromspeichers ist unterbrochen und gegen Wiedereinschalten gesichert.
|
Scharfkantige und spitze Stellen
|
21.2. Demontage
-
Das Speichersystem nur durch autorisierte Elektro-Fachkräfte demontieren lassen.
-
Demontagearbeiten dürfen nur ausgeführt werden, wenn die Anlage außer Betrieb genommen wurde.
-
Vor dem Beginn der Demontage sind alle zu lösenden Bauteile gegen Herabfallen, Umstürzen oder Verschieben zu sichern.
-
Demontagearbeiten dürfen nur bei stillgesetzter Anlage und nur durch Servicepersonal durchgeführt werden.
-
Die Demontagehinweise der Komponentenhersteller (→ Anhang, Mitgeltende Dokumente) sind zu beachten.
-
Beim Transport der Batteriemodule sind die aktuellen Gesetze, Vorschriften und Normen zu beachten (z. B. Gefahrgut-Beförderungsgesetz — GGBefG).
21.3. Entsorgung
-
Das FENECON-Speichersystem darf nicht im normalen Hausmüll entsorgt werden.
-
Das FENECON-Speichersystem ist RoHS- und REACH-konform.
-
Die Entsorgung des Produktes muss den örtlichen Vorschriften für die Entsorgung entsprechen.
-
Vermeiden Sie es, die Batterie-Module hohen Temperaturen oder direkter Sonneneinstrahlung auszusetzen.
-
Vermeiden Sie es, die Batterie-Module hoher Luftfeuchte oder ätzender Atmosphäre auszusetzen.
-
Entsorgen Sie das Speichersystem und die darin enthaltenen Batterien umweltgerecht.
-
Wenden Sie sich an die FENECON GmbH, um die Altbatterien zu entsorgen.
|
