Beiblatt zur Verordnung über
Anlagen zum Umgang mit wassergefährdenden Stoffen (AwSV)

1. Über dieses Dokument

Version: Rev. 01 — Feb. 2025

1.1. Zielgruppe

Diese technischen Informationen richten sich an Planer, Errichter und Betreiber von FENECON Industrial XL Stromspeichersystemen mit Lithium-Ionen-Batterien.

1.2. Mitgeltende Dokumente

2. Umgang mit wassergefährdenden Stoffen

Der Batteriespeicher FENECON Industrial XL ist eine oberirdische Anlage zum Umgang mit wassergefährdenden Stoffen im Bereich der gewerblichen Wirtschaft (HBV-Anlage).

Die Speicher befindet sich in einem 22-Fuß-Stahlcontainer, in dem die Batterien untergebracht sind. Im äußeren Bereich ist das externe Klimagerät neben dem Container positioniert, um eine konstante Temperaturregelung zu gewährleisten. Im Inneren am Boden des Containers sowie auch innerhalb des Klimageräts ist eine Auffangwanne integriert. Beide Auffangwannen dienen als Sperre für auslaufendes Glykol (insg. ca. 410 l Glysofor L, WGK 1). Dies entspricht damit dann den Anforderungen des § 35 (3) AwSV.

In der Klimaanlage selbst wird das gasförmige Kältemittel R513A verwendet werden, welches keine wasserwirtschaftlichen Auswirkungen bedingt.

xl awsv doors open
Abbildung 1. FENECON Industrial XL mit geöffneten Türen

Im Batteriecontainer selbst befindet sich links die Steuereinheit und im restlichen Container befinden sich 3 Batterietürme mit je 12 Schubladen mit je einem Batteriepack â 585 kg. Nach Herstellerangaben macht die Flüssigkeit in der Batteriezelle bis zu 15 % des Masseanteils aus, dies sind Stoffe der WGK 1 und 2. Nach der Mischungsregel muss für die Flüssigkeit die WGK 2 angesetzt werden. In der festen Masse der Batterie befindet sich auch Kobalt und Nickel, welche die WGK 3 aufweisen. Die einzelnen Batteriezellen sind Automobilbatteriezellen, welche für den Einsatz im Straßenverkehr zugelassen sind, sie weisen daher eine gefahrgutrechtliche Zulassung auf. Die Kühlflüssigkeit wird vom externen Klimagerät über Transferleitungen durch zwei Kühlflüssigkeitsanschlüsse in den Container geleitet. Im Inneren verteilt sie sich über die Hauptleitungen, die entlang der Containerrückwand verläuft. Von der Hauptleitung verzweigen drei Abzweigleitungen zu den Stegleitungen des jeweiligen Batterieturms. Im Falle einer Leckage kann die Kühlflüssigkeit sowohl im hinteren Bereich des Containers als auch direkt im Batteriespeicherbereich austreten. In diesem Fall würde sie in die am Containerboden installierte Auffangwanne fließen, die ein Volumen von 820 l fassen kann und somit eine unkontrollierte Verbreitung verhindert.

3. Berechnung der flüssigkeitsrückhaltenden Auffangwanne

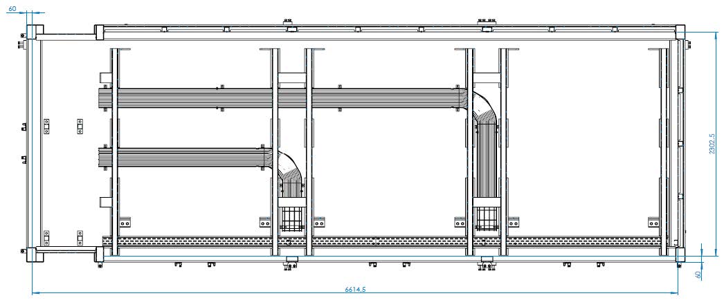
3.1. Bodengrundriss des Containers

xl awsv dimensions
Abbildung 2. Bodengrundriss des Containers

3.2. Eckdaten zum Container

Tabelle 1. Eckdaten zum Container
Leitungs- sowie Volumendaten Containerdaten

Leitungsmenge 0,5 Zoll in Meter

65,00

Containerinnenmaß Länge in mm

6614,00

Flüssigkeitsvolumen pro Meter bei 0,5-Zoll-Leitung

0,13

Containerinnenmaß Breite in mm

2302,00

Leitungsmenge 1,5 Zoll in Meter

26,50

Höhe Containerwanne in mm

60,00

Flüssigkeitsvolumen pro Meter bei 1,5-Zoll-Leitung

1,14

Breite Kabelkanal in mm

200,00

Leitungsmenge 0,5 Zoll in Meter

65,00

Höhe Kabelkanal in mm (Höhe belegter Bereich)

200,00

Flüssigkeitsvolumen pro Meter bei 2,5-Zoll-Leitung

3,17

Gesamtlänge Kabelkanal

7500,00

Anzahl Batterien

36,00

Länge Schaltschrank in mm

1200,00

Batteriekühlflüssigkeitsvolumen in Liter

3,80

Tiefe Schaltschrank in mm

400,00

Wassergefährdende Batterieflüssigkeitsvolumen in Liter

65,00

Außenmaße 2,5-Zoll-Leitung in mm

63,00

Klimagerät HYDAC Tankvolumen in Liter

65,00

Tabelle 2. Eckdaten zum Container 2
Volumenberechnung in Liter

Gesamtes wassergefährdendes Batterieflüssigkeitsvolumen

3164,40

Erforderliche Rückhaltung für gesamtes wassergefährdendes Batterieflüssigkeitsvolumen

316,44

Gesamtkühlflüssigkeitsvolumen

410,14

Erforderliches Gesamtrückhaltevolumen

723,58

Volumen Bodenwanne

913,53

Verdrängtes Volumen (durch bebauten Raum innerhalb der Bodenwanne)

93,07

Gesamtrückhaltevolumen

820,45

Aufgrund der Bauweise kann hier analog von einem Fass- und Gebindelager nach § 31 AwSV ausgegangen werden. Die erforderliche Rückhaltung muss daher 10% des Gesamtvolumens der Batterien betragen. Das Gesamtvolumen der Flüssigkeit beträgt bis zu 3164 l (88 l x 36 Batterien). Somit müssen 317 l Auffangvolumen vorgehalten werden. Sollte zusätzlich eine Havarie in einer der Kühlleitungen erfolgen, kommen noch die max. 410 l der Kühlflüssigkeit dazu, in Summe also 727 l. Aufgrund der mechanischen Batterieumhausung ist laut § 26 Abs. 1 AwSV eine Rückhaltung der festen wassergefährdeten Stoffe nicht notwendig. Die vorhandene Auffangwanne ist damit ausreichend dimensioniert.

4. Einstufung der Anlage nach AwSV

Der flüssige Anteil der Anlage von max. 3,58 t Flüssigkeit der WGK 2 bedingt somit einer Anlage der Gefährdungsstufe B. Der feste Anteil der Batterien mit einem Gesamtgewicht von max. 17,9 t bei Stoffen der WGK 3 bedingt einer Anlage der Gefährdungsstufe D. Daher ergibt sich aufgrund der gesamten Menge an festen und flüssigen wassergefährdenden Stoffe laut § 39 AwSV Abs. 10 die Gefährdungsstufe D für die Anlage. Gemäß Anlage 5 zur AwSV hat dies zur Folge, dass die Anlage durch einen Sachverständigen nach § 47 AwSV vor Inbetriebnahme, nach wesentlichen Änderungen, wiederkehrend alle 5 Jahre und bei Stilllegung geprüft werden müssen. Dabei handelt es sich um Sachverständige entsprechend § 52 und § 53 AwSV.

Weiterhin werden für die Anlage eine Anlagendokumentation gemäß § 43 AwSV sowie eine Betriebsanweisung nach § 44 AwSV erforderlich. Diese hat grundsätzlich der Betreiber der Anlage zu erstellen und vorzuhalten.